CARISBROOKE AVENUE, Hazel Grove, SK7 5PL
By Moore Homes
£ 315,000
Reviews
3 out of 5 stars
Moore Homes says ..
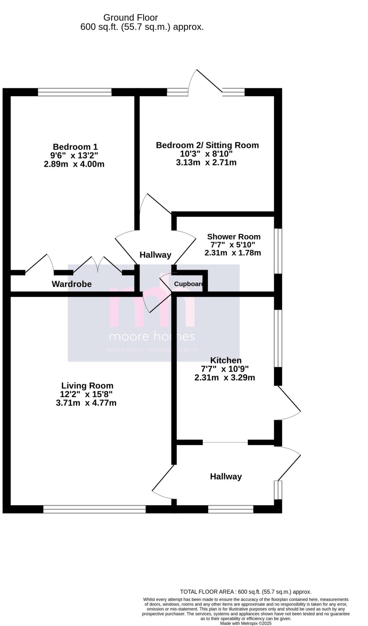
A SMARTLY PRESENTED 2 DOUBLE BEDROOM SEMI DETACHED BUNGALOW with a WESTERLY FACING REAR GARDEN situated in a POPULAR and CONVENIENT RESIDENTIAL LOCATION close by to SHOPS - MODERN KITCHEN - SPACIOUS LIVING ROOM - 2 DOUBLE BEDROOMS - SMART SHOWER ROOM - DET GARAGE
Property Oracle says ..
This is a two-bedroom bungalow in Hazel Grove, near Stepping Hill. The property benefits from its proximity to local amenities, schools, and transportation links, including the Hazel Grove train station. The interior appears to be in generally good condition, with a modern kitchen and bathroom. The property features gardens to the front and rear, with the back garden being paved and incorporating decorative stone. While the price per square foot is higher than the area average, it aligns with recent sales of similar properties on the same street. The property offers off street parking and a detached garage.
Therefore, we give this property 7 / 10. *Disclaimer: This is our option and does constitute a recommendation or financial advice. Do your own research. *
- Price
- 8
- Condition
- 7
- Location
- 7
- Land
- 6
- Bedrooms
- 2
- Bathrooms
- 1
- Sqft (est)
- 532.17
The heatmap indicates the level of crime in the area. The color of the heatmap indicates the crime severity and recency.
Metrics Year-on-Year
- Average area value
- 409,950.00 £Increased by 6.61 %
- Est sale value
- 188,920.35 £Decreased by 3.01 %
- Average area rental value
- 1,238.00 £/moIncreased by 3.60 %
- Est letting value
- 532.17 £/moUnchanged by 0.00 %
- Est rental Yield
- 3.62 %Decreased by 2.95 %
- Crime Rate
- 0.00 %
Agent Activity
Moore Homes created the listing.
Nearby Schools
| Name | Type | Ofsted | Distance |
|---|---|---|---|
| St Peter'S Catholic Primary School | Voluntary Aided School | Outstanding | 0.12 KM |
| Moorfield Primary School | Community School | Good | 0.53 KM |
| Norbury Hall Primary School | Community School | Good | 0.88 KM |
| Hazel Grove High School | Academy Converter | Requires improvement | 0.92 KM |
| Hazel Grove Primary School | Community School | Good | 1.26 KM |
Images
Nearby Streets
| Name | Average Price | Average Sqft | Distance |
|---|---|---|---|
| Carisbrooke Avenue | £ 0 | 0 | 0.00 KM |
| Newby Road | £ 0 | 0 | 0.00 KM |
| Cotswold Avenue | £ 0 | 0 | 0.00 KM |
| St. Davids Road | £ 692,500 | 0 | 0.00 KM |
| Charnwood Crescent | £ 400,000 | 0 | 0.00 KM |
Nearby Transport
| Name | NLC | TLC | Distance |
|---|---|---|---|
| Hazel Grove | 2768 | HAZ | 0.71 KM |
| Woodsmoor | 2773 | WSR | 2.15 KM |
| Poynton | 2874 | PYT | 2.73 KM |
| Davenport | 2770 | DVN | 3.40 KM |
| Bramhall | 2944 | BML | 4.27 KM |
Nearby Listings
| Address | Price | Type | Score | Distance |
|---|---|---|---|---|
| CARISBROOKE AVENUE, Hazel Grove, SK7 5PL | £ 315,000 | BUY | 7 / 10 | 0.00 KM |
| Lyndhurst Avenue, Hazel Grove, SK7 | £ 480,000 | BUY | 7 / 10 | 0.09 KM |
| Rhos Drive, Hazel Grove, Stockport, SK7 | £ 395,000 | BUY | 7 / 10 | 0.16 KM |
| Corfe Crescent, Hazel Grove, Stockport, Cheshire, SK7 5PR | £ 400,000 | BUY | Unknown | 0.16 KM |
| Harlech Drive, Hazel Grove, Stockport SK7 5NA | £ 335,000 | BUY | Unknown | 0.17 KM |
Nearby Properties
| Address | Price | Distance |
|---|---|---|
| 21 Carisbrooke Avenue | £ 187,500 | 0.02 KM |
| 9 Carisbrooke Avenue | £ 185,000 | 0.02 KM |
| 16 Carisbrooke Avenue | £ 176,000 | 0.02 KM |
| 1 Carisbrooke Avenue | £ 220,000 | 0.02 KM |
| 17 Carisbrooke Avenue | £ 174,950 | 0.02 KM |