New North Road, Islington, London, N1 7BJ
By Bruton Property
£ 495,000
Reviews
3 out of 5 stars
Bruton Property says ..
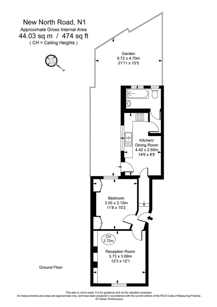
One bedroom flat between Hoxton and Shoreditch with a lovely private garden. Chain free. This ground floor flat offers a perfect blend of space, comfort, and urban living. Set within an attractive period property, the flat offers bright and spacious, well appointed accommodation.
Property Oracle says ..
This one bedroom flat is located on New North Road in Islington, a vibrant and popular area of London. The property benefits from being close to excellent transport links, including Essex Road station (0.67km) and several other stations within a reasonable distance. There are also a number of well-regarded schools nearby, including Rotherfield Primary School (0.17km) and The New North Academy (0.49km). The flat itself appears to be in good condition, with modern fixtures and fittings. Images show a recently updated kitchen and bathroom. While the plot size is small, there is a private garden area, which is a desirable feature in London. The list price of £495,000 is slightly below the average price for the area (£530,332), and considering the property’s condition and location, it could be considered reasonable value, although further analysis of comparable properties would be needed to confirm this. However, the average price per sqft in the area is £604, and this property is smaller than average. This suggests that the price may be slightly higher than the average price per sqft.
Therefore, we give this property 7 / 10. *Disclaimer: This is our option and does constitute a recommendation or financial advice. Do your own research. *
- Price
- 7
- Condition
- 8
- Location
- 9
- Land
- 4
- Bedrooms
- 1
- Bathrooms
- 1
- Sqft (est)
- 473.94
The heatmap indicates the level of crime in the area. The color of the heatmap indicates the crime severity and recency.
Metrics Year-on-Year
- Average area value
- 489,766.00 £Increased by 6.36 %
- Est sale value
- 328,440.42 £Increased by 54.34 %
- Average area rental value
- 2,264.00 £/moIncreased by 11.14 %
- Est letting value
- 1,421.82 £/moIncreased by 200.00 %
- Est rental Yield
- 5.55 %Increased by 4.52 %
- Crime Rate
- 2.00 %Unchanged by 0.00 %
Agent Activity
Bruton Property created the listing.
Nearby Schools
| Name | Type | Ofsted | Distance |
|---|---|---|---|
| Rotherfield Primary School | Community School | Good | 0.17 KM |
| Thomas Fairchild Community School | Community School | Requires improvement | 0.48 KM |
| The New North Academy | Academy Converter | Good | 0.49 KM |
| Packington Children'S Centre | Children's Centre | 0.53 KM | |
| Thomas Fairchild Satellite Children'S Centre | Children's Centre Linked Site | 0.56 KM |
Images
Nearby Streets
| Name | Average Price | Average Sqft | Distance |
|---|---|---|---|
| Linton Street | £ 0 | 0 | 0.00 KM |
| Hullbridge Mews | £ 0 | 0 | 0.00 KM |
| James Court | £ 0 | 0 | 0.00 KM |
| New North Road | £ 0 | 0 | 0.00 KM |
| Orchard Close | £ 850,000 | 0 | 0.00 KM |
Nearby Transport
| Name | NLC | TLC | Distance |
|---|---|---|---|
| Essex Road | 6004 | EXR | 0.67 KM |
| Canonbury | 1441 | CNN | 1.26 KM |
| Old Street | 6003 | OLD | 1.32 KM |
| Highbury And Islington | 6009 | HHY | 1.70 KM |
| Haggerston | 1022 | HGG | 1.72 KM |
Nearby Listings
| Address | Price | Type | Score | Distance |
|---|---|---|---|---|
| New North Road, Islington, London, N1 7BJ | £ 495,000 | BUY | 7 / 10 | 0.00 KM |
| New North Road, London, N1 | £ 800,000 | BUY | Unknown | 0.03 KM |
| Linton Street, Islington, N1 | £ 2,000,000 | BUY | 8 / 10 | 0.07 KM |
| New North Road, London, N1 | £ 1,000,000 | BUY | 8 / 10 | 0.07 KM |
| Rydon Street, London, N1 | £ 2,500,000 | BUY | 7 / 10 | 0.09 KM |
Nearby Properties
| Address | Price | Distance |
|---|---|---|
| 196 New North Road | £ 175,000 | 0.02 KM |
| 198 New North Road | £ 365,000 | 0.04 KM |
| 170a New North Road | £ 785,000 | 0.04 KM |
| 182 New North Road | £ 670,000 | 0.04 KM |
| 166a New North Road | £ 797,000 | 0.04 KM |