CL
25 Battlefield Avenue, Flat 0/1, Battlefield, Glasgow, G42 9HT
By Clyde Property
£ 219,000
Reviews
3 out of 5 stars
Clyde Property says ..
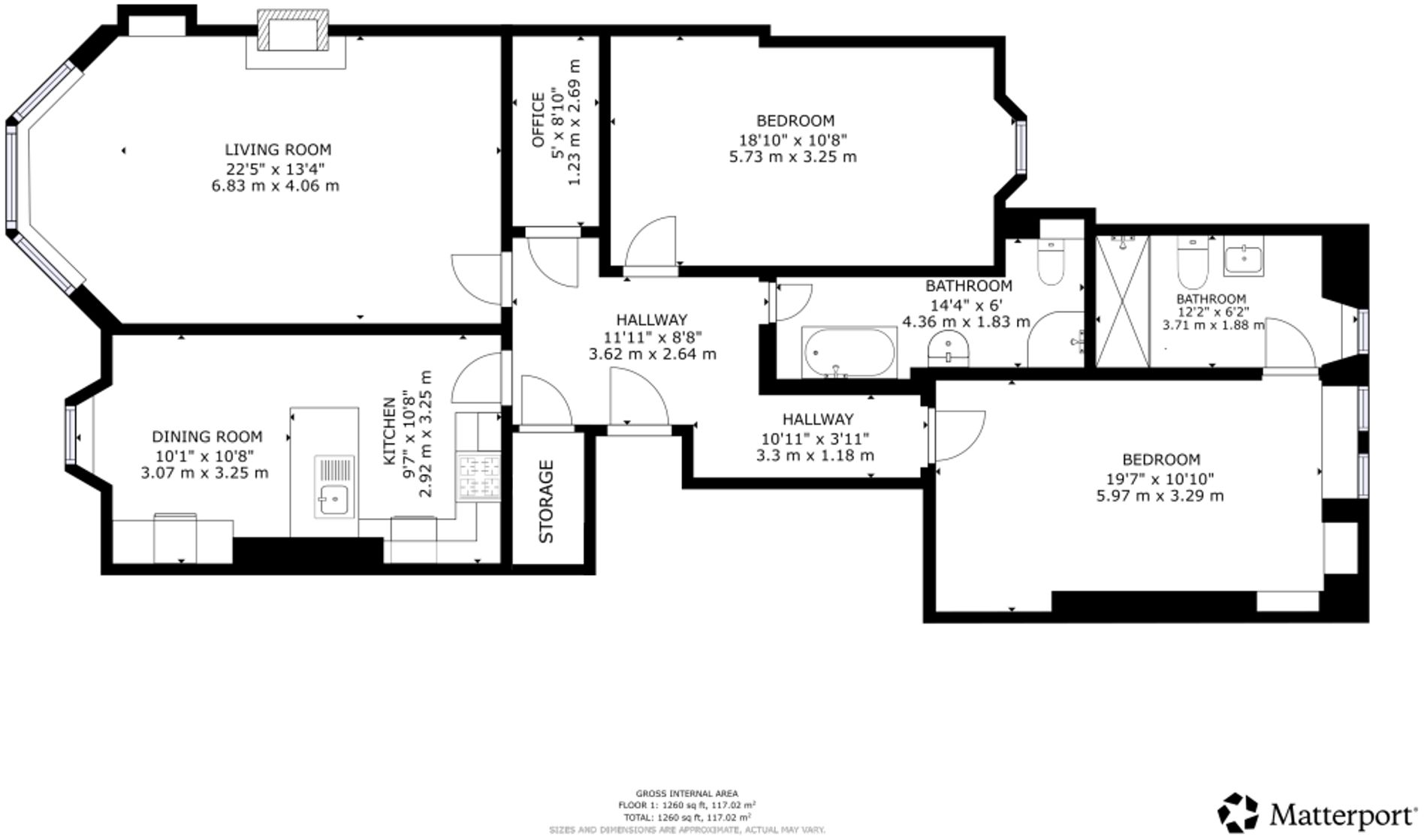
Situated on the highly sought-after Battlefield Avenue, this beautifully presented two-bedroom ground floor flat forms part of a traditional red sandstone tenement and offers an exceptional blend of period character and modern design.
Property Oracle says ..
Therefore, we give this property 6 / 10. *Disclaimer: This is our option and does constitute a recommendation or financial advice. Do your own research. *
- Price
- 9
- Condition
- 8
- Location
- 7
- Land
- 3
- Bedrooms
- 2
- Bathrooms
- 2
- Sqft (est)
- 2,210.58
The heatmap indicates the level of crime in the area. The color of the heatmap indicates the crime severity and recency.
Metrics Year-on-Year
- Average area value
- 189,182.00 £Decreased by 1.44 %
- Est sale value
- 521,696.88 £Increased by 2.16 %
- Average area rental value
- 1,231.00 £/moIncreased by 15.59 %
- Est letting value
- 2,210.58 £/moUnchanged by 0.00 %
- Est rental Yield
- 7.81 %Increased by 17.27 %
- Crime Rate
- 0.00 %
from 191,952.00 £
from 510,643.98 £
from 1,065.00 £/mo
from 2,210.58 £/mo
from 6.66 %
from 0.00 %
Agent Activity
Clyde Property created the listing.
Images
Nearby Streets
| Name | Average Price | Average Sqft | Distance |
|---|---|---|---|
| Overdale Street | £ 252,667 | 0 | 0.00 KM |
| Invergordon Avenue | £ 0 | 0 | 0.00 KM |
| Old Castle Gardens | £ 0 | 0 | 0.00 KM |
| Monreith Road East | £ 0 | 0 | 0.00 KM |
| Balmoral Crescent | £ 240,000 | 0 | 0.00 KM |
Nearby Transport
| Name | NLC | TLC | Distance |
|---|---|---|---|
| Mount Florida | 9819 | MFL | 0.26 KM |
| Cathcart | 9795 | CCT | 0.81 KM |
| Crosshill | 9814 | COI | 1.15 KM |
| Queens Park (Glasgow) | 9822 | QPK | 1.27 KM |
| Langside | 9818 | LGS | 1.68 KM |
Nearby Listings
| Address | Price | Type | Score | Distance |
|---|---|---|---|---|
| 25 Battlefield Avenue, Flat 0/1, Battlefield, Glasgow, G42 9HT | £ 219,000 | BUY | 6 / 10 | 0.00 KM |
| Battlefield Avenue, Glasgow, G42 | £ 240,000 | BUY | 6 / 10 | 0.05 KM |
| Brisbane Street, Mount Florida, G42 | £ 175,000 | BUY | 7 / 10 | 0.05 KM |
| Battlefield Avenue, Battlefield, G42 9HW | £ 180,000 | BUY | 7 / 10 | 0.05 KM |
| Battlefield Avenue, Battlefield, G42 9HW | £ 170,000 | BUY | 6 / 10 | 0.05 KM |