Samuel King says ..
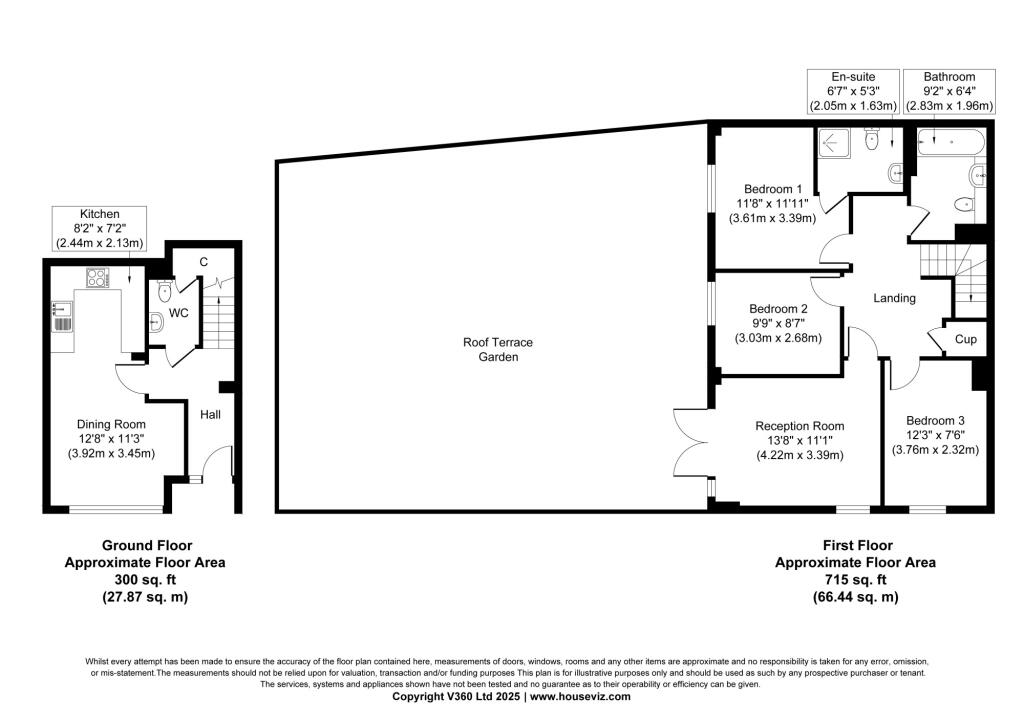
SPACIOUS ROOF TERRACE GARDEN. A beautifully appointed 3 bedroom apartment laid out over 2 floors and with its own private access. The property benefits from, a fitted kitchen, 2 bathrooms, one en-suite and separate cloakroom, PARKING SPACE, and access to a private roof terrace garden via 3 rooms.
Property Oracle says ..
This three-bedroom flat is located in Canning Town, London, a vibrant area with good transport links. The property itself is modern and well-maintained, with a contemporary kitchen and bathrooms. The inclusion of a roof terrace is a significant advantage, offering outdoor space. The average price per square foot in the area is £547, and while the listed price of £550,000 may seem slightly above average, the additional features such as the roof terrace could justify this. Nearby schools and transportation options are readily available, adding to the property’s appeal.
Therefore, we give this property 7 / 10. *Disclaimer: This is our option and does constitute a recommendation or financial advice. Do your own research. *
- Price
- 7
- Condition
- 9
- Location
- 7
- Land
- 8
- Bedrooms
- 3
- Bathrooms
- 2
- Sqft (est)
- 299.99
The heatmap indicates the level of crime in the area. The color of the heatmap indicates the crime severity and recency.
Metrics Year-on-Year
- Average area value
- 388,267.00 £Decreased by 11.51 %
- Est sale value
- 158,394.72 £Decreased by 4.00 %
- Average area rental value
- 2,387.00 £/moIncreased by 9.80 %
- Est letting value
- 899.97 £/moIncreased by 50.00 %
- Est rental Yield
- 7.38 %Increased by 24.03 %
- Crime Rate
- 9.00 %Unchanged by 0.00 %
Agent Activity
Samuel King created the listing.
Nearby Schools
| Name | Type | Ofsted | Distance |
|---|---|---|---|
| Keir Hardie Children'S Centre | Children's Centre | 0.14 KM | |
| Keir Hardie Primary School | Community School | Good | 0.24 KM |
| Hallsville Primary School | Academy Converter | 0.34 KM | |
| Learningsure College | Other Independent School | 0.34 KM | |
| Rokeby School | Academy Converter | 0.44 KM |
Images
Nearby Streets
| Name | Average Price | Average Sqft | Distance |
|---|---|---|---|
| St John's Road | £ 0 | 0 | 0.00 KM |
| Beckton Road | £ 0 | 0 | 0.00 KM |
| Exeter Road | £ 475,000 | 0 | 0.00 KM |
| Fisher Street | £ 0 | 0 | 0.00 KM |
| Chaseway Lodge | £ 295,000 | 0 | 0.00 KM |
Nearby Transport
| Name | NLC | TLC | Distance |
|---|---|---|---|
| West Ham | 7474 | WEH | 2.01 KM |
| Westcombe Park | 5151 | WCB | 3.51 KM |
| Charlton | 5144 | CTN | 3.52 KM |
| Maryland | 6970 | MYL | 3.65 KM |
| Stratford | 6969 | SRA | 3.78 KM |
Nearby Listings
| Address | Price | Type | Score | Distance |
|---|---|---|---|---|
| Katie Court, 7 Edwin Street, London, E16 | £ 320,000 | BUY | 6 / 10 | 0.05 KM |
| Katie Court, Custom House, E16 | £ 285,000 | BUY | 6 / 10 | 0.06 KM |
| Katie Court, Edwin Street, London, E16 | £ 80,000 | BUY | Unknown | 0.06 KM |
| Katie Court, 7 Edwin Street, London, E16 | £ 475,000 | BUY | 6 / 10 | 0.06 KM |
| Katie Court, Canning Town, E16 | £ 320,000 | BUY | 6 / 10 | 0.06 KM |
Nearby Properties
| Address | Price | Distance |
|---|---|---|
| 16 Fife Road | £ 143,500 | 0.02 KM |
| 22 Fife Road | £ 255,000 | 0.06 KM |
| 62 Fife Road | £ 320,000 | 0.06 KM |
| 6 Reed Close | £ 400,000 | 0.09 KM |
| 2 Reed Close | £ 183,000 | 0.09 KM |