Pleasant Way, Cheadle Hulme, SK8
By One Stop Property Solutions
£ 850,000
Reviews
4 out of 5 stars
One Stop Property Solutions says ..
Hidden Gem on a Private Plot within Walking Distance to both Cheadle Hulme and Bramhall Villages. Exceptionally Spacious Family Home on a Family-Friendly Cul De Sac. Act Now to avoid missing this large family home on this Highly Popular Cul De Sac location
Property Oracle says ..
The property is located in a desirable area with good schools and transport links. The property itself is well-maintained and appears to be in good condition, with a modern kitchen and updated bathrooms. The substantial plot size is a significant advantage. While the list price is at the higher end of the market, the property’s size, condition, and location may justify this.
Therefore, we give this property 8 / 10. *Disclaimer: This is our option and does constitute a recommendation or financial advice. Do your own research. *
- Price
- 7
- Condition
- 9
- Location
- 9
- Land
- 8
- Bedrooms
- 4
- Bathrooms
- 2
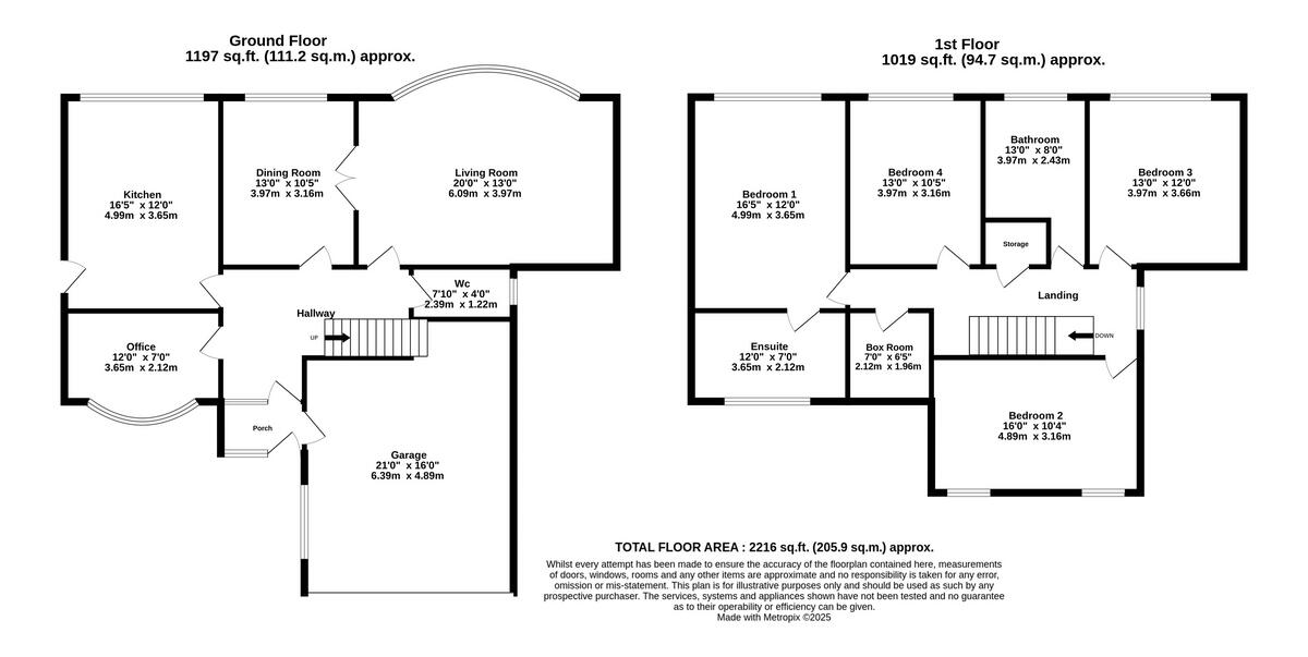
- Sqft (est)
- 1,900.00
- Lot (est)
- 2,216.00
The heatmap indicates the level of crime in the area. The color of the heatmap indicates the crime severity and recency.
Metrics Year-on-Year
- Average area value
- 646,429.00 £Increased by 3.01 %
- Est sale value
- 893,000.00 £Increased by 44.62 %
- Average area rental value
- 2,000.00 £/moDecreased by 6.06 %
- Est letting value
- 1,900.00 £/moUnchanged by 0.00 %
- Est rental Yield
- 3.71 %Decreased by 8.85 %
- Crime Rate
- 0.00 %
Agent Activity
One Stop Property Solutions created the listing.
Nearby Schools
| Name | Type | Ofsted | Distance |
|---|---|---|---|
| Valley School | Community Special School | Outstanding | 0.35 KM |
| Moss Hey Primary School | Community School | Good | 0.35 KM |
| Hursthead Infant School | Community School | Outstanding | 0.38 KM |
| Hursthead Junior School | Academy Converter | Good | 0.46 KM |
| Cheadle Hulme High School | Academy Converter | Outstanding | 1.08 KM |
Images
Nearby Streets
| Name | Average Price | Average Sqft | Distance |
|---|---|---|---|
| Keswick Drive | £ 475,000 | 0 | 0.00 KM |
| Kendal Drive | £ 0 | 0 | 0.00 KM |
| Oak Drive | £ 672,500 | 0 | 0.00 KM |
| Park Avenue | £ 0 | 0 | 0.00 KM |
| Manchester Airport Eastern Link Road | £ 0 | 0 | 0.00 KM |
Nearby Transport
| Name | NLC | TLC | Distance |
|---|---|---|---|
| Bramhall | 2944 | BML | 1.70 KM |
| Cheadle Hulme | 2870 | CHU | 2.21 KM |
| Handforth | 2767 | HTH | 4.08 KM |
| Davenport | 2770 | DVN | 4.61 KM |
| Poynton | 2874 | PYT | 4.99 KM |
Nearby Listings
| Address | Price | Type | Score | Distance |
|---|---|---|---|---|
| Pleasant Way, Cheadle Hulme, Cheadle | £ 700,000 | BUY | 7 / 10 | 0.04 KM |
| Acre Lane, Cheadle Hulme | £ 740,000 | BUY | 7 / 10 | 0.08 KM |
| Pleasant Way, Cheadle Hulme, SK8 | £ 825,000 | BUY | 7 / 10 | 0.10 KM |
| Acre Lane, Cheadle Hulme | £ 475,000 | BUY | 7 / 10 | 0.15 KM |
| Acre Lane, Cheadle Hulme, Cheadle, SK8 | £ 1,000,000 | BUY | 8 / 10 | 0.16 KM |
Nearby Properties
| Address | Price | Distance |
|---|---|---|
| 9 Pleasant Way | £ 271,000 | 0.06 KM |
| 1 Pleasant Way | £ 615,000 | 0.06 KM |
| 12 Pleasant Way | £ 477,500 | 0.07 KM |
| 13 Pleasant Way | £ 547,500 | 0.07 KM |
| 9 Foxbench Close | £ 465,000 | 0.11 KM |