Cherry Tree Lane, Ely, Soham
By Cheffins Residential
£ 160,000
Reviews
3 out of 5 stars
Cheffins Residential says ..
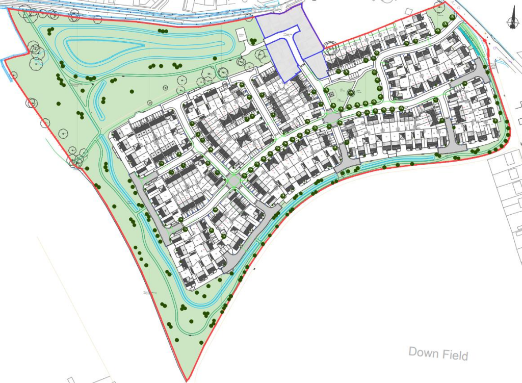
Fantastic opportunity to own one of just eleven Self-Build Plots ranging in size from 207 square metres to 511 square metres situated on the northern edge of the new development off Fordham Road, Soham. The Self-Build Plots are suitable for the construction of two storey detached houses rang...
Property Oracle says ..
This property on Cherry Tree Lane, Soham, presents a modern housing opportunity in East Cambridgeshire. As a new build, it promises contemporary living standards. The proximity to schools such as St Andrew’s Cofe Primary School and Soham Village College enhances its appeal for families. While specific square footage details are absent, the asking price of £160,000 suggests competitive value within the local market. The location offers a blend of community amenities and accessibility, making it a potentially attractive purchase.
Therefore, we give this property 6 / 10. *Disclaimer: This is our option and does constitute a recommendation or financial advice. Do your own research. *
- Price
- 8
- Condition
- 7
- Location
- 6
- Land
- 6
- Bedrooms
- 0
- Bathrooms
- 0
The heatmap indicates the level of crime in the area. The color of the heatmap indicates the crime severity and recency.
Metrics Year-on-Year
- Average area value
- 320,000.00 £Decreased by 9.25 %
- Average area rental value
- 1,225.00 £/moDecreased by 8.10 %
- Est rental Yield
- 4.59 %Increased by 1.10 %
- Crime Rate
- 4.00 %Unchanged by 0.00 %
Agent Activity
Cheffins Residential created the listing.
Nearby Schools
| Name | Type | Ofsted | Distance |
|---|---|---|---|
| St Andrew'S Cofe Primary School | Academy Converter | Good | 1.27 KM |
| Soham Village College | Academy Converter | Good | 1.36 KM |
| The Weatheralls Primary School | Academy Sponsor Led | Requires improvement | 1.85 KM |
| Soham Child And Family Zone | Children's Centre | 2.09 KM | |
| The Shade Primary School | Academy Sponsor Led | Good | 4.06 KM |
Images
Nearby Streets
| Name | Average Price | Average Sqft | Distance |
|---|---|---|---|
| Crucion Way | £ 0 | 0 | 0.00 KM |
| Perch Chase | £ 445,000 | 0 | 0.00 KM |
| The Crescent | £ 0 | 0 | 0.00 KM |
| Minnow Gardens | £ 0 | 0 | 0.00 KM |
| Windmill Close | £ 270,000 | 0 | 0.00 KM |
Nearby Listings
| Address | Price | Type | Score | Distance |
|---|---|---|---|---|
| Cherry Tree Lane, Ely, Soham | £ 160,000 | BUY | 6 / 10 | 0.00 KM |
| Cherry Tree Lane, Ely, Soham | £ 170,000 | BUY | 6 / 10 | 0.00 KM |
| Cherry Tree Lane, Ely, Soham | £ 170,000 | BUY | 6 / 10 | 0.00 KM |
| Cherry Tree Lane, Ely, Soham | £ 150,000 | BUY | 6 / 10 | 0.01 KM |
| Cherry Tree Lane, Ely, Soham | £ 170,000 | BUY | 6 / 10 | 0.01 KM |
Nearby Properties
| Address | Price | Distance |
|---|---|---|
| 52a Fordham Road | £ 490,000 | 0.37 KM |
| 23 Fordham Road | £ 285,000 | 0.37 KM |
| 64b Fordham Road | £ 485,000 | 0.37 KM |
| 38 Fordham Road | £ 307,850 | 0.37 KM |
| 60 Fordham Road | £ 377,500 | 0.37 KM |