Gascoigne Halman says ..
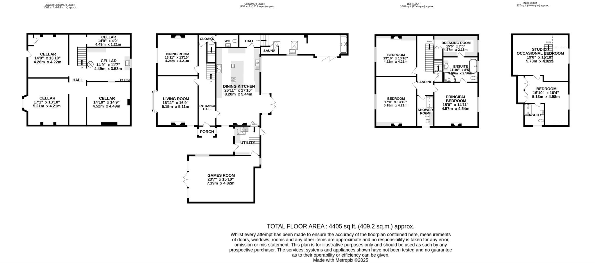
A timelessly handsome Victorian villa occupying a much sought-after central address boasting extensive period accommodation (4405 Sq Ft) complemented by a private gated entrance and a beautifully landscaped South facing garden.
Property Oracle says ..
This is a 5-bedroom semi-detached property on Albert Road, Wilmslow. The house is listed with Gascoigne Halman for £1,450,000. The property is in a good location, close to schools and transportation. The condition of the property appears to be good, with modern fixtures and fittings. The property also benefits from a garden with a patio area. The price is significantly higher than the average for the area, but the property offers more space than average.
Therefore, we give this property 7 / 10. *Disclaimer: This is our option and does constitute a recommendation or financial advice. Do your own research. *
- Price
- 6
- Condition
- 8
- Location
- 8
- Land
- 7
- Bedrooms
- 5
- Bathrooms
- 3
The heatmap indicates the level of crime in the area. The color of the heatmap indicates the crime severity and recency.
Metrics Year-on-Year
- Average area value
- 646,257.00 £Increased by 0.56 %
- Average area rental value
- 2,875.00 £/moIncreased by 74.77 %
- Est rental Yield
- 5.34 %Increased by 73.94 %
- Crime Rate
- 11.00 %Unchanged by 0.00 %
Agent Activity
Gascoigne Halman created the listing.
Nearby Schools
| Name | Type | Ofsted | Distance |
|---|---|---|---|
| Wilmslow Preparatory School | Other Independent School | 0.43 KM | |
| Wilmslow High School | Community School | Good | 0.62 KM |
| St Anne'S Fulshaw C Of E Primary School | Voluntary Controlled School | Good | 0.89 KM |
| Gorsey Bank Primary School | Academy Converter | Good | 1.46 KM |
| Ashdene Primary School | Community School | Outstanding | 1.49 KM |
Images
Nearby Streets
| Name | Average Price | Average Sqft | Distance |
|---|---|---|---|
| Queen's Road | £ 299,950 | 0 | 0.00 KM |
| Fulshaw Cross | £ 345,000 | 0 | 0.00 KM |
| Fulshaw Cross | £ 525,000 | 0 | 0.00 KM |
| Hawthorn Square | £ 0 | 0 | 0.00 KM |
| Grove Street | £ 135,000 | 0 | 0.00 KM |
Nearby Transport
| Name | NLC | TLC | Distance |
|---|---|---|---|
| Wilmslow | 2774 | WML | 1.09 KM |
| Alderley Edge | 2760 | ALD | 2.18 KM |
| Styal | 2868 | SYA | 2.83 KM |
| Handforth | 2767 | HTH | 3.53 KM |
| Heald Green | 2860 | HDG | 5.12 KM |
Nearby Listings
| Address | Price | Type | Score | Distance |
|---|---|---|---|---|
| Albert Road, Wilmslow | £ 1,450,000 | BUY | 7 / 10 | 0.00 KM |
| 73 Alderley Road, Wilmslow, SK9 | £ 700,000 | BUY | 9 / 10 | 0.01 KM |
| Lynwood, Victoria Road, Wilmslow | £ 125,000 | BUY | 7 / 10 | 0.06 KM |
| Lynwood, Victoria Road, Wilmslow | £ 125,000 | BUY | 6 / 10 | 0.06 KM |
| Lynwood, Victoria Road, Wilmslow | £ 135,000 | BUY | 8 / 10 | 0.06 KM |
Nearby Properties
| Address | Price | Distance |
|---|---|---|
| 6 Victoria Road | £ 650,000 | 0.06 KM |
| 4 Victoria Road | £ 725,000 | 0.06 KM |
| 2 Sunny Lea Mews | £ 320,000 | 0.06 KM |
| 10 Victoria Road | £ 630,000 | 0.06 KM |
| 3 Victoria Road | £ 765,000 | 0.06 KM |