Choir Close, Wainscott, Rochester, Kent. ME3
By Moxy Property Consultants
£ 450,000
Reviews
4 out of 5 stars
Moxy Property Consultants says ..
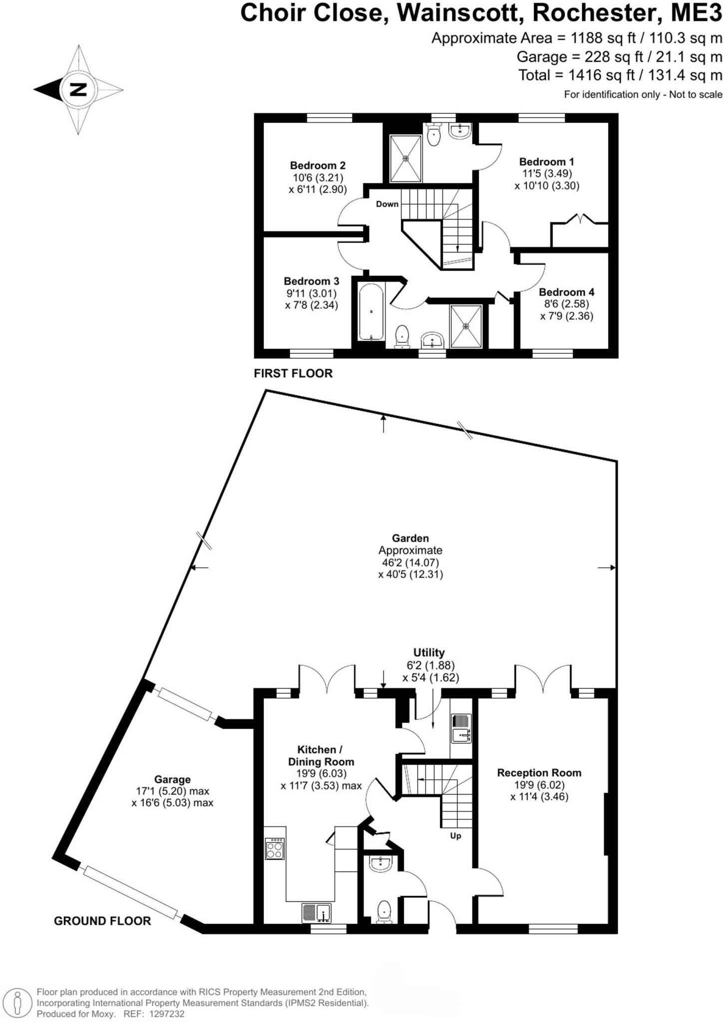
Beautifully presented four bedroom home in Wainscott. A generous 1200+ sq ft with dual-aspect lounge, separate kitchen/diner, utility, two bathrooms and guest wc. Sunny garden, garage & parking.
Property Oracle says ..
This property is a 4-bedroom, 2-bathroom semi-detached house located in Wainscott, Kent. The property is modern in style and appears to be in excellent condition, with a well-maintained garden. The location is convenient, with nearby schools and transportation links. The list price of £450,000 seems reasonable considering the size of the property (2,823 sqft) and its features, although it is slightly higher than the average price for the area (£428,831). However, the property is significantly larger than the average property in the area (950 sqft), and the average price per sqft is £451, which makes the list price comparable.
Therefore, we give this property 8 / 10. *Disclaimer: This is our option and does constitute a recommendation or financial advice. Do your own research. *
- Price
- 7
- Condition
- 10
- Location
- 7
- Land
- 8
- Bedrooms
- 4
- Bathrooms
- 2
- Sqft (est)
- 2,823.00
- Lot (est)
- 1,188.00
The heatmap indicates the level of crime in the area. The color of the heatmap indicates the crime severity and recency.
Metrics Year-on-Year
- Average area value
- 397,500.00 £Decreased by 6.87 %
- Est sale value
- 988,050.00 £Decreased by 5.91 %
- Average area rental value
- 1,383.00 £/moDecreased by 19.36 %
- Est letting value
- 2,823.00 £/moUnchanged by 0.00 %
- Est rental Yield
- 4.18 %Decreased by 13.28 %
- Crime Rate
- 33.00 %Unchanged by 0.00 %
Agent Activity
Moxy Property Consultants created the listing.
Nearby Schools
| Name | Type | Ofsted | Distance |
|---|---|---|---|
| Wainscott Primary School | Academy Sponsor Led | 0.49 KM | |
| Chattenden Primary School | Academy Converter | Good | 1.58 KM |
| Hilltop Primary Academy | Academy Converter | 1.63 KM | |
| English Martyrs' Catholic Primary School | Voluntary Aided School | Good | 1.95 KM |
| The Children'S Centre At Temple Mill | Children's Centre | 2.18 KM |
Images
Nearby Streets
| Name | Average Price | Average Sqft | Distance |
|---|---|---|---|
| Shalom | £ 0 | 0 | 0.00 KM |
| RS238 | £ 0 | 0 | 0.00 KM |
| Ordnance Yard Road | £ 0 | 0 | 0.00 KM |
| Haven Street | £ 0 | 0 | 0.00 KM |
| Beacon Hill Lane | £ 2,200,000 | 0 | 0.00 KM |
Nearby Transport
| Name | NLC | TLC | Distance |
|---|---|---|---|
| Strood (Kent) | 5191 | SOO | 2.28 KM |
| Rochester | 5203 | RTR | 2.92 KM |
| Chatham | 5199 | CTM | 3.54 KM |
| Gillingham (Kent) | 5169 | GLM | 4.81 KM |
| Higham | 5202 | HGM | 5.57 KM |
Nearby Listings
| Address | Price | Type | Score | Distance |
|---|---|---|---|---|
| Choir Close, Wainscott, Rochester | £ 375,000 | BUY | 7 / 10 | 0.00 KM |
| Choir Close, Wainscott, Rochester, Kent. ME3 | £ 450,000 | BUY | 8 / 10 | 0.00 KM |
| Choir Close, Rochester, Kent | £ 365,000 | BUY | Unknown | 0.00 KM |
| Choir Close, Wainscott, Rochester | £ 290,000 | BUY | 7 / 10 | 0.00 KM |
| Choir Close, Wainscott, Rochester, Kent, ME3 | £ 300,000 | BUY | Unknown | 0.01 KM |
Nearby Properties
| Address | Price | Distance |
|---|---|---|
| 24 Choir Close | £ 240,000 | 0.01 KM |
| 16 Choir Close | £ 255,000 | 0.01 KM |
| 26 Choir Close | £ 189,500 | 0.01 KM |
| 23 Choir Close | £ 240,000 | 0.01 KM |
| 24 Chancel Drive | £ 213,000 | 0.07 KM |