Frocester Hill, Frocester, Stonehouse
By Naylor Powell
£ 250,000
Reviews
3 out of 5 stars
Naylor Powell says ..
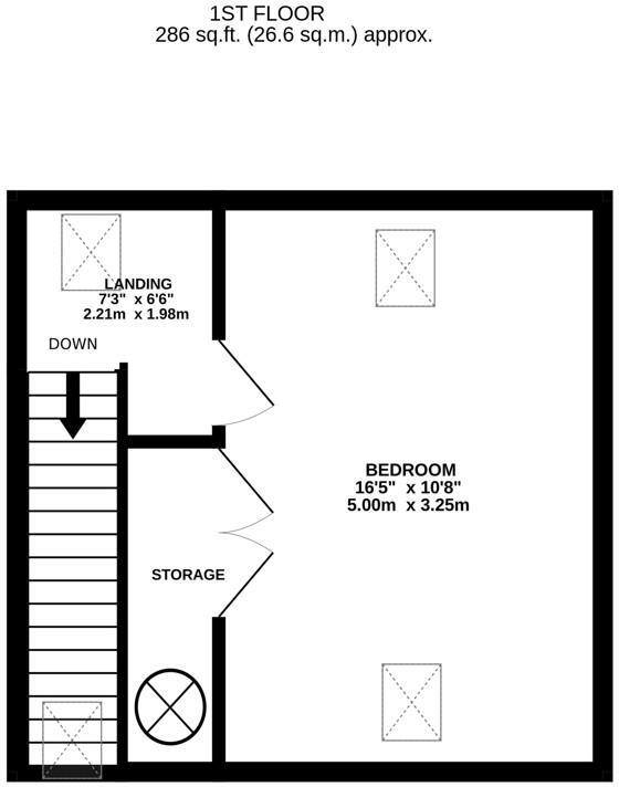
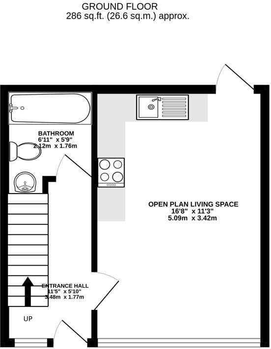
Situated within a small development of nine barn conversions on Frocester Hill, this mid-terrace one bedroom property offers an open plan kitchen/living room with exposed brickwork and a downstairs bathroom to the ground floor. on the first floor, there is a landing that could be used as a potent...
Property Oracle says ..
This property is a one-bedroom barn conversion located in Frocester, Gloucestershire. The property is finished to a good standard, with a modern kitchen and bathroom. While the plot size is small, there is a small enclosed rear garden. The location is rural, with nearby access to Stonehouse, Cam and Dursley train stations. Several primary schools are within a reasonable distance. The list price of £250,000 is slightly above the average price for the area (£245,826), but given the modern condition and conversion style of the property, it may be considered reasonable. However, the lack of information regarding the square footage of the property makes a definitive statement on value difficult.
Therefore, we give this property 6 / 10. *Disclaimer: This is our option and does constitute a recommendation or financial advice. Do your own research. *
- Price
- 7
- Condition
- 8
- Location
- 7
- Land
- 3
- Bedrooms
- 1
- Bathrooms
- 1
- Sqft (est)
- 572.00
The heatmap indicates the level of crime in the area. The color of the heatmap indicates the crime severity and recency.
Metrics Year-on-Year
- Average area value
- 251,538.00 £Increased by 21.55 %
- Est sale value
- 118,404.00 £Decreased by 4.17 %
- Average area rental value
- 754.00 £/moDecreased by 18.22 %
- Est letting value
- 0.00 £/mo
- Est rental Yield
- 3.60 %Decreased by 32.71 %
- Crime Rate
- 0.00 %
Agent Activity
Naylor Powell created the listing.
Nearby Schools
| Name | Type | Ofsted | Distance |
|---|---|---|---|
| St Joseph'S Catholic Primary School | Voluntary Aided School | Good | 1.82 KM |
| Leonard Stanley Church Of England Primary School | Voluntary Aided School | Good | 3.15 KM |
| Coaley Church Of England Primary Academy | Academy Sponsor Led | 3.30 KM | |
| Uley Church Of England Primary School | Voluntary Controlled School | Good | 3.33 KM |
| King'S Stanley Cofe Primary School | Voluntary Controlled School | Good | 3.74 KM |
Images
Nearby Streets
| Name | Average Price | Average Sqft | Distance |
|---|---|---|---|
| Frocester Hill | £ 0 | 0 | 0.00 KM |
| Knapp Lane | £ 850,000 | 0 | 0.00 KM |
| Court Road | £ 0 | 0 | 0.00 KM |
| The Cross | £ 795,000 | 0 | 0.00 KM |
Nearby Transport
| Name | NLC | TLC | Distance |
|---|---|---|---|
| Stonehouse | 4770 | SHU | 4.39 KM |
| Cam And Dursley | 3238 | CDU | 6.23 KM |
| Stroud (Gloucs) | 4771 | STD | 9.84 KM |
Nearby Listings
| Address | Price | Type | Score | Distance |
|---|---|---|---|---|
| Frocester Hill, Frocester, Stonehouse | £ 250,000 | BUY | 6 / 10 | 0.00 KM |
| Frocester Hill, Frocester, Stonehouse | £ 299,950 | BUY | 6 / 10 | 0.17 KM |
| Frocester Hill, Frocester, Stonehouse | £ 285,000 | BUY | 7 / 10 | 0.17 KM |
| Frocester Hill, Frocester, Stonehouse | £ 325,000 | BUY | 7 / 10 | 0.17 KM |
| Frocester Hill, Frocester, Stonehouse | £ 390,000 | BUY | 6 / 10 | 0.19 KM |
Nearby Properties
| Address | Price | Distance |
|---|---|---|
| The Hollies | £ 335,000 | 0.70 KM |
| Constables Cottage | £ 965,000 | 0.70 KM |
| Bracken House | £ 900,000 | 0.71 KM |
| Pike House | £ 285,000 | 1.20 KM |
| Red Cottage | £ 231,100 | 1.20 KM |