West Terrace, Burley in Wharfedale, Ilkley, West Yorkshire, LS29
By Dale Eddison
£ 250,000
Reviews
3 out of 5 stars
Dale Eddison says ..
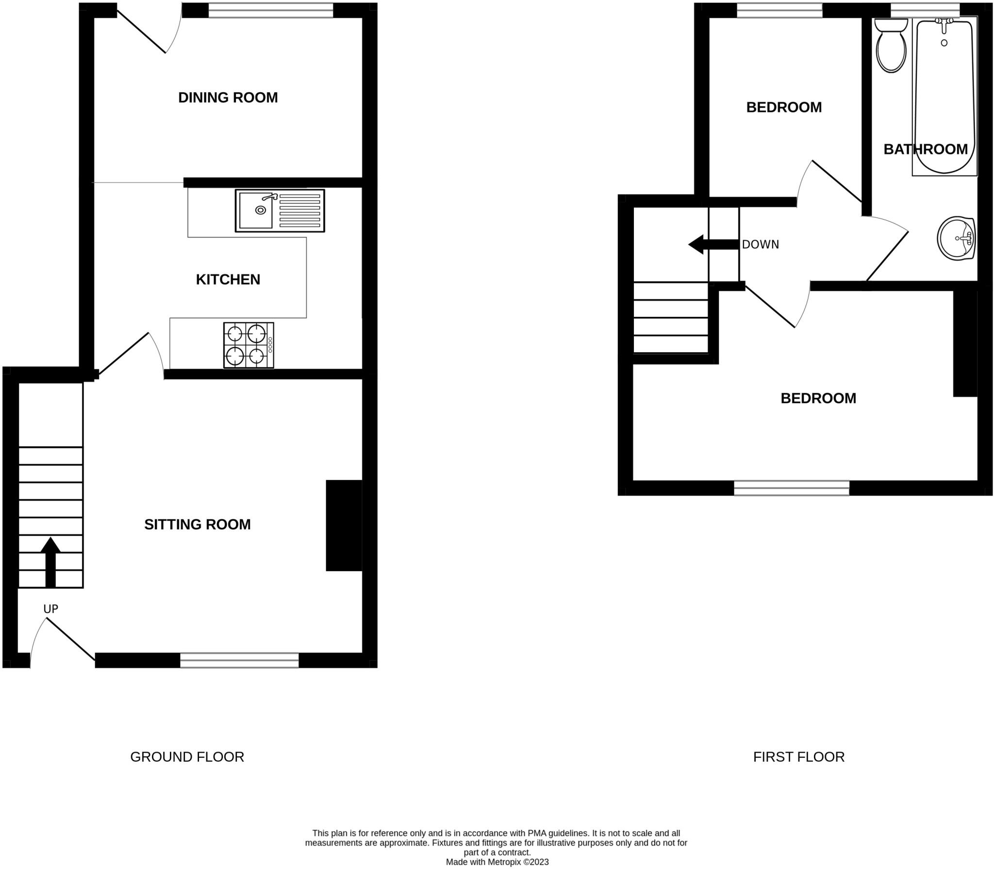
* STONE BUILT COTTAGE * TWO BEDROOMS * REAR COURTYARD * SOUGHT AFTER VILLAGE LOCATION * OFF STREET PARKING * NO ONWARD CHAIN *
Property Oracle says ..
Therefore, we give this property 6 / 10. *Disclaimer: This is our option and does constitute a recommendation or financial advice. Do your own research. *
- Price
- 8
- Condition
- 7
- Location
- 8
- Land
- 3
- Bedrooms
- 2
- Bathrooms
- 1
- Sqft (est)
- 728.00
The heatmap indicates the level of crime in the area. The color of the heatmap indicates the crime severity and recency.
Metrics Year-on-Year
- Average area value
- 474,196.00 £Decreased by 8.85 %
- Est sale value
- 263,536.00 £Decreased by 11.71 %
- Average area rental value
- 1,571.00 £/moIncreased by 10.17 %
- Est letting value
- 728.00 £/moUnchanged by 0.00 %
- Est rental Yield
- 3.98 %Increased by 20.97 %
- Crime Rate
- 59.00 %Unchanged by 0.00 %
from 520,249.00 £
from 298,480.00 £
from 1,426.00 £/mo
from 728.00 £/mo
from 3.29 %
from 59.00 %
Agent Activity
Dale Eddison created the listing.
Nearby Schools
| Name | Type | Ofsted | Distance |
|---|---|---|---|
| Ghyll Royd School And Pre-School | Other Independent School | 0.38 KM | |
| Burley Oaks Primary School | Community School | Outstanding | 1.02 KM |
| Burley And Woodhead Cofe Primary School | Voluntary Controlled School | Good | 1.36 KM |
| Askwith Community Primary School | Academy Converter | 2.18 KM | |
| Menston Primary School | Community School | Good | 3.38 KM |
Images
Nearby Streets
| Name | Average Price | Average Sqft | Distance |
|---|---|---|---|
| Summer Court | £ 339,983 | 0 | 0.00 KM |
| Whernside Lane | £ 0 | 0 | 0.00 KM |
| Victoria Road | £ 515,000 | 0 | 0.00 KM |
| Mill View | £ 0 | 0 | 0.00 KM |
| Greenholme Cottages | £ 0 | 0 | 0.00 KM |
Nearby Transport
| Name | NLC | TLC | Distance |
|---|---|---|---|
| Burley-In-Wharfedale | 8565 | BUW | 0.96 KM |
| Menston | 8574 | MNN | 3.49 KM |
| Ben Rhydding | 8564 | BEY | 4.74 KM |
| Guiseley | 8567 | GSY | 6.36 KM |
| Baildon | 8552 | BLD | 7.38 KM |
Nearby Listings
| Address | Price | Type | Score | Distance |
|---|---|---|---|---|
| West Terrace, Burley in Wharfedale, Ilkley, West Yorkshire, LS29 | £ 250,000 | BUY | 6 / 10 | 0.00 KM |
| 229 West Terrace, in beautiful Burley-in-Wharfedale, Ilkley LS29 7JG | £ 280,000 | BUY | 7 / 10 | 0.03 KM |
| West Terrace, Burley In Wharfedale, Ilkley | £ 365,000 | BUY | 7 / 10 | 0.03 KM |
| West Terrace, Burley in Wharfedale | £ 235,000 | BUY | 7 / 10 | 0.05 KM |
| Millstone Close, Ilkley | £ 650,000 | BUY | 7 / 10 | 0.05 KM |
Nearby Properties
| Address | Price | Distance |
|---|---|---|
| 6 Gritstone Close | £ 330,000 | 0.05 KM |
| 20 Gritstone Close | £ 231,000 | 0.05 KM |
| 8 Gritstone Close | £ 319,000 | 0.05 KM |
| 16 Gritstone Close | £ 325,000 | 0.05 KM |
| 10 Gritstone Close | £ 221,650 | 0.05 KM |