Century Walk, Deal, CT14
By Jenkinson Estates
£ 315,000
Reviews
2 out of 5 stars
Jenkinson Estates says ..
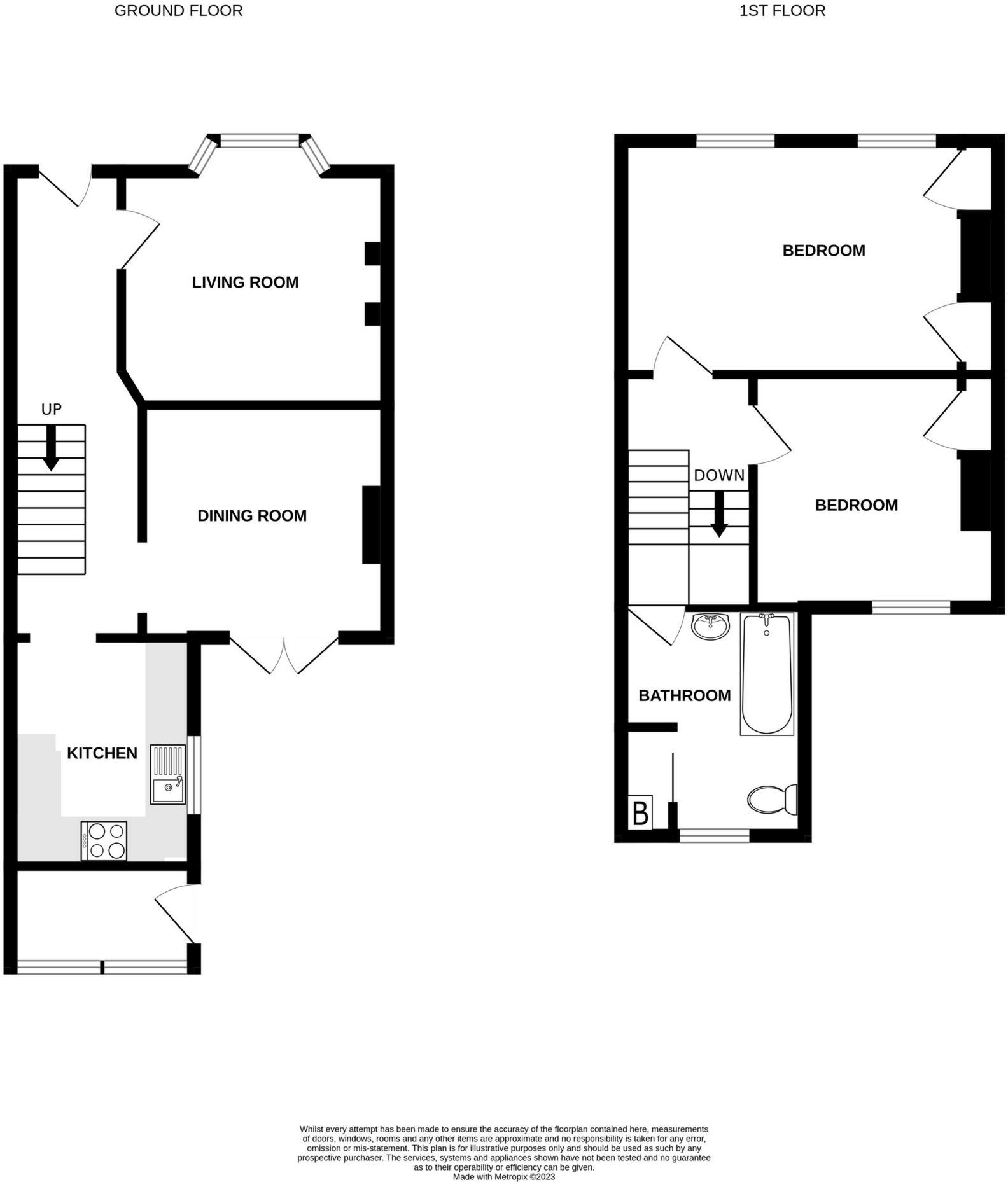
Jenkinson Estates are delighted to bring new to the market this semi detached, period cottage which is located in Deal Town Centre. This particular cottage offers good size of accommodation for this style of home to include two double bedrooms and a family bathroom to the first floor. To the grou...
Property Oracle says ..
This two-bedroom, one-bathroom property located on Century Walk in Deal, Kent, is presented for sale at £315,000. The property is a semi-detached house, and the provided photographs reveal a relatively well-maintained interior and exterior. The interior boasts several key features, including a living room with a fireplace and a separate dining area, suggesting adequate space for everyday living. The kitchen appears functional but could benefit from some modernization. The bathroom is clean and tidy. The garden is small but provides a small private outdoor space. The lack of plot size information makes it difficult to comment on the land area quantitatively. The location offers convenient access to Deal town centre and its amenities, along with reasonably nearby schools and Deal train station. However, detailed information on the quality of nearby schools and a precise assessment of the neighborhood’s character would be necessary for a complete appraisal. The price seems reasonable when considering the other nearby listings, but additional information on price per square foot would be beneficial to establish accurate value. Overall, the property appears suitable for a first-time buyer or a small family, but potential buyers should personally inspect the property to fully assess its condition and suitability to their needs.
Therefore, we give this property 5 / 10. *Disclaimer: This is our option and does constitute a recommendation or financial advice. Do your own research. *
- Price
- 7
- Condition
- 6
- Location
- 7
- Land
- 3
- Bedrooms
- 2
- Bathrooms
- 1
- Sqft (est)
- 770.00
The heatmap indicates the level of crime in the area. The color of the heatmap indicates the crime severity and recency.
Metrics Year-on-Year
- Average area value
- 505,375.00 £Increased by 53.39 %
- Est sale value
- 380,380.00 £Increased by 26.99 %
- Average area rental value
- 1,085.00 £/moDecreased by 20.22 %
- Est letting value
- 770.00 £/moUnchanged by 0.00 %
- Est rental Yield
- 2.58 %Decreased by 47.88 %
- Crime Rate
- 20.00 %Unchanged by 0.00 %
Agent Activity
Jenkinson Estates marked this listing as sold.
Jenkinson Estates created the listing.
Nearby Schools
| Name | Type | Ofsted | Distance |
|---|---|---|---|
| Sandown School | Academy Converter | 0.49 KM | |
| Brewood Secondary School | Other Independent Special School | Good | 0.91 KM |
| Goodwin Academy | Academy Sponsor Led | 1.26 KM | |
| Deal Parochial Church Of England Primary School | Academy Converter | 1.34 KM | |
| Warden House Primary School | Academy Converter | Outstanding | 2.07 KM |
Images
Nearby Streets
| Name | Average Price | Average Sqft | Distance |
|---|---|---|---|
| St. Andrew's Road | £ 470,000 | 0 | 0.00 KM |
| Wellington Court | £ 172,500 | 0 | 0.00 KM |
| Lydden Close | £ 380,833 | 0 | 0.00 KM |
| Coach Yard | £ 0 | 0 | 0.00 KM |
| Black Horse Alley | £ 0 | 0 | 0.00 KM |
Nearby Transport
| Name | NLC | TLC | Distance |
|---|---|---|---|
| Deal | 5011 | DEA | 0.19 KM |
| Walmer | 5041 | WAM | 3.00 KM |
| Sandwich | 5026 | SDW | 8.05 KM |
| Martin Mill | 5040 | MTM | 8.25 KM |
Nearby Listings
| Address | Price | Type | Score | Distance |
|---|---|---|---|---|
| Century Walk, Deal, CT14 | £ 420,000 | BUY | 6 / 10 | 0.00 KM |
| Century Walk, Deal, CT14 | £ 315,000 | BUY | 5 / 10 | 0.00 KM |
| Sunnyside Cottages, Anchor Lane, Deal, Kent, CT14 6AJ | £ 250,000 | BUY | Unknown | 0.06 KM |
| West Street, Deal, Kent, CT14 | £ 400,000 | BUY | 6 / 10 | 0.10 KM |
| St. Patrick's Road, Deal, Kent | £ 495,000 | BUY | Unknown | 0.11 KM |
Nearby Properties
| Address | Price | Distance |
|---|---|---|
| 15 Century Walk | £ 168,000 | 0.01 KM |
| 45 Century Walk | £ 360,000 | 0.01 KM |
| 23 Century Walk | £ 275,000 | 0.01 KM |
| 53 Century Walk | £ 450,000 | 0.01 KM |
| 21 Century Walk | £ 180,000 | 0.01 KM |