Stags says ..
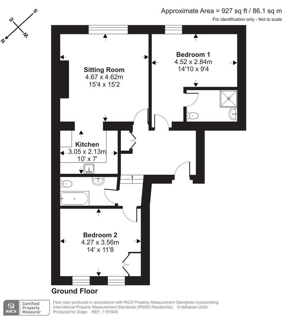
A spacious 2-bedroom apartment on the first floor of a characterful Grade Il Listed property in the heart of Tavistock, benefitting from an allocated parking space and with no onward chain. Large sitting room/kitchen area, master bedroom with en-suite, no onward chain, Leasehold 125yrs (104yrs re...
Property Oracle says ..
This 2-bedroom apartment in Newmarket Court, Tavistock, offers a central location within the town. The property is described as being in a characterful Grade II listed building, which could be a positive feature for some buyers. The internal photos showcase a functional layout; however, the decor is somewhat dated and may require updating to appeal to a modern buyer. The apartment’s selling point is undoubtedly its location in Tavistock town center, offering convenience to shops, schools, and other amenities. While the lack of a private garden or large outdoor space might be a drawback for some, the allocated parking space could be a significant advantage. The price, considering the location and comparative property listings (though limited in detail), seems within a reasonable range. Potential buyers should be aware that the property is leasehold with a remaining lease of 104 years. A thorough inspection is recommended to assess the overall condition and structural integrity of both the apartment and the building itself.
Therefore, we give this property 5 / 10. *Disclaimer: This is our option and does constitute a recommendation or financial advice. Do your own research. *
- Price
- 7
- Condition
- 6
- Location
- 8
- Land
- 1
- Bedrooms
- 2
- Bathrooms
- 2
- Sqft (est)
- 926.77
The heatmap indicates the level of crime in the area. The color of the heatmap indicates the crime severity and recency.
Metrics Year-on-Year
- Average area value
- 315,556.00 £Increased by 2.62 %
- Est sale value
- 292,859.32 £Increased by 3.95 %
- Average area rental value
- 850.00 £/moIncreased by 8.97 %
- Est letting value
- 0.00 £/mo
- Est rental Yield
- 3.23 %Increased by 6.25 %
- Crime Rate
- 62.00 %Unchanged by 0.00 %
Agent Activity
Stags created the listing.
Nearby Schools
| Name | Type | Ofsted | Distance |
|---|---|---|---|
| St Rumon'S Church Of England (Vc) Infants School | Academy Converter | 0.31 KM | |
| Tavistock & District Children'S Centre | Children's Centre | 0.54 KM | |
| St Peter'S Church Of England (Va) Junior School | Academy Sponsor Led | Requires improvement | 0.80 KM |
| Tavistock Primary & Nursery School | Foundation School | Good | 1.08 KM |
| Mount Kelly | Other Independent School | 1.20 KM |
Images
Nearby Streets
| Name | Average Price | Average Sqft | Distance |
|---|---|---|---|
| Church Lane | £ 0 | 0 | 0.00 KM |
| St Johns Avenue | £ 0 | 0 | 0.00 KM |
| Lynbridge Court | £ 0 | 0 | 0.00 KM |
| Lakeside | £ 265,000 | 0 | 0.00 KM |
| Dathan Close | £ 0 | 0 | 0.00 KM |
Nearby Transport
| Name | NLC | TLC | Distance |
|---|---|---|---|
| Gunnislake | 3563 | GSL | 9.11 KM |
| Calstock | 3562 | CSK | 9.21 KM |
| Bere Alston | 3549 | BAS | 9.48 KM |
Nearby Listings
| Address | Price | Type | Score | Distance |
|---|---|---|---|---|
| Newmarket Court, Tavistock | £ 160,000 | BUY | 5 / 10 | 0.00 KM |
| Newmarket Court, Tavistock | £ 189,950 | BUY | 5 / 10 | 0.00 KM |
| Tavistock, Devon | £ 175,000 | BUY | 6 / 10 | 0.05 KM |
| Barley market Street, Tavistock | £ 169,950 | BUY | 6 / 10 | 0.06 KM |
| Chapel Heights, Tavistock | £ 200,000 | BUY | 6 / 10 | 0.06 KM |
Nearby Properties
| Address | Price | Distance |
|---|---|---|
| 3 Newmarket Court | £ 76,950 | 0.01 KM |
| 6 Newmarket Court | £ 84,000 | 0.01 KM |
| 7 Newmarket Court | £ 127,000 | 0.01 KM |
| 5 Newmarket Court | £ 125,000 | 0.01 KM |
| 1 Drake Road | £ 365,000 | 0.07 KM |