Swallow Road, Birds Estate, Larkfield, Kent
By Wards
£ 540,000
Reviews
3 out of 5 stars
Wards says ..
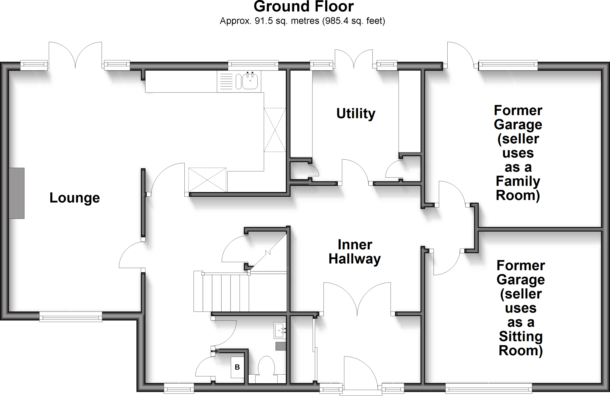
This extended semi-detached house certainly has the wow factor for it's super size and amazing versatility. You can walk to schools, doctors, shops and supermarkets. A wide driveway and a garage makes life easy for parking. Commuting by road or rail is a breeze from here too.
Property Oracle says ..
This property is a 5-bedroom, 2-bathroom semi-detached house located in Larkfield, Kent. The property benefits from being close to several highly-rated schools, including Brookfield Junior School, Lunsford Primary School, and Brookfield Infant School, all within a short distance. The location also offers convenient access to several Southeastern train stations, making commuting relatively easy. The house itself appears to be in good condition, with a modern kitchen and updated bathrooms. While some areas show minor wear and tear, it does not appear to require extensive renovations. The property includes a garden, though its size is not specified. The list price of £540,000 is significantly higher than the average price for the area (£269,779), and given the relatively small size of the property (578 sqft) compared to the area average (1096 sqft), the price per square foot is considerably higher. However, this may be justified by the house’s good condition, location, and proximity to amenities. More information on the plot size would be needed to fully assess the value.
Therefore, we give this property 7 / 10. *Disclaimer: This is our option and does constitute a recommendation or financial advice. Do your own research. *
- Price
- 5
- Condition
- 8
- Location
- 9
- Land
- 6
- Bedrooms
- 5
- Bathrooms
- 2
- Sqft (est)
- 578.00
The heatmap indicates the level of crime in the area. The color of the heatmap indicates the crime severity and recency.
Metrics Year-on-Year
- Average area value
- 158,000.00 £Decreased by 48.78 %
- Est sale value
- 192,474.00 £Decreased by 35.21 %
- Average area rental value
- 1,475.00 £/moDecreased by 20.49 %
- Est letting value
- 1,734.00 £/moUnchanged by 0.00 %
- Est rental Yield
- 11.20 %Increased by 55.12 %
- Crime Rate
- 10.00 %Unchanged by 0.00 %
Agent Activity
Wards created the listing.
Nearby Schools
| Name | Type | Ofsted | Distance |
|---|---|---|---|
| Brookfield Junior School | Community School | Good | 0.20 KM |
| Lunsford Primary School | Community School | Good | 0.30 KM |
| Brookfield Infant School | Community School | Outstanding | 0.31 KM |
| Woodlands Children'S Centre | Children's Centre | 1.22 KM | |
| St James The Great Academy | Academy Sponsor Led | Good | 1.50 KM |
Images
Nearby Streets
| Name | Average Price | Average Sqft | Distance |
|---|---|---|---|
| Oak Drive | £ 425,000 | 0 | 0.00 KM |
| Raven Close | £ 350,000 | 0 | 0.00 KM |
| Chestnut Walk | £ 389,995 | 0 | 0.00 KM |
| Masefield Road | £ 325,000 | 0 | 0.00 KM |
| River Way | £ 467,500 | 0 | 0.00 KM |
Nearby Transport
| Name | NLC | TLC | Distance |
|---|---|---|---|
| New Hythe | 5238 | NHE | 1.87 KM |
| East Malling | 5134 | EML | 2.06 KM |
| West Malling | 5129 | WMA | 2.78 KM |
| Aylesford | 5162 | AYL | 2.85 KM |
| Snodland | 5189 | SDA | 3.02 KM |
Nearby Listings
| Address | Price | Type | Score | Distance |
|---|---|---|---|---|
| Swallow Road, Birds Estate, Larkfield, Kent | £ 540,000 | BUY | 7 / 10 | 0.00 KM |
| Swallow Road, Birds Estate, Larkfield, Kent | £ 281,000 | BUY | 7 / 10 | 0.06 KM |
| Swallow Road, Birds Estate, Larkfield, Kent | £ 450,000 | BUY | 7 / 10 | 0.06 KM |
| Swallow Road, Birds Estate, Larkfield, Kent | £ 425,000 | BUY | 7 / 10 | 0.06 KM |
| Swallow Road, Larkfield, Aylesford, Kent, ME20 6PZ | £ 380,000 | BUY | 7 / 10 | 0.06 KM |
Nearby Properties
| Address | Price | Distance |
|---|---|---|
| 78 Swallow Road | £ 220,000 | 0.07 KM |
| 72 Swallow Road | £ 211,500 | 0.07 KM |
| 93 Swallow Road | £ 265,000 | 0.07 KM |
| 76 Swallow Road | £ 385,000 | 0.07 KM |
| 102 Swallow Road | £ 305,000 | 0.07 KM |