Chapel Lane, Aslockton, Nottingham
By Newton Fallowell
£ 280,000
Reviews
2 out of 5 stars
Newton Fallowell says ..
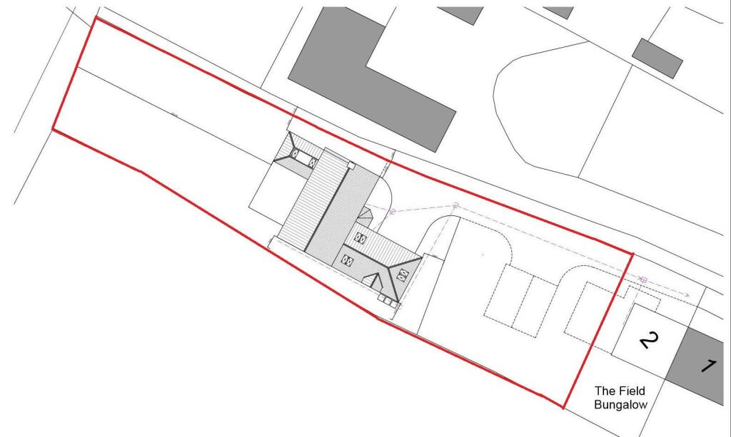
PLOT FOR SALE PLANNING PERMISSION HAS BEEN GRANTED TO BUILD - THIS HAS STARTED SO PERMISSION WILL NOT LAPSE- A MODERN, FOUR BEDROOM DETACHED HOME MEASURING APPROXIMATELY 2560 SQ .F. ON APPROXIMATELY 0.23 OF AN ACRE. LOCATED WITH THE POPULAR VILLAGE OF ASLOCKTON. PLANNING REF: 18/01...
Property Oracle says ..
This listing presents a unique opportunity to construct a new home in the desirable village of Aslockton, Nottinghamshire. The property is a plot of land with approved planning permission for a four-bedroom detached home, measuring approximately 2560 square feet on approximately 0.23 of an acre. The location is favorable, given its proximity to Archbishop Cranmer Church of England Academy (0.38 KM) and Aslockton train station (0.41 KM). Access to other amenities and schools in nearby Bingham further enhances its appeal. However, it’s crucial to note that the listing is for a plot of land only; there is no existing structure. Therefore, the buyer should budget for the costs associated with construction. The list price reflects the value of the land and the approved planning permission, considering comparable properties in the area but the absence of a completed dwelling impacts the overall assessment. Potential buyers should carefully weigh the cost of construction against the final property value to determine if the overall investment is worthwhile. The area shows a mix of property styles and prices with some high-value properties, indicating a range of buyers in this area.
Therefore, we give this property 5 / 10. *Disclaimer: This is our option and does constitute a recommendation or financial advice. Do your own research. *
- Price
- 6
- Condition
- 1
- Location
- 7
- Land
- 8
- Bedrooms
- 0
- Bathrooms
- 0
The heatmap indicates the level of crime in the area. The color of the heatmap indicates the crime severity and recency.
Metrics Year-on-Year
- Average area value
- 416,000.00 £Decreased by 16.21 %
- Average area rental value
- 1,900.00 £/moIncreased by 52.00 %
- Est rental Yield
- 5.48 %Increased by 81.46 %
- Crime Rate
- 30.00 %Unchanged by 0.00 %
Agent Activity
Newton Fallowell marked this listing as sold.
Newton Fallowell created the listing.
Nearby Schools
| Name | Type | Ofsted | Distance |
|---|---|---|---|
| Archbishop Cranmer Church Of England Academy | Academy Converter | 0.38 KM | |
| Carnarvon Primary School | Community School | Outstanding | 4.38 KM |
| Orston Primary School | Community School | Outstanding | 4.87 KM |
| Flintham Primary School | Academy Converter | 5.82 KM | |
| Robert Miles Junior School | Academy Converter | Good | 5.97 KM |
Images
Nearby Streets
| Name | Average Price | Average Sqft | Distance |
|---|---|---|---|
| Chapel Row | £ 224,950 | 0 | 0.00 KM |
| School Lane | £ 0 | 0 | 0.00 KM |
| Riverside | £ 0 | 0 | 0.00 KM |
Nearby Transport
| Name | NLC | TLC | Distance |
|---|---|---|---|
| Aslockton | 6233 | ALK | 0.41 KM |
| Elton And Orston | 6238 | ELO | 4.66 KM |
| Bingham | 6235 | BIN | 5.97 KM |
Nearby Listings
| Address | Price | Type | Score | Distance |
|---|---|---|---|---|
| Chapel Lane, Aslockton | £ 795,000 | BUY | 7 / 10 | 0.00 KM |
| Chapel Lane, Aslockton, Nottingham | £ 280,000 | BUY | 5 / 10 | 0.00 KM |
| Field Bungalow, Aslockton, Bingham | £ 224,950 | BUY | 7 / 10 | 0.04 KM |
| Chapel Lane, Aslockton | £ 625,000 | BUY | 6 / 10 | 0.04 KM |
| Manor Farmhouse, Mill Lane, Aslockton, Nottinghamshire, NG13 9AS | £ 700,000 | BUY | Unknown | 0.15 KM |
Nearby Properties
| Address | Price | Distance |
|---|---|---|
| Long Reach | £ 445,000 | 0.04 KM |
| Westside | £ 180,000 | 0.04 KM |
| The Limes | £ 570,000 | 0.04 KM |
| Manor House | £ 870,000 | 0.17 KM |
| Cranmer Cottage | £ 430,000 | 0.17 KM |