Edge Lane, Fairfield, Liverpool
By Tenanted Property Sales
£ 295,000
Reviews
2 out of 5 stars
Tenanted Property Sales says ..
ATTENTION INVESTORS - PURCHASE THIS READY MADE INVESTMENT PROPERTY! Offered to the market as a ready-made investment, this converted HMO property presents a fantastic opportunity to acquire an up and running HMO property investment. The property is well located within a short commute to...
Property Oracle says ..
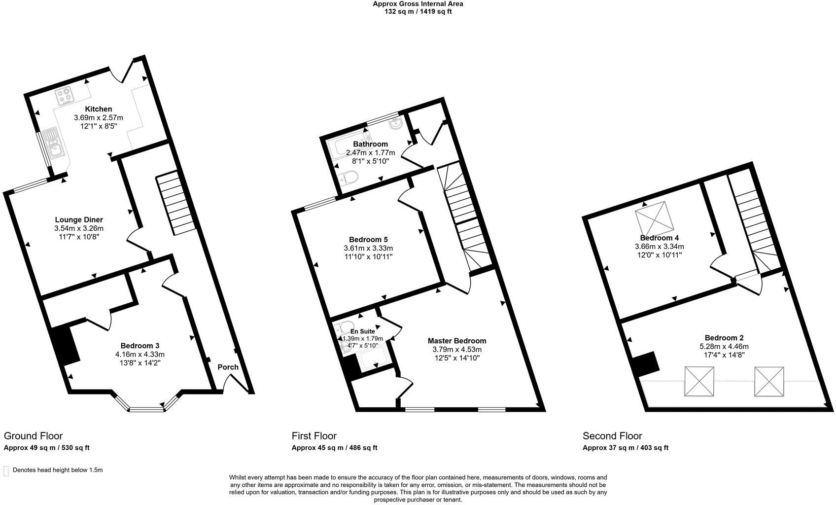
This five-bedroom, three-bathroom property on Edge Lane, Liverpool, presents a mixed bag. Its key strength lies in its location. The proximity to Edge Hill train station and several highly-rated schools makes it attractive to families and commuters. Liverpool City Centre is also reasonably accessible. However, the property’s condition presents some points of concern. While some areas like kitchens and bathrooms appear updated, other rooms show a need for improvements and furnishings. Notably, the property lacks a substantial garden, only offering a small, unkempt yard. The asking price of £295,000 is justifiable considering the number of bedrooms and relatively convenient location, but could be viewed as slightly less competitive due to the condition and lack of outdoor space. Potential buyers should factor in the cost of renovations and weigh these against the benefits of the location and the property’s size. Overall, it could prove a sound investment with some improvements or an adequate family home depending on the buyers priorities.
Therefore, we give this property 4 / 10. *Disclaimer: This is our option and does constitute a recommendation or financial advice. Do your own research. *
- Price
- 7
- Condition
- 5
- Location
- 6
- Land
- 1
- Bedrooms
- 5
- Bathrooms
- 3
- Sqft (est)
- 1,419.00
The heatmap indicates the level of crime in the area. The color of the heatmap indicates the crime severity and recency.
Metrics Year-on-Year
- Average area value
- 152,494.00 £Decreased by 1.22 %
- Est sale value
- 319,275.00 £Increased by 74.42 %
- Average area rental value
- 782.00 £/moIncreased by 10.92 %
- Est letting value
- 1,419.00 £/mo
- Est rental Yield
- 6.15 %Increased by 12.23 %
- Crime Rate
- 4.00 %Unchanged by 0.00 %
Agent Activity
Tenanted Property Sales created the listing.
Nearby Schools
| Name | Type | Ofsted | Distance |
|---|---|---|---|
| Harmonize Academy Ap Free School | Free Schools Alternative Provision | Outstanding | 0.53 KM |
| Kensington Primary School | Community School | Good | 0.60 KM |
| St Sebastian'S Catholic Primary School And Nursery | Voluntary Aided School | Outstanding | 0.67 KM |
| Kensington Children'S Centre (Life Bank) | Children's Centre | 0.72 KM | |
| Marydale Lodge Sch | Secure Units | 0.91 KM |
Images
Nearby Streets
| Name | Average Price | Average Sqft | Distance |
|---|---|---|---|
| Botanic Grove | £ 0 | 0 | 0.00 KM |
| Bremner Close | £ 0 | 0 | 0.00 KM |
| Crosfield Close | £ 350,000 | 0 | 0.00 KM |
| Dairy Close | £ 190,000 | 0 | 0.00 KM |
| Onslow Road | £ 292,667 | 0 | 0.00 KM |
Nearby Transport
| Name | NLC | TLC | Distance |
|---|---|---|---|
| Edge Hill | 2169 | EDG | 0.69 KM |
| Wavertree Technology Park | 8589 | WAV | 2.37 KM |
| Liverpool Lime Street | 2246 | LIV | 3.72 KM |
| St Michaels | 2248 | STM | 3.76 KM |
| Liverpool Central | 2242 | LVC | 3.90 KM |
Nearby Listings
| Address | Price | Type | Score | Distance |
|---|---|---|---|---|
| Edge Lane, Fairfield, Liverpool | £ 295,000 | BUY | 4 / 10 | 0.00 KM |
| Edge Lane, Fairfield, Liverpool, Merseyside | £ 310,000 | BUY | 5 / 10 | 0.06 KM |
| Bradfield Street, Liverpool, Merseyside, L7 | £ 180,000 | BUY | 5 / 10 | 0.12 KM |
| Cameron Street, Liverpool, L7 | £ 120,000 | BUY | 6 / 10 | 0.16 KM |
| Botanic Road, Liverpool | £ 285,000 | BUY | 5 / 10 | 0.21 KM |
Nearby Properties
| Address | Price | Distance |
|---|---|---|
| 267 Edge Lane | £ 225,000 | 0.01 KM |
| 263 Edge Lane | £ 330,000 | 0.01 KM |
| 275 Edge Lane | £ 93,000 | 0.01 KM |
| 271a Edge Lane | £ 180,000 | 0.01 KM |
| 11 Botanic Place | £ 65,000 | 0.06 KM |