Pearsons says ..
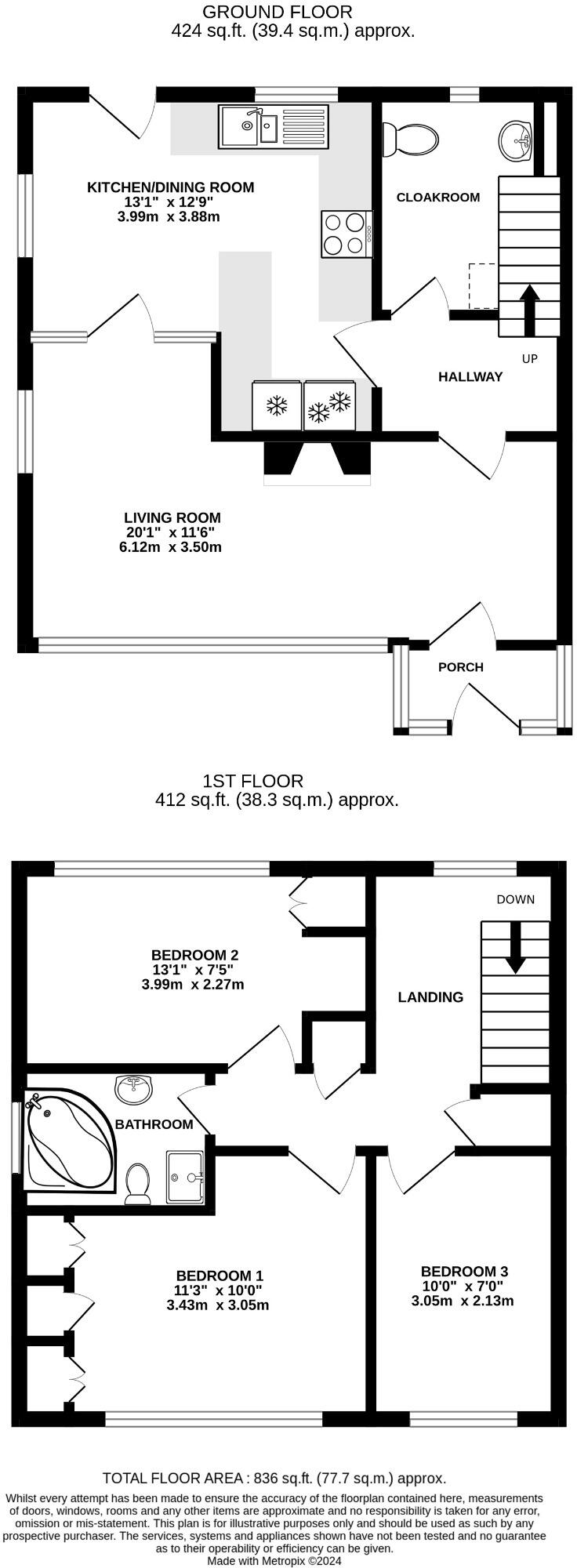
NO FORWARD CHAIN. This three bedroom family home is located in the sought-after cul-de-sac location of Abbeyfield Drive. The generous ground floor accommodation comprises; large living room, a kitchen/diner which has plenty of storage and surface space and a cloakroom. On the first floor, three b...
Property Oracle says ..
This three-bedroom semi-detached house in Fareham, Hampshire, presents a mixed bag of advantages and disadvantages. The property’s location in Abbeyfield Drive offers a good balance of convenience and tranquility. Nearby schools and relatively easy access to Fareham town centre and its railway station are significant plus points for families. The garden, although modest in size, provides valuable outdoor space. However, the property’s interior requires modernisation. The decor is dated, and updating would enhance its appeal and market value. The kitchen, in particular, shows its age and could benefit from a full renovation. The list price is comparable to recent sales in the area, suggesting it’s a fair reflection of the current market. Potential buyers should factor in the cost of refurbishment when considering their offer. Overall, the property represents a solid investment opportunity for those willing to undertake some renovation work.
Therefore, we give this property 5 / 10. *Disclaimer: This is our option and does constitute a recommendation or financial advice. Do your own research. *
- Price
- 7
- Condition
- 5
- Location
- 7
- Land
- 4
- Bedrooms
- 3
- Bathrooms
- 1
- Sqft (est)
- 836.36
The heatmap indicates the level of crime in the area. The color of the heatmap indicates the crime severity and recency.
Metrics Year-on-Year
- Average area value
- 429,993.00 £Increased by 1.22 %
- Est sale value
- 320,325.88 £Increased by 9.12 %
- Average area rental value
- 1,850.00 £/moIncreased by 33.29 %
- Est letting value
- 836.36 £/moUnchanged by 0.00 %
- Est rental Yield
- 5.16 %Increased by 31.63 %
- Crime Rate
- 18.00 %Unchanged by 0.00 %
Agent Activity
Pearsons created the listing.
Nearby Schools
| Name | Type | Ofsted | Distance |
|---|---|---|---|
| St Columba Ce Primary School | Academy Sponsor Led | 0.53 KM | |
| The Henry Cort Community College | Community School | Good | 0.61 KM |
| Oak Meadow Children'S Centre | Children's Centre | 0.61 KM | |
| St Francis Special School | Community Special School | Good | 0.82 KM |
| Heathfield Special School | Community Special School | Good | 0.90 KM |
Images
Nearby Streets
| Name | Average Price | Average Sqft | Distance |
|---|---|---|---|
| Poppy Gardens | £ 0 | 0 | 0.00 KM |
| Coppice Way | £ 440,000 | 0 | 0.00 KM |
| Sandisplatt | £ 254,975 | 0 | 0.00 KM |
| Craven Court | £ 315,000 | 0 | 0.00 KM |
| Rowan Way | £ 300,000 | 0 | 0.00 KM |
Nearby Transport
| Name | NLC | TLC | Distance |
|---|---|---|---|
| Fareham | 5900 | FRM | 2.76 KM |
| Swanwick | 5920 | SNW | 5.81 KM |
| Botley | 5894 | BOE | 8.08 KM |
Nearby Listings
| Address | Price | Type | Score | Distance |
|---|---|---|---|---|
| ABBEYFIELD DRIVE, FAREHAM | £ 340,000 | BUY | 5 / 10 | 0.00 KM |
| Abbeyfield Drive, Fareham, Hampshire | £ 280,000 | BUY | Unknown | 0.04 KM |
| ABBEYFIELD DRIVE, FAREHAM | £ 500,000 | BUY | 7 / 10 | 0.07 KM |
| The Cloisters, Fareham | £ 390,000 | BUY | 7 / 10 | 0.09 KM |
| The Cloisters, Fareham, PO15 | £ 210,000 | BUY | 7 / 10 | 0.09 KM |
Nearby Properties
| Address | Price | Distance |
|---|---|---|
| 70 Abbeyfield Drive | £ 174,000 | 0.07 KM |
| 42 Abbeyfield Drive | £ 280,000 | 0.07 KM |
| 64 Abbeyfield Drive | £ 382,450 | 0.07 KM |
| 72 Abbeyfield Drive | £ 425,000 | 0.07 KM |
| 74 Abbeyfield Drive | £ 240,250 | 0.07 KM |