Watson Homes says ..
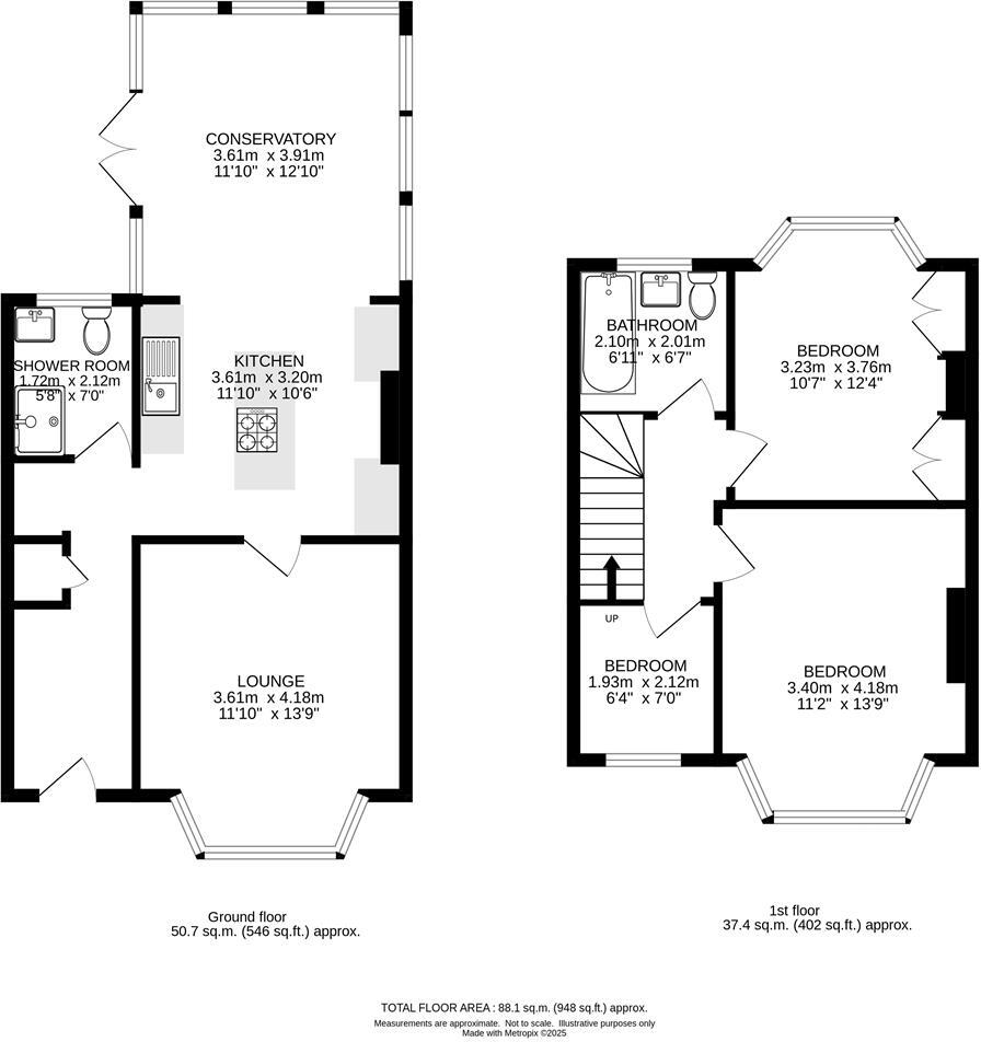
Watson Homes Cheam are delighted to offer this immaculately presented family home, located in the ever popular Cheam Park Farm area of Sutton/Cheam. The property offers modern open plan living, a separate lounge, a pretty rear garden, a downstairs shower room and ample off street parking.
Property Oracle says ..
Therefore, we give this property 7 / 10. *Disclaimer: This is our option and does constitute a recommendation or financial advice. Do your own research. *
- Price
- 7
- Condition
- 8
- Location
- 8
- Land
- 7
- Bedrooms
- 3
- Bathrooms
- 2
- Sqft (est)
- 948.30
The heatmap indicates the level of crime in the area. The color of the heatmap indicates the crime severity and recency.
Metrics Year-on-Year
- Average area value
- 584,167.00 £Increased by 7.05 %
- Est sale value
- 612,601.80 £Increased by 10.81 %
- Average area rental value
- 2,325.00 £/moIncreased by 3.33 %
- Est letting value
- 1,896.60 £/moUnchanged by 0.00 %
- Est rental Yield
- 4.78 %Decreased by 3.43 %
- Crime Rate
- 3.00 %Unchanged by 0.00 %
from 545,689.00 £
from 552,858.90 £
from 2,250.00 £/mo
from 1,896.60 £/mo
from 4.95 %
from 3.00 %
Agent Activity
Watson Homes created the listing.
Nearby Schools
| Name | Type | Ofsted | Distance |
|---|---|---|---|
| Cheam Park Farm Primary Academy | Academy Converter | Outstanding | 0.25 KM |
| Brookfield Primary Academy | Academy Converter | Good | 0.79 KM |
| Westbourne Primary School | Academy Converter | 0.97 KM | |
| Cheam High School | Academy Converter | Outstanding | 0.98 KM |
| Green Oak Children'S Centre (Formally Nonsuch And Cheam Sure Start Children'S Centre) | Children's Centre | 1.14 KM |
Images
Nearby Streets
| Name | Average Price | Average Sqft | Distance |
|---|---|---|---|
| Westfield Close | £ 0 | 0 | 0.00 KM |
| The Meads | £ 0 | 0 | 0.00 KM |
| Esher Avenue | £ 587,500 | 0 | 0.00 KM |
| Westbourne Avenue | £ 1,990,000 | 0 | 0.00 KM |
| Beeches Road | £ 465,438 | 0 | 0.00 KM |
Nearby Transport
| Name | NLC | TLC | Distance |
|---|---|---|---|
| West Sutton | 5293 | WSU | 1.16 KM |
| Sutton Common | 5436 | SUC | 1.80 KM |
| Cheam | 5352 | CHE | 1.99 KM |
| St Helier | 5290 | SIH | 2.40 KM |
| Sutton | 5385 | SUO | 2.81 KM |
Nearby Listings
| Address | Price | Type | Score | Distance |
|---|---|---|---|---|
| Kew Crescent, Cheam, Sutton | £ 575,000 | BUY | 7 / 10 | 0.00 KM |
| KEW CRESCENT, CHEAM, SUTTON, SM3 9RT, SM3 | £ 560,000 | BUY | 7 / 10 | 0.00 KM |
| Kew Crescent, Cheam, Sutton, SM3 | £ 575,000 | BUY | 6 / 10 | 0.07 KM |
| Kew Crescent, Sutton | £ 500,000 | BUY | 6 / 10 | 0.08 KM |
| Walton Avenue, Sutton | £ 600,000 | BUY | 7 / 10 | 0.11 KM |
Nearby Properties
| Address | Price | Distance |
|---|---|---|
| 49 Kew Crescent | £ 270,000 | 0.10 KM |
| 37 Kew Crescent | £ 450,000 | 0.10 KM |
| 53 Kew Crescent | £ 485,000 | 0.10 KM |
| 45 Kew Crescent | £ 485,000 | 0.10 KM |
| 19 Kew Crescent | £ 164,950 | 0.10 KM |