Fine & Country says ..
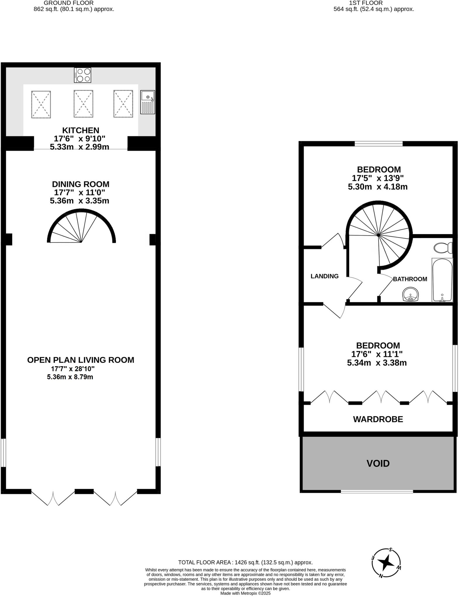
Step inside this remarkable property and you´re greeted by a soaring double-height former Victorian school house, reimagined as a unique and light-filled home in the heart of Holt. With its sixteen-foot glazed windows and doors, vaulted ceilings and open-plan living space that stretches near...
Property Oracle says ..
Therefore, we give this property 7 / 10. *Disclaimer: This is our option and does constitute a recommendation or financial advice. Do your own research. *
- Price
- 9
- Condition
- 8
- Location
- 8
- Land
- 3
- Bedrooms
- 2
- Bathrooms
- 1
- Sqft (est)
- 1,305.23
The heatmap indicates the level of crime in the area. The color of the heatmap indicates the crime severity and recency.
Metrics Year-on-Year
- Average area value
- 398,765.00 £Decreased by 0.35 %
- Est sale value
- 516,871.08 £Increased by 20.73 %
- Average area rental value
- 1,263.00 £/moIncreased by 3.52 %
- Est letting value
- 1,305.23 £/moUnchanged by 0.00 %
- Est rental Yield
- 3.80 %Increased by 3.83 %
- Crime Rate
- 97.00 %Unchanged by 0.00 %
from 400,154.00 £
from 428,115.44 £
from 1,220.00 £/mo
from 1,305.23 £/mo
from 3.66 %
from 97.00 %
Agent Activity
Fine & Country created the listing.
Nearby Schools
| Name | Type | Ofsted | Distance |
|---|---|---|---|
| Holt Community Primary School | Community School | Good | 0.44 KM |
| Corpusty And Holt Area Children'S Centre | Children's Centre | 1.44 KM | |
| Gresham'S School | Other Independent School | 1.96 KM | |
| Kelling Ce Primary School | Voluntary Aided School | Good | 5.01 KM |
| Astley Primary School | Academy Converter | 7.09 KM |
Images
Nearby Streets
| Name | Average Price | Average Sqft | Distance |
|---|---|---|---|
| Nightjar Road | £ 0 | 0 | 0.00 KM |
| Cherry Tree Close | £ 0 | 0 | 0.00 KM |
| Carpenters Cottages | £ 0 | 0 | 0.00 KM |
| Winn's Close | £ 0 | 0 | 0.00 KM |
| Church Street | £ 0 | 0 | 0.00 KM |
Nearby Listings
| Address | Price | Type | Score | Distance |
|---|---|---|---|---|
| New Street, Holt, Norfolk, NR25 | £ 850,000 | BUY | Unknown | 0.00 KM |
| New Street, Holt | £ 235,000 | BUY | 5 / 10 | 0.00 KM |
| New Street, Holt, Norfolk, NR25 | £ 299,950 | BUY | 6 / 10 | 0.00 KM |
| Holt | £ 375,000 | BUY | 7 / 10 | 0.00 KM |
| Charming Period Home in Holt | £ 375,000 | BUY | 6 / 10 | 0.06 KM |
Nearby Properties
| Address | Price | Distance |
|---|---|---|
| 39 Albert Street | £ 167,500 | 0.03 KM |
| 21 Albert Street | £ 210,000 | 0.03 KM |
| 27 Albert Street | £ 210,000 | 0.03 KM |
| 37 Albert Street | £ 240,000 | 0.03 KM |
| 38 Albert Street | £ 280,000 | 0.03 KM |