DO
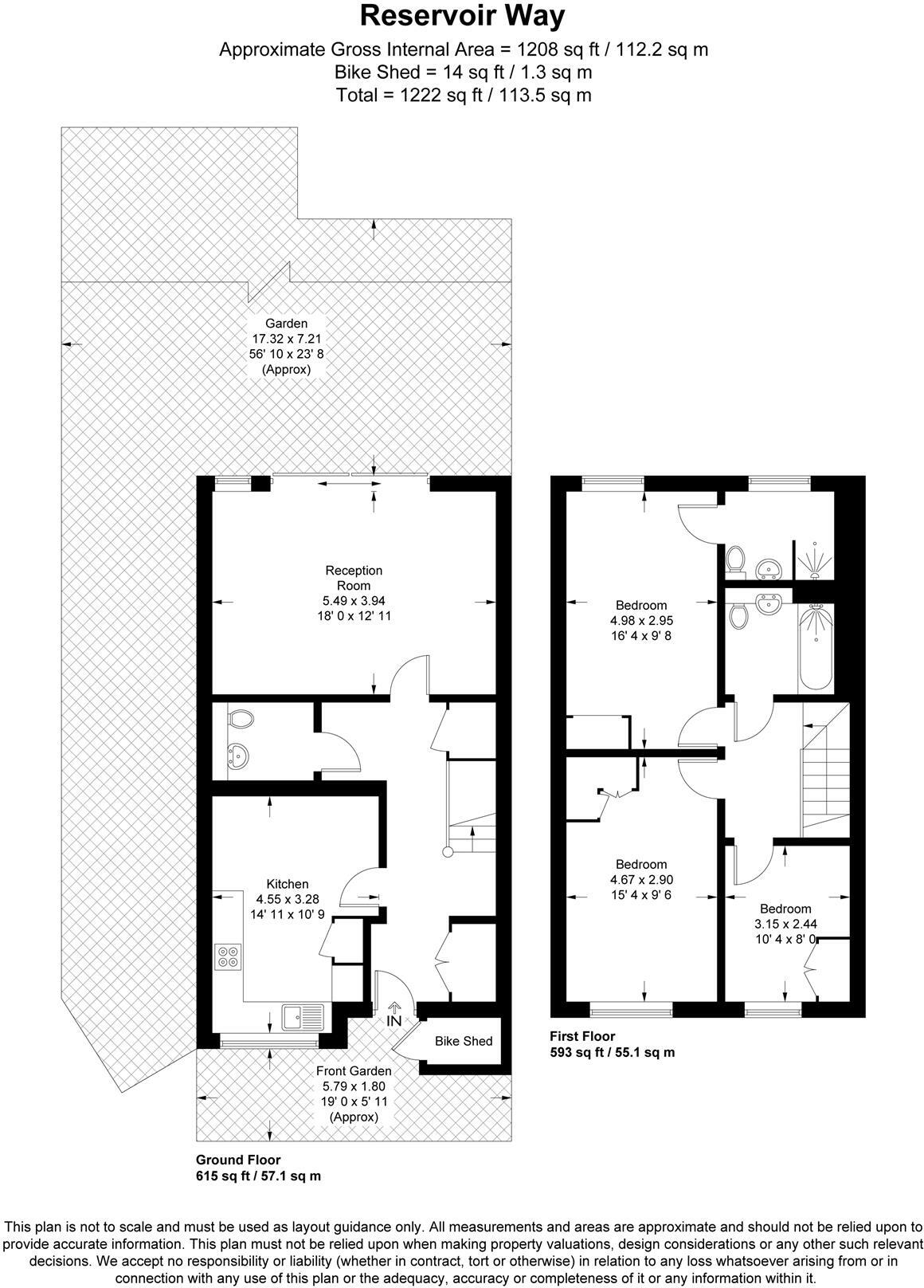
Reservoir Way, NW10
By Douglas & Gordon
£ 999,950
Douglas & Gordon says ..
Extremely rare to the open market we are delighted to offer this stunning three bedroom townhouse within this hugely sought after gated community. Maintained to the highest standards by the current owners and offered with large private gardens this stunning property must be viewed to apppreciate..
- Bedrooms
- 3
- Bathrooms
- 2
The heatmap indicates the level of crime in the area. The color of the heatmap indicates the crime severity and recency.
Metrics Year-on-Year
- Average area value
- 628,995.00 £Increased by 10.43 %
- Average area rental value
- 1,632.00 £/moDecreased by 14.96 %
- Est rental Yield
- 3.11 %Decreased by 23.02 %
- Crime Rate
- 3.00 %Unchanged by 0.00 %
from 569,600.00 £
from 1,919.00 £/mo
from 4.04 %
from 3.00 %
Agent Activity
Douglas & Gordon created the listing.
Nearby Schools
| Name | Type | Ofsted | Distance |
|---|---|---|---|
| Donnington Primary School | Community School | Good | 0.27 KM |
| Capital City Academy | Academy Sponsor Led | Good | 0.54 KM |
| Treetops Children'S Centre | Children's Centre | 0.56 KM | |
| St Andrew And St Francis Cofe Primary School | Academy Sponsor Led | Good | 0.59 KM |
| St Mary Magdalen'S Catholic Junior School | Voluntary Aided School | Good | 0.80 KM |
Images
Nearby Streets
| Name | Average Price | Average Sqft | Distance |
|---|---|---|---|
| Clare Road | £ 0 | 0 | 0.00 KM |
| St Andrews Road | £ 315,000 | 0 | 0.00 KM |
| Unity Close | £ 0 | 0 | 0.00 KM |
| Staverton Road | £ 0 | 0 | 0.00 KM |
| The Drive | £ 0 | 0 | 0.00 KM |
Nearby Transport
| Name | NLC | TLC | Distance |
|---|---|---|---|
| Willesden Junction | 1457 | WIJ | 1.68 KM |
| Kensal Green | 1447 | KNL | 1.83 KM |
| Kensal Rise | 1448 | KNR | 1.93 KM |
| Harlesden | 1521 | HDN | 2.69 KM |
| Brondesbury Park | 1438 | BSP | 2.73 KM |
Nearby Listings
| Address | Price | Type | Score | Distance |
|---|---|---|---|---|
| Reservoir Way, NW10 | £ 999,950 | BUY | Unknown | 0.00 KM |
| Harlesden Road, London, NW10 | £ 1,000,000 | BUY | 6 / 10 | 0.06 KM |
| Harlesden Road, London NW10 | £ 400,000 | BUY | Unknown | 0.07 KM |
| Harlesden Road, Kensal Rise | £ 1,150,000 | BUY | Unknown | 0.09 KM |
| Harlesden Road, London, NW10 | £ 775,000 | BUY | 7 / 10 | 0.10 KM |
Nearby Properties
| Address | Price | Distance |
|---|---|---|
| 161 Harlesden Road | £ 1,050,000 | 0.06 KM |
| 185a Harlesden Road | £ 382,500 | 0.07 KM |
| 215a Harlesden Road | £ 625,000 | 0.07 KM |
| 159 Harlesden Road | £ 877,000 | 0.07 KM |
| 169 Harlesden Road | £ 226,000 | 0.07 KM |