Pen Y Bryn Road, Llanfairfechan
By Fletcher & Poole
£ 200,000
Reviews
2 out of 5 stars
Fletcher & Poole says ..
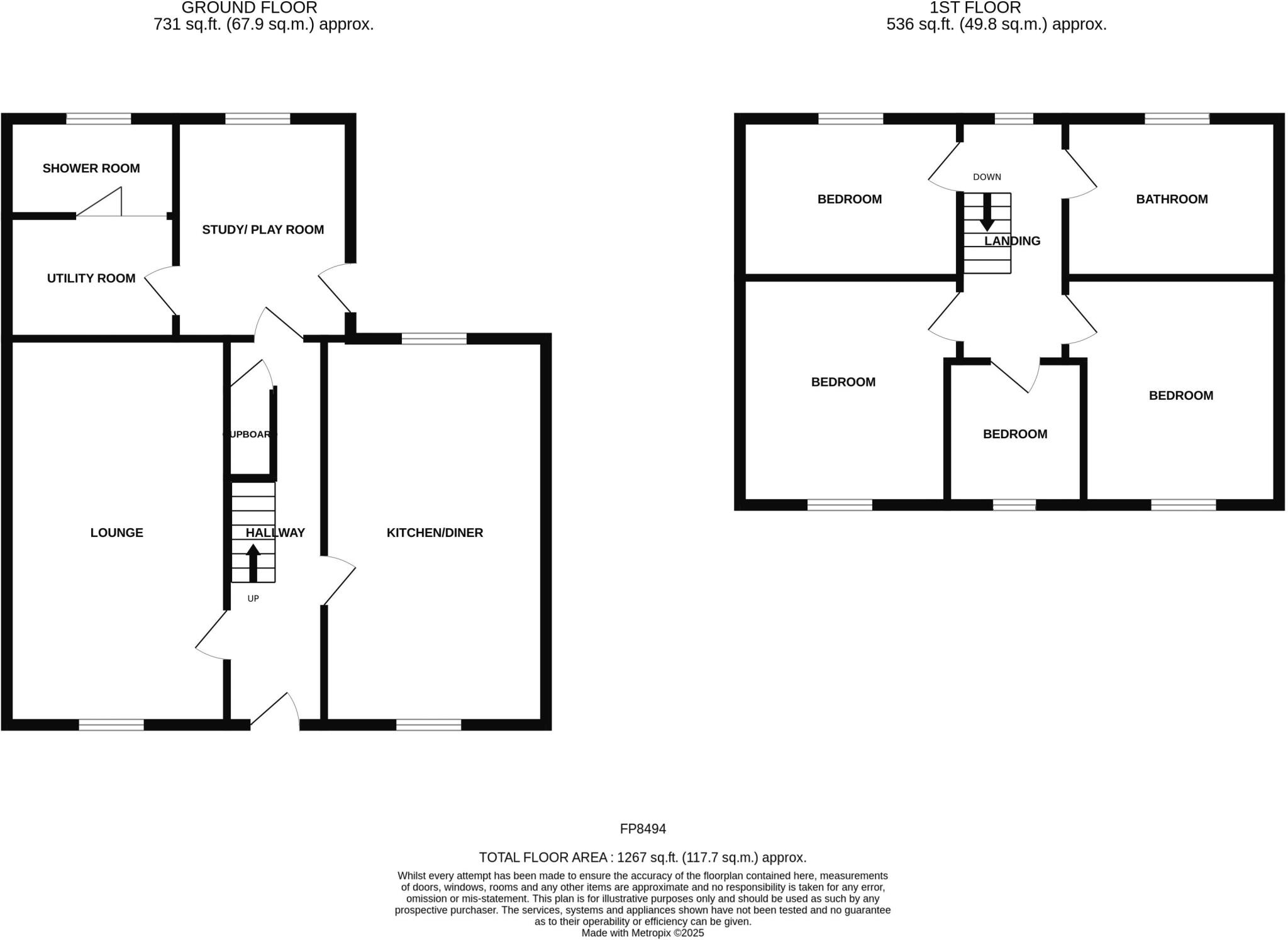
A spacious four bedroom double fronted mid terrace cottage situated close to the centre of the village and enjoying views of the sea and the island of Anglesey. The accommodation comprises: Entrance hall with storage cupboard, good size lounge, open plan kitchen/Diner with space for a gas oven ...
Property Oracle says ..
This terraced property on Pen Y Bryn Road in Llanfairfechan presents a renovation opportunity. While the interior is dated and the garden requires attention, the property offers a good amount of space at 1,267 sqft with four bedrooms and two bathrooms. Its location provides access to local amenities, schools, and transportation links. The asking price of £200,000 appears competitive, considering the average property price in the area. With some investment, this property could be transformed into a comfortable family home or a valuable rental property.
Therefore, we give this property 5 / 10. *Disclaimer: This is our option and does constitute a recommendation or financial advice. Do your own research. *
- Price
- 7
- Condition
- 4
- Location
- 6
- Land
- 6
- Bedrooms
- 4
- Bathrooms
- 2
- Sqft (est)
- 1,267.00
The heatmap indicates the level of crime in the area. The color of the heatmap indicates the crime severity and recency.
Metrics Year-on-Year
- Average area value
- 302,136.00 £Increased by 35.96 %
- Est sale value
- 396,571.00 £Increased by 58.08 %
- Average area rental value
- 1,250.00 £/moIncreased by 58.23 %
- Est letting value
- 1,267.00 £/mo
- Est rental Yield
- 4.96 %Increased by 16.16 %
- Crime Rate
- 57.00 %Unchanged by 0.00 %
Agent Activity
Fletcher & Poole created the listing.
Nearby Schools
| Name | Type | Ofsted | Distance |
|---|---|---|---|
| Ysgol Pant-Y-Rhedyn | Welsh Establishment | 0.20 KM | |
| Ysgol Babanod Llanfairfechan | Welsh Establishment | 0.76 KM | |
| Ysgol Pencae | Welsh Establishment | 7.05 KM | |
| Ysgol Capelulo | Welsh Establishment | 8.35 KM |
Images
Nearby Streets
| Name | Average Price | Average Sqft | Distance |
|---|---|---|---|
| Pen-y-Bryn | £ 0 | 0 | 0.00 KM |
| Gwydyr Terrace | £ 250,000 | 0 | 0.00 KM |
| St Winifred's Close | £ 0 | 0 | 0.00 KM |
| The Mayfair | £ 0 | 0 | 0.00 KM |
| Shore Road East | £ 0 | 0 | 0.00 KM |
Nearby Transport
| Name | NLC | TLC | Distance |
|---|---|---|---|
| Llanfairfechan | 2488 | LLF | 1.10 KM |
| Penmaenmawr | 2494 | PMW | 6.14 KM |
Nearby Listings
| Address | Price | Type | Score | Distance |
|---|---|---|---|---|
| Pen Y Bryn Road, Llanfairfechan | £ 200,000 | BUY | 5 / 10 | 0.00 KM |
| Pen Y Bryn Road, Llanfairfechan, Conwy, LL33 | £ 250,000 | BUY | 7 / 10 | 0.05 KM |
| Brynmor Terrace, Pen Y Bryn Road, Llanfairfechan, Conwy, LL33 | £ 115,000 | BUY | Unknown | 0.06 KM |
| Pen Y Bryn Road, Llanfairfechan, LL33 | £ 117,500 | BUY | 5 / 10 | 0.07 KM |
| Pen Y Bryn Road, Llanfairfechan, Conwy, LL33 | £ 180,000 | BUY | 5 / 10 | 0.15 KM |
Nearby Properties
| Address | Price | Distance |
|---|---|---|
| Bryn Meirion | £ 95,000 | 0.01 KM |
| 7 Penybryn | £ 110,000 | 0.05 KM |
| 15 Penybryn | £ 54,000 | 0.05 KM |
| 19 Penybryn | £ 140,000 | 0.05 KM |
| Penrallt | £ 120,000 | 0.07 KM |