Martin & Co says ..
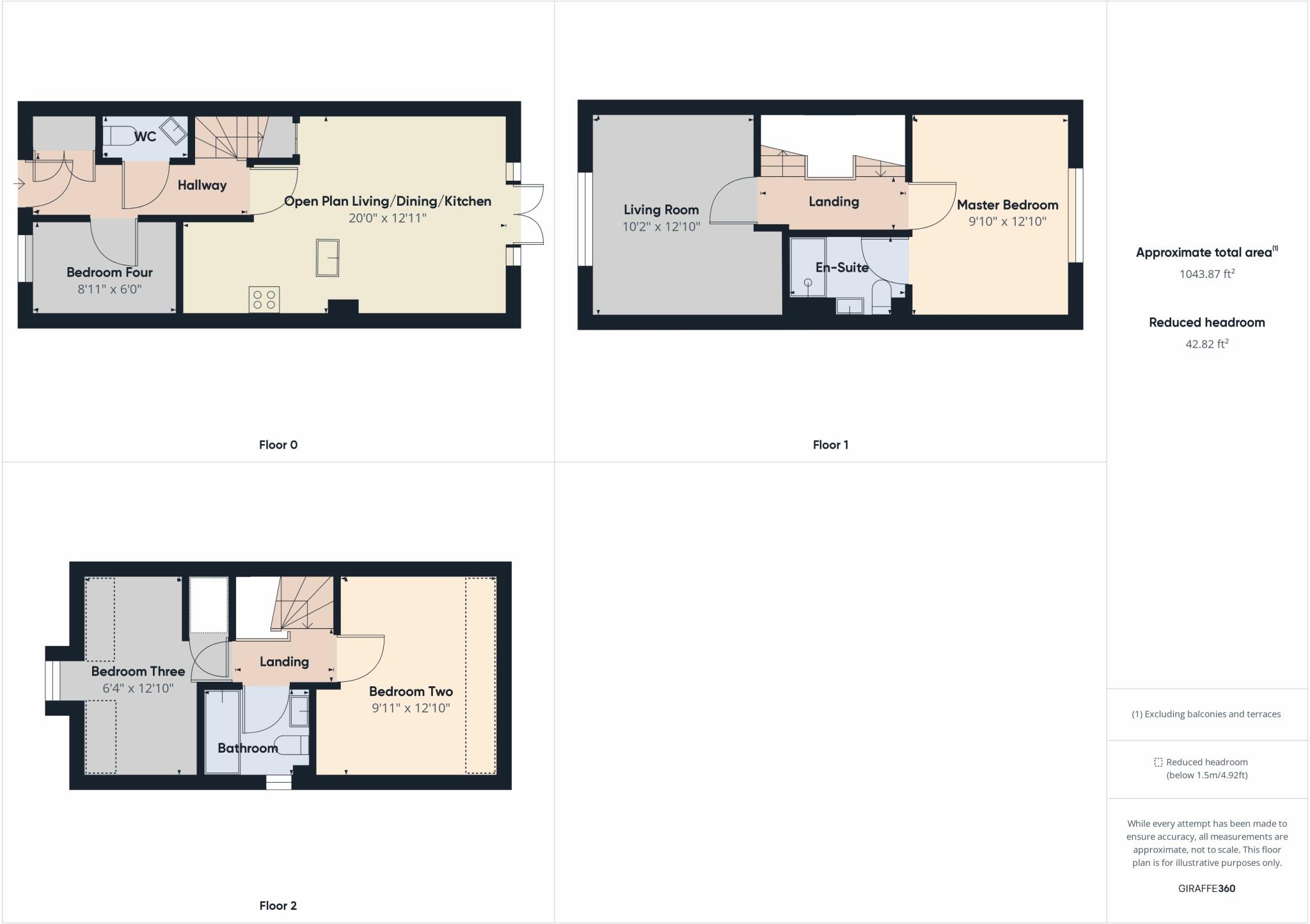
Being offered to the market with no onward chain this deceptively spacious four bedroom semi-detached property requires early viewing. Constructed in 2021 the property briefly comprises of an entrance hall, cloakroom, fourth bedroom and an open plan living/dining/kitchen with French Doors to the ...
Property Oracle says ..
This four-bedroom, two-bathroom semi-detached property located on Regeneration Way in Beeston, Nottinghamshire, presents itself as a modern, well-maintained family home. The images reveal a clean, contemporary interior with a fresh and neutral decor. The open-plan kitchen/dining/living area is a desirable feature, offering a spacious feel and seamless flow between the rooms. The bedrooms are reasonably sized, and the property boasts two bathrooms, adding convenience. The presence of a private rear garden adds a touch of outdoor space.
Beeston’s established infrastructure and proximity to Nottingham city centre are significant advantages, and nearby schools are rated ‘Good’ by Ofsted. Transport links, particularly the nearby Beeston Railway Station, offer excellent connectivity to other parts of Nottingham and the wider region. However, further information regarding on-site parking and the precise square footage of comparable properties would provide a more detailed and comprehensive assessment of the property’s value and overall desirability. The current information suggests a property that is competitively priced within the local market, presenting a solid opportunity for potential buyers seeking a modern family home in a convenient location.
Therefore, we give this property 6 / 10. *Disclaimer: This is our option and does constitute a recommendation or financial advice. Do your own research. *
- Price
- 7
- Condition
- 9
- Location
- 7
- Land
- 4
- Bedrooms
- 4
- Bathrooms
- 2
- Sqft (est)
- 1,043.87
The heatmap indicates the level of crime in the area. The color of the heatmap indicates the crime severity and recency.
Metrics Year-on-Year
- Average area value
- 355,556.00 £Decreased by 2.17 %
- Est sale value
- 611,707.82 £Increased by 193.00 %
- Average area rental value
- 1,117.00 £/moIncreased by 28.54 %
- Est letting value
- 1,043.87 £/mo
- Est rental Yield
- 3.77 %Increased by 31.36 %
- Crime Rate
- 3.00 %Unchanged by 0.00 %
Agent Activity
Martin & Co created the listing.
Nearby Schools
| Name | Type | Ofsted | Distance |
|---|---|---|---|
| Beeston Rylands Junior School | Community School | Good | 0.34 KM |
| Trent Vale Infant School | Community School | Good | 0.58 KM |
| John Clifford Primary School | Academy Converter | 0.88 KM | |
| Round Hill Primary School | Community School | Good | 1.54 KM |
| Beeston Fields Primary School And Nursery | Academy Sponsor Led | Good | 2.05 KM |
Images
Nearby Streets
| Name | Average Price | Average Sqft | Distance |
|---|---|---|---|
| Malting Crescent | £ 140,250 | 0 | 0.00 KM |
| Wheatstone Gardens | £ 364,995 | 0 | 0.00 KM |
| Plessey Road | £ 0 | 0 | 0.00 KM |
| Rye Close | £ 0 | 0 | 0.00 KM |
| Grove Street | £ 0 | 0 | 0.00 KM |
Nearby Transport
| Name | NLC | TLC | Distance |
|---|---|---|---|
| Beeston | 1625 | BEE | 0.28 KM |
| Attenborough | 1624 | ATB | 2.88 KM |
| Nottingham | 1826 | NOT | 7.57 KM |
| East Midlands Parkway | 1901 | EMD | 8.68 KM |
| Bulwell | 1865 | BLW | 9.15 KM |
Nearby Listings
| Address | Price | Type | Score | Distance |
|---|---|---|---|---|
| Regeneration Way, Beeston | £ 390,000 | BUY | 6 / 10 | 0.00 KM |
| REGENERATION WAY, BEESTON, NOTTINGHAM, Nottinghamshire, NG9 | £ 400,000 | BUY | 8 / 10 | 0.01 KM |
| Regeneration Way, Beeston, Nottingham, Nottinghamshire, NG9 | £ 375,000 | BUY | Unknown | 0.01 KM |
| Regeneration Way, Beeston, Nottingham, Nottinghamshire, NG9 | £ 225,000 | BUY | 5 / 10 | 0.06 KM |
| Regeneration Way, Beeston, Nottingham, Nottinghamshire, NG9 | £ 215,000 | BUY | 6 / 10 | 0.06 KM |
Nearby Properties
| Address | Price | Distance |
|---|---|---|
| 84 Trafalgar Road | £ 127,000 | 0.12 KM |
| 19 Nelson Road | £ 140,000 | 0.13 KM |
| 25 Nelson Road | £ 75,000 | 0.13 KM |
| 73 Trafalgar Road | £ 36,300 | 0.13 KM |
| 23 Nelson Road | £ 67,000 | 0.13 KM |