17 Harmer Street, Hockley, Birmingham, B18 7RT
By Bond Wolfe
£ 39,000
Reviews
2 out of 5 stars
Bond Wolfe says ..
For Sale By Public Auction 10 December 2025 A vacant freehold mid terraced property
Property Oracle says ..
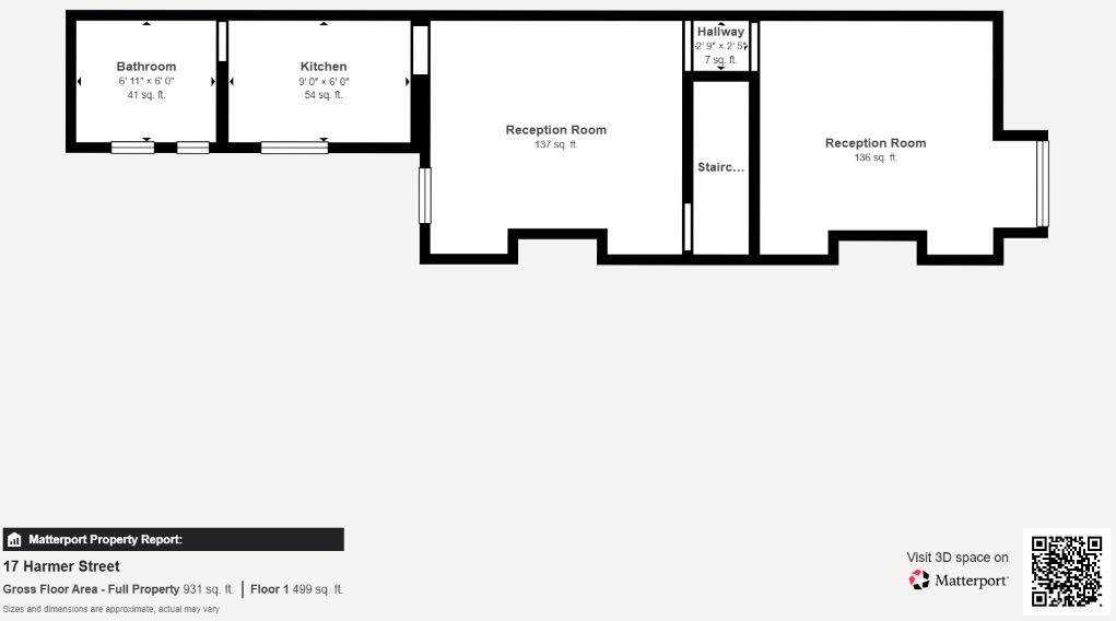
This 3-bedroom terraced house in Hockley presents a significant renovation opportunity. While the property requires extensive work to bring it up to modern standards, its location near the Jewellery Quarter and its low list price make it an attractive investment. The garden, though currently overgrown, adds to the property’s potential. The property is located close to local schools and transportation links.
Therefore, we give this property 5 / 10. *Disclaimer: This is our option and does constitute a recommendation or financial advice. Do your own research. *
- Price
- 9
- Condition
- 3
- Location
- 6
- Land
- 5
- Bedrooms
- 3
- Bathrooms
- 0
- Sqft (est)
- 375.00
The heatmap indicates the level of crime in the area. The color of the heatmap indicates the crime severity and recency.
Metrics Year-on-Year
- Average area value
- 223,188.00 £Decreased by 13.36 %
- Est sale value
- 117,750.00 £Decreased by 2.48 %
- Average area rental value
- 1,283.00 £/moIncreased by 2.15 %
- Est letting value
- 375.00 £/moUnchanged by 0.00 %
- Est rental Yield
- 6.90 %Increased by 17.95 %
- Crime Rate
- 4.00 %Unchanged by 0.00 %
Agent Activity
Bond Wolfe created the listing.
Nearby Schools
| Name | Type | Ofsted | Distance |
|---|---|---|---|
| Future First Independent School | Other Independent School | Good | 0.28 KM |
| St Edmund'S Catholic Primary School | Voluntary Aided School | Requires improvement | 0.60 KM |
| Brookfields Primary School | Academy Sponsor Led | 0.70 KM | |
| Orion School | Other Independent School | 0.77 KM | |
| The Lambs Christian School | Other Independent School | Outstanding | 0.86 KM |
Images
Nearby Streets
| Name | Average Price | Average Sqft | Distance |
|---|---|---|---|
| Paxton Road | £ 140,000 | 0 | 0.00 KM |
| Mears Close | £ 0 | 0 | 0.00 KM |
| Abbey Street | £ 0 | 0 | 0.00 KM |
| Old Smithy Place | £ 0 | 0 | 0.00 KM |
| Woodcote Way | £ 0 | 0 | 0.00 KM |
Nearby Transport
| Name | NLC | TLC | Distance |
|---|---|---|---|
| Jewellery Quarter | 1097 | JEQ | 1.24 KM |
| Five Ways | 4503 | FWY | 2.66 KM |
| Birmingham Snow Hill | 1006 | BSW | 2.93 KM |
| Birmingham New Street | 1127 | BHM | 3.09 KM |
| Perry Barr | 1128 | PRY | 3.63 KM |
Nearby Listings
| Address | Price | Type | Score | Distance |
|---|---|---|---|---|
| 17 Harmer Street, Hockley, Birmingham, B18 7RT | £ 39,000 | BUY | 5 / 10 | 0.00 KM |
| Hockley, Birmingham, B18 | £ 185,000 | BUY | 6 / 10 | 0.04 KM |
| Paxton Road, Birmingham | £ 140,000 | BUY | 5 / 10 | 0.09 KM |
| Shakespear Crescent, Hockley, Birmingham | £ 395,000 | BUY | 7 / 10 | 0.17 KM |
| 12 Crabtree Road, Birmingham, West Midlands, B18 | £ 70,000 | BUY | 5 / 10 | 0.21 KM |
Nearby Properties
| Address | Price | Distance |
|---|---|---|
| 20 Harmer Street | £ 135,000 | 0.03 KM |
| 19 Harmer Street | £ 81,000 | 0.03 KM |
| 10 Harmer Street | £ 114,000 | 0.03 KM |
| 6 Harmer Street | £ 85,000 | 0.03 KM |
| 7 Harmer Street | £ 82,000 | 0.03 KM |