James.Dean says ..
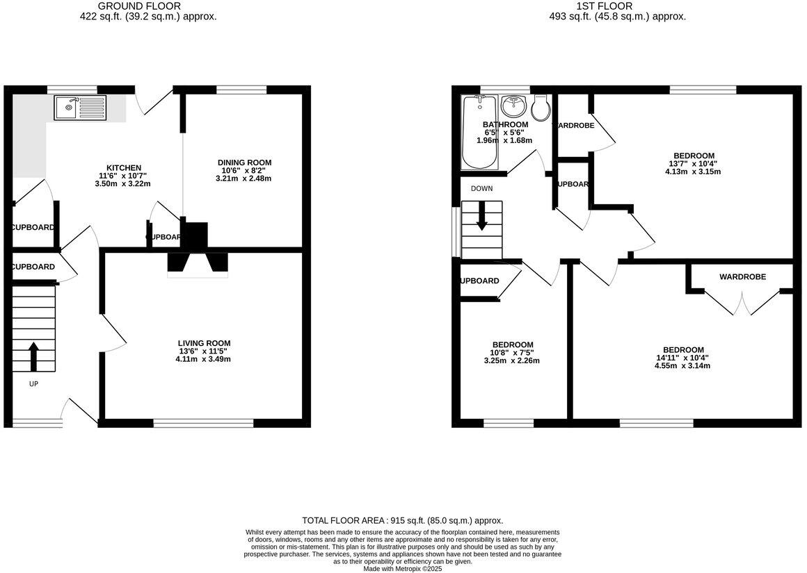
In a popular residential area is this three bed, end of terrace house with front & rear gardens. In need of modernisation, it is ready for you to put your own stamp on.
Property Oracle says ..
This end-of-terrace property on Adelaide Gardens, Brecon, offers three bedrooms and one bathroom. While the house requires renovation, it features a generously sized garden with a greenhouse and shed. Located in a suburban area of Powys, it’s conveniently close to local schools. The asking price of £200,000 is below the area’s average but reflects the property’s condition.
Therefore, we give this property 6 / 10. *Disclaimer: This is our option and does constitute a recommendation or financial advice. Do your own research. *
- Price
- 7
- Condition
- 4
- Location
- 6
- Land
- 7
- Bedrooms
- 3
- Bathrooms
- 1
The heatmap indicates the level of crime in the area. The color of the heatmap indicates the crime severity and recency.
Metrics Year-on-Year
- Average area value
- 311,704.00 £Increased by 34.17 %
- Average area rental value
- 1,067.00 £/moDecreased by 19.35 %
- Est rental Yield
- 4.11 %Decreased by 39.82 %
- Crime Rate
- 16.00 %Unchanged by 0.00 %
Agent Activity
James.Dean created the listing.
Nearby Schools
| Name | Type | Ofsted | Distance |
|---|---|---|---|
| Llanfaes C.P. School | Welsh Establishment | 0.53 KM | |
| Christ College | Welsh Establishment | 1.02 KM | |
| Mount Street C.P. Junior | Welsh Establishment | 1.50 KM | |
| Priory C.I.W. School | Welsh Establishment | 1.50 KM | |
| Ysgol Penmaes | Welsh Establishment | 1.66 KM |
Images
Nearby Streets
| Name | Average Price | Average Sqft | Distance |
|---|---|---|---|
| Ger-y-Tarell | £ 260,000 | 0 | 0.00 KM |
| Gwttws Path | £ 0 | 0 | 0.00 KM |
| Ffynon Dewi | £ 285,000 | 0 | 0.00 KM |
| Beilhelig Road | £ 0 | 0 | 0.00 KM |
| Church Street | £ 180,000 | 0 | 0.00 KM |
Nearby Listings
| Address | Price | Type | Score | Distance |
|---|---|---|---|---|
| Adelaide Gardens, Brecon, LD3 | £ 200,000 | BUY | 6 / 10 | 0.00 KM |
| Adelaide Gardens, Brecon, LD3 | £ 280,000 | BUY | 7 / 10 | 0.00 KM |
| Adelaide Gardens, Brecon, Powys | £ 260,000 | BUY | 6 / 10 | 0.08 KM |
| Parc Tarell, Brecon, LD3 | £ 157,500 | BUY | 6 / 10 | 0.10 KM |
| Newton Green Llanfaes, Brecon, Brecon , LD3 | £ 7,000 | BUY | Unknown | 0.13 KM |
Nearby Properties
| Address | Price | Distance |
|---|---|---|
| 27 Adelaide Gardens | £ 150,000 | 0.00 KM |
| 50 Adelaide Gardens | £ 130,000 | 0.02 KM |
| 23 Adelaide Gardens | £ 175,000 | 0.02 KM |
| 18 Adelaide Gardens | £ 205,000 | 0.02 KM |
| 20 Adelaide Gardens | £ 138,000 | 0.02 KM |