Churchill Estates says ..
Chain Free | Two Double bedrooms | First Floor | Own section of garden | easy access to multiple Train Stations | Short Walk to Lloyd Park & The William Morris Gallery |
Property Oracle says ..
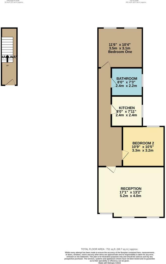
This two-bedroom maisonette on Forest Road, Walthamstow, offers a convenient location with good access to public transportation and local amenities. Walthamstow Central station, served by the London Overground, is within easy reach. The proximity to Lloyd Park and the William Morris Gallery enhances its appeal. There are also several primary schools nearby, making it potentially attractive to families.
The property itself appears habitable but requires some modernization. The kitchen and bathroom show signs of wear and tear, and the décor throughout is dated. The available images do suggest a manageable amount of external space in the form of a small rear garden, which will be a valuable feature to prospective purchasers.
While the listed price of £400,000 appears to be in line with other properties in the area, the lack of detailed information regarding the actual square footage of other comparable properties and the condition of the property itself makes it difficult to definitively rate it as outstanding value. However, the combination of location, garden, and property size likely positions it competitively within the market.
Therefore, we give this property 6 / 10. *Disclaimer: This is our option and does constitute a recommendation or financial advice. Do your own research. *
- Price
- 7
- Condition
- 6
- Location
- 7
- Land
- 4
- Bedrooms
- 2
- Bathrooms
- 1
- Sqft (est)
- 750.24
The heatmap indicates the level of crime in the area. The color of the heatmap indicates the crime severity and recency.
Metrics Year-on-Year
- Average area value
- 670,000.00 £Increased by 15.57 %
- Est sale value
- 642,955.68 £Increased by 22.96 %
- Average area rental value
- 2,617.00 £/moIncreased by 10.61 %
- Est letting value
- 2,250.72 £/moIncreased by 50.00 %
- Est rental Yield
- 4.69 %Decreased by 4.29 %
- Crime Rate
- 5.00 %Unchanged by 0.00 %
Agent Activity
Churchill Estates marked this listing as sold.
Churchill Estates created the listing.
Nearby Schools
| Name | Type | Ofsted | Distance |
|---|---|---|---|
| Greenleaf Primary School | Community School | Outstanding | 0.12 KM |
| The Winns Primary School | Community School | Good | 0.32 KM |
| The Lloyd Park Children Centre | Children's Centre | 0.60 KM | |
| Walthamstow Montessori School | Other Independent School | Inadequate | 0.82 KM |
| Walthamstow Academy | Academy Sponsor Led | Good | 1.03 KM |
Images
Nearby Streets
| Name | Average Price | Average Sqft | Distance |
|---|---|---|---|
| Boleyn Court | £ 400,000 | 0 | 0.00 KM |
| Campbell Road | £ 427,500 | 0 | 0.00 KM |
| Hawthorne Road | £ 0 | 0 | 0.00 KM |
| Erskine Road | £ 691,667 | 0 | 0.00 KM |
| Priory Court | £ 302,500 | 0 | 0.00 KM |
Nearby Transport
| Name | NLC | TLC | Distance |
|---|---|---|---|
| Walthamstow Central | 6953 | WHC | 0.94 KM |
| Walthamstow Queen'S Road | 7407 | WMW | 0.98 KM |
| St James Street | 6973 | SJS | 1.44 KM |
| Blackhorse Road | 7400 | BHO | 1.96 KM |
| Wood Street | 6954 | WST | 2.42 KM |
Nearby Listings
| Address | Price | Type | Score | Distance |
|---|---|---|---|---|
| Forest Road, Walthamstow | £ 425,000 | BUY | 6 / 10 | 0.00 KM |
| Forest Road, Walthamstow | £ 425,000 | BUY | Unknown | 0.00 KM |
| Hepworth Place, Walthamstow | £ 520,000 | BUY | 7 / 10 | 0.03 KM |
| Forest Road, Walthamstow, London, E17 | £ 450,000 | BUY | 6 / 10 | 0.04 KM |
| Forest Road, Walthamstow | £ 500,000 | BUY | 6 / 10 | 0.04 KM |
Nearby Properties
| Address | Price | Distance |
|---|---|---|
| 437 Forest Road | £ 270,000 | 0.01 KM |
| 483b Forest Road | £ 285,000 | 0.01 KM |
| 451 Forest Road | £ 45,000 | 0.01 KM |
| 489 Forest Road | £ 142,000 | 0.01 KM |
| 471 Forest Road | £ 141,000 | 0.01 KM |