Vine Court Road, Sevenoaks, Kent
By Langford Russell
£ 1,300,000
Reviews
3 out of 5 stars
Langford Russell says ..
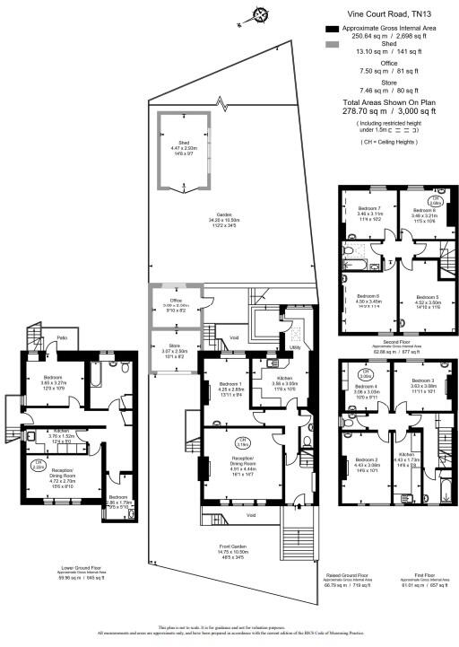
A substantial six-bedroom semi-detached Victorian villa, located on one of Sevenoaks’ most desirable roads, just 0.2 miles from the town centre and 0.6 miles from the mainline station. This is a rare opportunity for a discerning buyer looking for a home with potential to remodel...
Property Oracle says ..
This property is a semi-detached house located in Sevenoaks, Kent. Sevenoaks is a desirable town in the South East of England, known for its good schools and transport links. The property itself is a period property, which appears to be in good condition from the images provided. It has a garden which is a significant feature in this area. The list price is high when compared to the average price per sqft in the area, however, the property is larger than average and is located in a desirable area. The property is close to several highly rated primary schools such as Lady Boswell’s Church of England Voluntary Aided Primary School and St John’s Church of England Primary School. Sevenoaks train station is also within walking distance, providing convenient access to London and other parts of the UK.
Therefore, we give this property 7 / 10. *Disclaimer: This is our option and does constitute a recommendation or financial advice. Do your own research. *
- Price
- 6
- Condition
- 8
- Location
- 9
- Land
- 7
- Bedrooms
- 6
- Bathrooms
- 3
- Sqft (est)
- 1,464.10
- Lot (est)
- 2,698.00
The heatmap indicates the level of crime in the area. The color of the heatmap indicates the crime severity and recency.
Metrics Year-on-Year
- Average area value
- 1,145,000.00 £Increased by 51.85 %
- Est sale value
- 1,168,351.80 £Increased by 52.58 %
- Average area rental value
- 1,717.00 £/moDecreased by 6.07 %
- Est letting value
- 1,464.10 £/moUnchanged by 0.00 %
- Est rental Yield
- 1.80 %Decreased by 38.14 %
- Crime Rate
- 2.00 %Unchanged by 0.00 %
Agent Activity
Langford Russell created the listing.
Nearby Schools
| Name | Type | Ofsted | Distance |
|---|---|---|---|
| Lady Boswell'S Church Of England Voluntary Aided Primary School, Sevenoaks | Voluntary Aided School | Outstanding | 0.38 KM |
| Walthamstow Hall | Other Independent School | 0.42 KM | |
| St John'S Church Of England Primary School, Sevenoaks | Voluntary Controlled School | Good | 0.79 KM |
| St Thomas' Catholic Primary School, Sevenoaks | Academy Converter | 1.01 KM | |
| Sevenoaks Primary School | Community School | Good | 1.08 KM |
Images
Nearby Streets
| Name | Average Price | Average Sqft | Distance |
|---|---|---|---|
| Plymouth Drive | £ 0 | 0 | 0.00 KM |
| Ashley Close | £ 0 | 0 | 0.00 KM |
| Blighs Road | £ 0 | 0 | 0.00 KM |
| Blair Drive | £ 1,495,000 | 0 | 0.00 KM |
| Brewery Lane | £ 0 | 0 | 0.00 KM |
Nearby Transport
| Name | NLC | TLC | Distance |
|---|---|---|---|
| Bat And Ball | 5090 | BBL | 1.36 KM |
| Sevenoaks | 5124 | SEV | 1.40 KM |
| Dunton Green | 5102 | DNG | 3.34 KM |
| Otford | 5071 | OTF | 3.98 KM |
| Shoreham (Kent) | 5074 | SEH | 6.12 KM |
Nearby Listings
| Address | Price | Type | Score | Distance |
|---|---|---|---|---|
| Vine Court Road, Sevenoaks, Kent | £ 350,000 | BUY | 7 / 10 | 0.00 KM |
| Vine Court Road, Sevenoaks, Kent | £ 1,300,000 | BUY | 7 / 10 | 0.00 KM |
| Dartford Road, Sevenoaks, Kent, TN13 | £ 615,000 | BUY | 8 / 10 | 0.13 KM |
| Hitchen Hatch Lane, Sevenoaks, TN13 | £ 1,350,000 | BUY | 7 / 10 | 0.15 KM |
| Dartford Road, Sevenoaks | £ 475,000 | BUY | 8 / 10 | 0.17 KM |
Nearby Properties
| Address | Price | Distance |
|---|---|---|
| Thistledhu | £ 316,000 | 0.01 KM |
| 4a Vine Court Road | £ 625,000 | 0.01 KM |
| 9 Vine Court Road | £ 445,000 | 0.01 KM |
| 6 Vine Court Road | £ 1,800,000 | 0.01 KM |
| 7 Vine Court Road | £ 630,000 | 0.01 KM |