Expose says ..
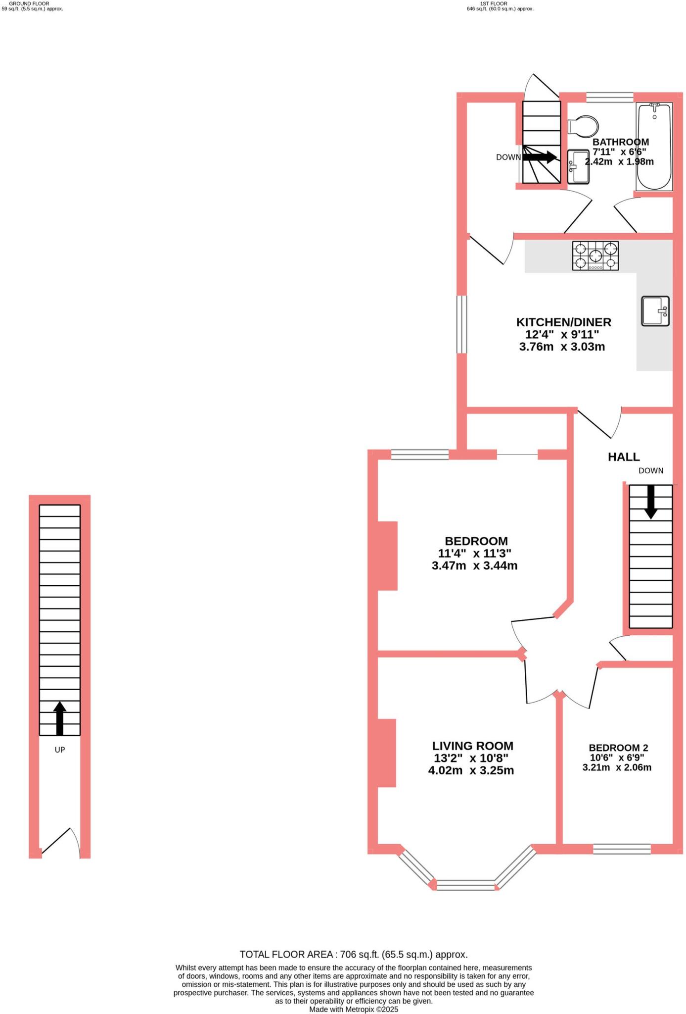
A characterful first-floor conversion with a private south-facing garden and a share of freehold on a very popular residential road in Beckenham.
Property Oracle says ..
Therefore, we give this property 7 / 10. *Disclaimer: This is our option and does constitute a recommendation or financial advice. Do your own research. *
- Price
- 7
- Condition
- 8
- Location
- 8
- Land
- 7
- Bedrooms
- 2
- Bathrooms
- 1
- Sqft (est)
- 515.04
The heatmap indicates the level of crime in the area. The color of the heatmap indicates the crime severity and recency.
Metrics Year-on-Year
- Average area value
- 666,950.00 £Increased by 20.68 %
- Est sale value
- 365,163.36 £Increased by 27.98 %
- Average area rental value
- 1,565.00 £/moDecreased by 5.89 %
- Est letting value
- 515.04 £/moUnchanged by 0.00 %
- Est rental Yield
- 2.82 %Decreased by 21.88 %
- Crime Rate
- 3.00 %Unchanged by 0.00 %
from 552,678.00 £
from 285,332.16 £
from 1,663.00 £/mo
from 515.04 £/mo
from 3.61 %
from 3.00 %
Agent Activity
Expose created the listing.
Nearby Schools
| Name | Type | Ofsted | Distance |
|---|---|---|---|
| Stewart Fleming Primary School | Academy Converter | Outstanding | 0.46 KM |
| St Anthony'S Roman Catholic Primary School | Academy Converter | Good | 0.68 KM |
| Churchfields Primary School | Academy Converter | 0.94 KM | |
| Harris Primary Academy Kent House | Academy Sponsor Led | Outstanding | 1.05 KM |
| St John'S Church Of England Primary School | Academy Sponsor Led | Good | 1.09 KM |
Images
Nearby Streets
| Name | Average Price | Average Sqft | Distance |
|---|---|---|---|
| Grace Mews | £ 0 | 0 | 0.00 KM |
| Garden Road | £ 750,000 | 0 | 0.00 KM |
| Trinity Mews | £ 0 | 0 | 0.00 KM |
| Hawthorn Grove | £ 0 | 0 | 0.00 KM |
| Love Lane | £ 403,571 | 0 | 0.00 KM |
Nearby Transport
| Name | NLC | TLC | Distance |
|---|---|---|---|
| Birkbeck | 5401 | BIK | 0.19 KM |
| Elmers End | 5049 | ELE | 0.98 KM |
| Kent House | 5080 | KTH | 1.32 KM |
| Anerley | 5397 | ANZ | 1.42 KM |
| Penge West | 5378 | PNW | 1.50 KM |
Nearby Listings
| Address | Price | Type | Score | Distance |
|---|---|---|---|---|
| Birkbeck Road, Beckenham, BR3 | £ 700,000 | BUY | 7 / 10 | 0.00 KM |
| Birkbeck Road, Beckenham, BR3 | £ 400,000 | BUY | 7 / 10 | 0.00 KM |
| Birkbeck Road, Beckenham, BR3 | £ 725,000 | BUY | 6 / 10 | 0.02 KM |
| Birkbeck Road, Beckenham, Kent, BR3 | £ 325,000 | BUY | Unknown | 0.05 KM |
| Birkbeck Road, Beckenham | £ 370,000 | BUY | 6 / 10 | 0.05 KM |
Nearby Properties
| Address | Price | Distance |
|---|---|---|
| 229 Birkbeck Road | £ 277,500 | 0.00 KM |
| 233 Birkbeck Road | £ 36,500 | 0.00 KM |
| 235 Birkbeck Road | £ 96,000 | 0.00 KM |
| 225 Birkbeck Road | £ 620,500 | 0.00 KM |
| 217 Birkbeck Road | £ 620,000 | 0.00 KM |