HE
Forest Road, Effingham Junction
By Henshaws Estate Agents
£ 1,479,950
Reviews
4 out of 5 stars
Henshaws Estate Agents says ..
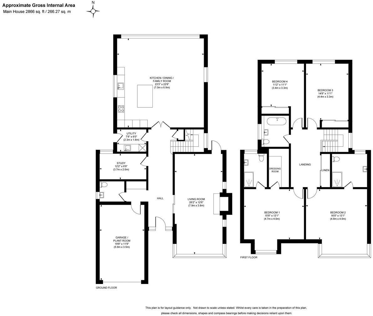
A superb opportunity to buy a brand new house due for completion in the spring of 2025 located within a short walk of Effingham Jct. station. The property is being built by Bryden Homes, a local development and construction company who have established an enviable reputation for building quality ...
Property Oracle says ..
Therefore, we give this property 8 / 10. *Disclaimer: This is our option and does constitute a recommendation or financial advice. Do your own research. *
- Price
- 7
- Condition
- 9
- Location
- 9
- Land
- 8
- Bedrooms
- 4
- Bathrooms
- 3
- Sqft (est)
- 1,875.61
The heatmap indicates the level of crime in the area. The color of the heatmap indicates the crime severity and recency.
Metrics Year-on-Year
- Average area value
- 1,206,061.00 £Decreased by 2.53 %
- Est sale value
- 1,725,561.20 £Increased by 91.67 %
- Average area rental value
- 2,978.00 £/moDecreased by 21.32 %
- Est letting value
- 3,751.22 £/moIncreased by 100.00 %
- Est rental Yield
- 2.96 %Decreased by 19.35 %
- Crime Rate
- 18.00 %Unchanged by 0.00 %
from 1,237,332.00 £
from 900,292.80 £
from 3,785.00 £/mo
from 1,875.61 £/mo
from 3.67 %
from 18.00 %
Agent Activity
Henshaws Estate Agents created the listing.
Nearby Schools
| Name | Type | Ofsted | Distance |
|---|---|---|---|
| Glenesk School | Other Independent School | 2.06 KM | |
| St Matthew'S Cofe Aided Infant School, Cobham | Voluntary Aided School | Outstanding | 2.56 KM |
| The Raleigh School | Academy Converter | Outstanding | 2.83 KM |
| St Lawrence Primary School | Academy Sponsor Led | Good | 3.13 KM |
| Howard Of Effingham School | Academy Converter | Good | 3.54 KM |
Images
Nearby Streets
| Name | Average Price | Average Sqft | Distance |
|---|---|---|---|
| Fairways | £ 0 | 0 | 0.00 KM |
| Heath View | £ 0 | 0 | 0.00 KM |
| BW 131 | £ 0 | 0 | 0.00 KM |
| The Drift | £ 0 | 0 | 0.00 KM |
| The Rise | £ 0 | 0 | 0.00 KM |
Nearby Transport
| Name | NLC | TLC | Distance |
|---|---|---|---|
| Effingham Junction | 5642 | EFF | 0.31 KM |
| Horsley | 5562 | HSY | 1.88 KM |
| Bookham | 5626 | BKA | 4.26 KM |
| Cobham And Stoke D'Abernon | 5557 | CSD | 4.79 KM |
| Gomshall | 5298 | GOM | 8.19 KM |
Nearby Listings
| Address | Price | Type | Score | Distance |
|---|---|---|---|---|
| Forest Road, Effingham Junction | £ 1,479,950 | BUY | 8 / 10 | 0.00 KM |
| Robinia Forest Road, Effingham Junction, Leatherhead | £ 1,399,000 | BUY | 7 / 10 | 0.06 KM |
| Fairways, Effingham Junction, KT24 | £ 1,100,000 | BUY | Unknown | 0.17 KM |
| Forest Lane, East Horsley | £ 749,950 | BUY | 7 / 10 | 0.19 KM |
| Forest Road, Effingham Junction/East Horsley | £ 675,000 | BUY | 7 / 10 | 0.19 KM |
Nearby Properties
| Address | Price | Distance |
|---|---|---|
| Bramley | £ 270,000 | 0.05 KM |
| Westwinds | £ 910,000 | 0.05 KM |
| Woodpeckers | £ 595,000 | 0.05 KM |
| 1 Forest Road | £ 499,950 | 0.05 KM |
| 3 Forest Road | £ 602,500 | 0.05 KM |