Felicity J Lord says ..
Highly desirable one-bedroom apartment in a fantastic location! This chain-free property at Roslin House (E1W) presents a perfect opportunity for first-time buyers looking to step onto the property ladder
Property Oracle says ..
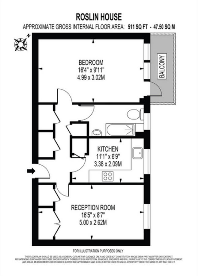
This one bedroom flat is located in Shadwell, Tower Hamlets. The property is conveniently located near several transportation options, including Limehouse (c2c - 0.93 KM), Shadwell (London Overground - 0.99 KM), and Wapping (London Overground - 1.13 KM) stations. There are also a number of schools within a short distance, including Bishop Challoner Girls’ School (Outstanding Ofsted rating - 0.45 KM) and Marion Richardson Primary School (Good Ofsted rating - 0.40 KM). The flat itself is relatively small (511 sqft) and appears to be in need of some modernisation, as seen in the provided images. The kitchen and bathroom are dated and could benefit from an update. While the property includes a small balcony, there is no garden. Compared to the average price per sqft in the area (£748), the list price of £275,000 seems reasonable, considering the condition and size of the flat. However, it is worth noting that average prices in the area are significantly higher (£497,121), suggesting that this property might be priced competitively for its condition and size.
Therefore, we give this property 4 / 10. *Disclaimer: This is our option and does constitute a recommendation or financial advice. Do your own research. *
- Price
- 6
- Condition
- 5
- Location
- 7
- Land
- 1
- Bedrooms
- 1
- Bathrooms
- 1
- Sqft (est)
- 511.00
The heatmap indicates the level of crime in the area. The color of the heatmap indicates the crime severity and recency.
Metrics Year-on-Year
- Average area value
- 625,000.00 £Increased by 26.14 %
- Est sale value
- 328,573.00 £Decreased by 2.72 %
- Average area rental value
- 2,521.00 £/moIncreased by 24.93 %
- Est letting value
- 1,022.00 £/moUnchanged by 0.00 %
- Est rental Yield
- 4.84 %Decreased by 1.02 %
- Crime Rate
- 6.00 %Unchanged by 0.00 %
Agent Activity
Felicity J Lord created the listing.
Nearby Schools
| Name | Type | Ofsted | Distance |
|---|---|---|---|
| Bishop Challoner Boys' School | Voluntary Aided School | Requires improvement | 0.33 KM |
| The Pier Head Preparatory Montessori School | Other Independent School | Good | 0.33 KM |
| Ocean Children'S Centre | Children's Centre | 0.35 KM | |
| Marion Richardson Primary School | Community School | Good | 0.40 KM |
| Bishop Challoner Girls' School | Voluntary Aided School | Outstanding | 0.45 KM |
Images
Nearby Streets
| Name | Average Price | Average Sqft | Distance |
|---|---|---|---|
| Pique Mews | £ 0 | 0 | 0.00 KM |
| Barnardo Street | £ 0 | 0 | 0.00 KM |
| Charrington Jetty | £ 1,000,000 | 0 | 0.00 KM |
| Martineau Street | £ 825,000 | 0 | 0.00 KM |
| Head Street | £ 0 | 0 | 0.00 KM |
Nearby Transport
| Name | NLC | TLC | Distance |
|---|---|---|---|
| Limehouse | 7491 | LHS | 0.93 KM |
| Shadwell | 1082 | SDE | 0.99 KM |
| Wapping | 1085 | WPE | 1.13 KM |
| Rotherhithe | 1039 | ROE | 1.20 KM |
| Canada Water | 1659 | ZCW | 1.45 KM |
Nearby Listings
| Address | Price | Type | Score | Distance |
|---|---|---|---|---|
| Brodlove Lane, LONDON | £ 275,000 | BUY | 4 / 10 | 0.00 KM |
| Cable Street, London | £ 375,000 | BUY | 5 / 10 | 0.05 KM |
| Barnardo Street, Shadwell, London, E1 | £ 375,000 | BUY | 4 / 10 | 0.07 KM |
| Barnardo Street, London, E1 0LW | £ 349,995 | BUY | 5 / 10 | 0.08 KM |
| Cable Street, London, E1W | £ 485,000 | BUY | 6 / 10 | 0.10 KM |
Nearby Properties
| Address | Price | Distance |
|---|---|---|
| 462 Cable Street | £ 363,218 | 0.12 KM |
| 436 Cable Street | £ 520,000 | 0.14 KM |
| 500 Cable Street | £ 431,000 | 0.14 KM |
| 478 Cable Street | £ 189,000 | 0.14 KM |
| 496 Cable Street | £ 380,000 | 0.14 KM |