Achurch Close, Stoney Stanton, Leicestershire
By Adam Purnell Estate Agents
£ 240,000
Reviews
3 out of 5 stars
Adam Purnell Estate Agents says ..
** NO CHAIN** Nestled in a peaceful cul-de-sac, this beautifully presented two-bedroom semi-detached bungalow offers the perfect blend of comfort and convenience.
Property Oracle says ..
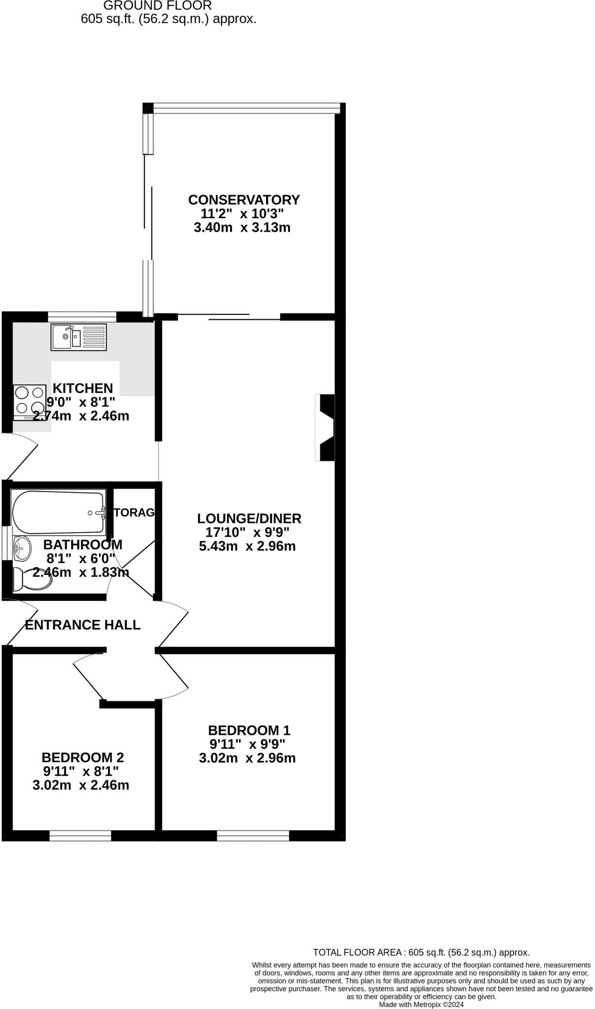
This 2-bedroom, 1-bathroom semi-detached property located in Achurch Close, Stoney Stanton, Leicestershire, is presented for sale at £240,000. The property benefits from a relatively modern kitchen and bathroom, as shown in the photographs, and includes a conservatory extending the living space. The property is situated in a quiet residential area within a short distance of Manorfield Church of England Primary School, making it potentially attractive to families. The garden, while present, appears to be of modest size, and there is a small driveway. While the property appears well-maintained, some minor cosmetic improvements might enhance its appeal. The absence of precise square footage data for comparable properties makes a definitive assessment of value challenging, but the price appears to be in line with the market in Stoney Stanton, considering similar properties listed in the area. The lack of detailed information on the property’s plot size and the absence of Ofsted ratings for nearby schools limits the depth of the analysis. Overall, the property presents as a comfortable home in a desirable village location, suitable for a small family or couple.
Therefore, we give this property 6 / 10. *Disclaimer: This is our option and does constitute a recommendation or financial advice. Do your own research. *
- Price
- 7
- Condition
- 7
- Location
- 7
- Land
- 4
- Bedrooms
- 2
- Bathrooms
- 1
- Sqft (est)
- 604.93
The heatmap indicates the level of crime in the area. The color of the heatmap indicates the crime severity and recency.
Metrics Year-on-Year
- Average area value
- 725,750.00 £Increased by 35.70 %
- Est sale value
- 339,970.66 £Increased by 58.76 %
- Average area rental value
- 1,649.00 £/moIncreased by 16.70 %
- Est letting value
- 604.93 £/mo
- Est rental Yield
- 2.73 %Decreased by 13.88 %
- Crime Rate
- 9.00 %Unchanged by 0.00 %
Agent Activity
Adam Purnell Estate Agents created the listing.
Nearby Schools
| Name | Type | Ofsted | Distance |
|---|---|---|---|
| Manorfield Church Of England Primary School | Academy Converter | 0.66 KM | |
| All Saints Church Of England Primary School, Sapcote | Academy Converter | 2.29 KM | |
| Sharnford Church Of England Primary School | Academy Converter | 3.41 KM | |
| Earl Shilton Sure Start Children'S Centre | Children's Centre | 3.60 KM | |
| Saint Peters Catholic Voluntary Academy | Academy Converter | 3.70 KM |
Images
Nearby Streets
| Name | Average Price | Average Sqft | Distance |
|---|---|---|---|
| James Street | £ 0 | 0 | 0.00 KM |
| Lee Close | £ 0 | 0 | 0.00 KM |
| Boulton Close | £ 352,500 | 0 | 0.00 KM |
| Village Hall Flag Garden | £ 0 | 0 | 0.00 KM |
| Stevens Close | £ 0 | 0 | 0.00 KM |
Nearby Transport
| Name | NLC | TLC | Distance |
|---|---|---|---|
| Narborough | 1881 | NBR | 8.96 KM |
Nearby Listings
| Address | Price | Type | Score | Distance |
|---|---|---|---|---|
| Achurch Close, Stoney Stanton, Leicestershire | £ 240,000 | BUY | 6 / 10 | 0.00 KM |
| Achurch Close, Stoney Stanton | £ 310,000 | BUY | 7 / 10 | 0.02 KM |
| Cadle Close, Stoney Stanton, Leicester | £ 280,000 | BUY | 7 / 10 | 0.06 KM |
| Cadle Close, Stoney stanton | £ 290,000 | BUY | 7 / 10 | 0.08 KM |
| Cadle Close, Stoney Stanton, Leicester, Leicestershire, LE9 | £ 290,000 | BUY | 7 / 10 | 0.08 KM |
Nearby Properties
| Address | Price | Distance |
|---|---|---|
| 14 Achurch Close | £ 47,000 | 0.04 KM |
| 5 Achurch Close | £ 181,500 | 0.04 KM |
| 8 Achurch Close | £ 235,000 | 0.04 KM |
| 7 Achurch Close | £ 66,950 | 0.04 KM |
| 2 Achurch Close | £ 220,000 | 0.04 KM |