Candor Property says ..
Candor Property is delighted to be appointed as the agent for this fantastic detached home, offering an abundance of potential for a future family to wanting to lay down roots in Gayton
Property Oracle says ..
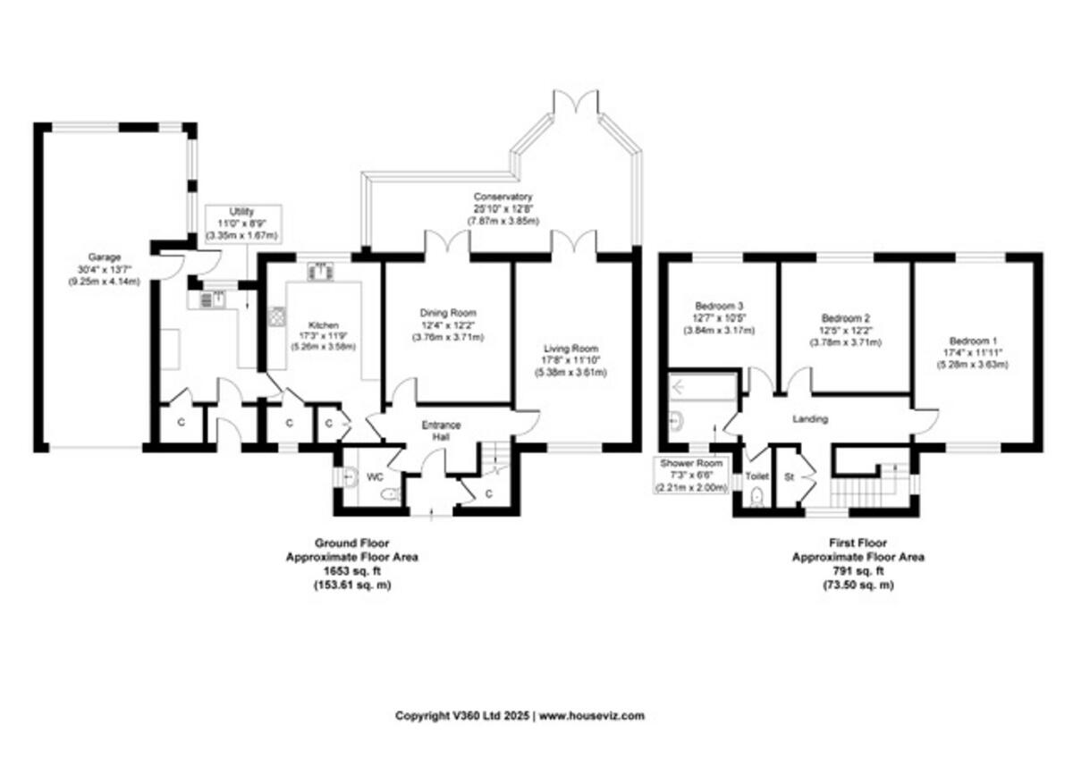
This detached property on Oaksway, Heswall, offers significant potential. Its prime location in a sought-after area of Merseyside, combined with a large plot and substantial square footage, makes it an attractive investment. However, the property requires considerable renovation to modernise its dated interior and bring it up to contemporary standards. The generous garden is a definite asset, providing ample outdoor space. While the asking price of £700,000 appears high relative to the average price per square foot in the area and the property’s condition, the size and location justify a premium. Overall, this property presents a good opportunity for buyers willing to undertake a comprehensive renovation project.
Therefore, we give this property 6 / 10. *Disclaimer: This is our option and does constitute a recommendation or financial advice. Do your own research. *
- Price
- 5
- Condition
- 5
- Location
- 8
- Land
- 9
- Bedrooms
- 3
- Bathrooms
- 1
- Sqft (est)
- 3,898.00
The heatmap indicates the level of crime in the area. The color of the heatmap indicates the crime severity and recency.
Metrics Year-on-Year
- Average area value
- 476,574.00 £Decreased by 12.58 %
- Est sale value
- 1,531,914.00 £Decreased by 7.75 %
- Average area rental value
- 1,200.00 £/moDecreased by 11.24 %
- Est letting value
- 0.00 £/moDecreased by 100.00 %
- Est rental Yield
- 3.02 %Increased by 1.34 %
- Crime Rate
- 1.00 %Unchanged by 0.00 %
Agent Activity
Candor Property created the listing.
Nearby Schools
| Name | Type | Ofsted | Distance |
|---|---|---|---|
| Barnston Primary School | Community School | Good | 0.87 KM |
| Gayton Primary School | Community School | Good | 1.59 KM |
| Heswall Primary School | Community School | Good | 2.02 KM |
| Parkgate Primary School | Community School | Good | 2.26 KM |
| Heswall St Peter'S Cofe Primary School | Voluntary Aided School | Good | 2.44 KM |
Images
Nearby Streets
| Name | Average Price | Average Sqft | Distance |
|---|---|---|---|
| Kingsway | £ 0 | 0 | 0.00 KM |
| Dunster Grove | £ 0 | 0 | 0.00 KM |
| St Stephens Close | £ 0 | 0 | 0.00 KM |
| Old Mill Close | £ 0 | 0 | 0.00 KM |
| Chester Road | £ 711,000 | 0 | 0.00 KM |
Nearby Transport
| Name | NLC | TLC | Distance |
|---|---|---|---|
| Heswall | 2138 | HSW | 1.62 KM |
| Neston | 2139 | NES | 3.54 KM |
| Upton (Merseyside) | 2141 | UPT | 7.66 KM |
| Flint | 2513 | FLN | 9.45 KM |
| Bebington | 2188 | BEB | 9.72 KM |
Nearby Listings
| Address | Price | Type | Score | Distance |
|---|---|---|---|---|
| Oaksway, Wirral, CH60 3 | £ 700,000 | BUY | 6 / 10 | 0.00 KM |
| Oaksway, Wirral, CH60 3 | £ 700,000 | BUY | 6 / 10 | 0.00 KM |
| Kingsway, Heswall, Wirral | £ 650,000 | BUY | 7 / 10 | 0.17 KM |
| Kingsway, Heswall, Wirral | £ 675,000 | BUY | 6 / 10 | 0.17 KM |
| Latchford Road, Gayton, Wirral | £ 595,000 | BUY | 7 / 10 | 0.19 KM |
Nearby Properties
| Address | Price | Distance |
|---|---|---|
| 5 Oaksway | £ 720,000 | 0.04 KM |
| 6 Oaksway | £ 599,500 | 0.04 KM |
| 2 Oaksway | £ 616,000 | 0.04 KM |
| 20 Oaksway | £ 715,000 | 0.04 KM |
| 16 Oaksway | £ 559,250 | 0.04 KM |