Yew Tree Lane, Caerleon, Newport, NP18
By M2 Estate Agents
£ 250,000
Reviews
2 out of 5 stars
M2 Estate Agents says ..
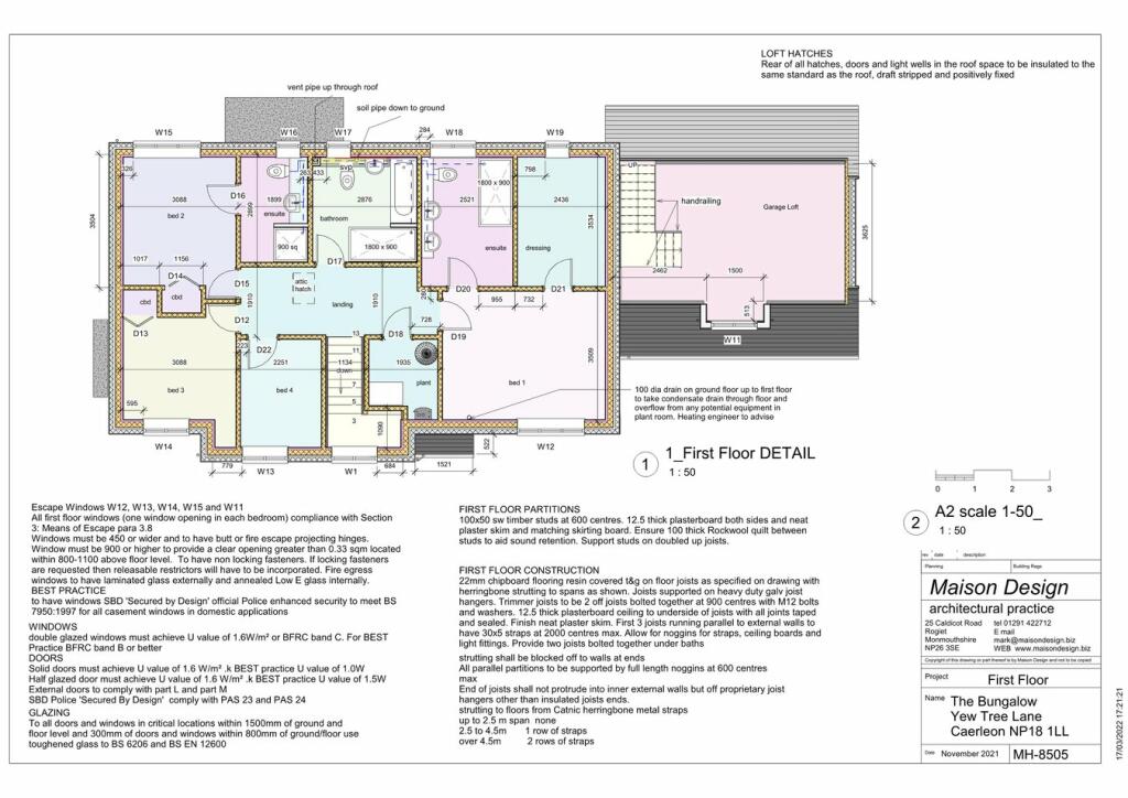
Level plot with planning permission for a four bedroom detached family home, situated in Caerleon. The approved plans would provide accommodation comprising lounge, study, large family kitchen/dining/family room, utility room & pantry, and cloakroom to the ground floor. The first floor com...
Property Oracle says ..
This property is a building plot located on Yew Tree Lane in Caerleon, Newport, with planning permission granted for a four-bedroom detached house. The plans reveal a substantial family home with ample living space, including a large kitchen/dining/family area, a study, and utility room. The location in Caerleon benefits from its proximity to good schools, such as Caerleon Comprehensive School and Ysgol Gymraeg Nant Gwenlli, and amenities. Transport links to Newport city centre and the M4 motorway are reasonably close. The plot itself appears to be of modest size, based on photographic evidence. The absence of crucial data points, such as the precise plot size and square footage of the planned property, hinders a more thorough analysis. The provided information suggests a reasonable price for a building plot with planning permission in this desirable location, but definitive conclusions cannot be drawn without additional information.
Therefore, we give this property 4 / 10. *Disclaimer: This is our option and does constitute a recommendation or financial advice. Do your own research. *
- Price
- 6
- Condition
- 1
- Location
- 7
- Land
- 5
- Bedrooms
- 0
- Bathrooms
- 0
The heatmap indicates the level of crime in the area. The color of the heatmap indicates the crime severity and recency.
Metrics Year-on-Year
- Average area value
- 360,833.00 £Decreased by 13.57 %
- Average area rental value
- 1,178.00 £/moIncreased by 8.17 %
- Est rental Yield
- 3.92 %Increased by 25.24 %
- Crime Rate
- 5.00 %Unchanged by 0.00 %
Agent Activity
M2 Estate Agents created the listing.
Nearby Schools
| Name | Type | Ofsted | Distance |
|---|---|---|---|
| Caerleon Comprehensive School | Welsh Establishment | 0.52 KM | |
| Ysgol Gymraeg Nant Gwenlli | Welsh Establishment | 1.35 KM | |
| St Julian'S School | Welsh Establishment | 2.82 KM | |
| Somerton Primary School | Welsh Establishment | 3.18 KM | |
| Alway Primary | Welsh Establishment | 3.26 KM |
Images
Nearby Streets
| Name | Average Price | Average Sqft | Distance |
|---|---|---|---|
| Llew-a-Dor Cwrt | £ 400,000 | 0 | 0.00 KM |
| Norman Terrace | £ 0 | 0 | 0.00 KM |
| Lansdowne Road | £ 220,000 | 0 | 0.00 KM |
| Cold Bath Road | £ 375,000 | 0 | 0.00 KM |
| College Crescent | £ 0 | 0 | 0.00 KM |
Nearby Transport
| Name | NLC | TLC | Distance |
|---|---|---|---|
| Newport (South Wales) | 3674 | NWP | 5.76 KM |
| Cwmbran | 3738 | CWM | 8.13 KM |
| Pye Corner | 1663 | PYE | 9.88 KM |
Nearby Listings
| Address | Price | Type | Score | Distance |
|---|---|---|---|---|
| Yew Tree Lane, Caerleon, Newport, NP18 | £ 250,000 | BUY | 4 / 10 | 0.00 KM |
| Four Bedrooms, Uskvale Drive, Caerleon | £ 375,000 | BUY | 6 / 10 | 0.07 KM |
| The Hawthorns, Newport, NP18 | £ 500,000 | BUY | 7 / 10 | 0.10 KM |
| The Hawthorns, Caerleon, NP18 | £ 500,000 | BUY | 7 / 10 | 0.10 KM |
| The Hawthorns, Caerleon, NP18 | £ 375,000 | BUY | 6 / 10 | 0.10 KM |
Nearby Properties
| Address | Price | Distance |
|---|---|---|
| 7 The Hawthorns | £ 319,950 | 0.09 KM |
| 8 The Hawthorns | £ 145,000 | 0.09 KM |
| 5 The Hawthorns | £ 425,000 | 0.09 KM |
| 4 The Hawthorns | £ 355,000 | 0.09 KM |
| 11 The Hawthorns | £ 388,000 | 0.09 KM |