Ashcroft Gardens, Cirencester
By Cain & Fuller Estate Agents
£ 98,000
Reviews
2 out of 5 stars
Cain & Fuller Estate Agents says ..
Homeberry House is in a much sought-after location due to its proximity to the town centre with all of the facilities and amenities that the town has to offer within walking distance. Cirencester is deservedly known as the “Capital of the Cotswolds” and is an extremely vibrant, friendly and attra...
Property Oracle says ..
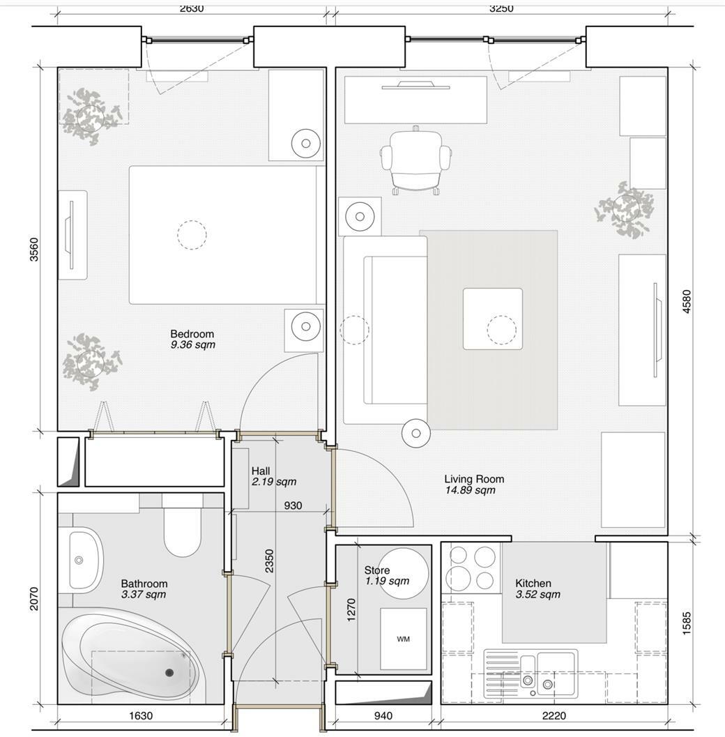
The property is a one-bedroom apartment located in Ashcroft Gardens, Cirencester. Based on the provided images, the apartment appears to be in reasonable condition, though some minor updating or cosmetic work might enhance its appeal. The kitchen and bathroom seem functional but could benefit from some modernisation. The location is convenient, with several schools and amenities within a short distance. However, the lack of plot size is a notable drawback, limiting outdoor space. The list price of £98,000 requires further consideration in comparison to other properties in the area, particularly given the limited square footage and lack of outdoor space. More detailed information on comparable properties and local market trends would be necessary to make a fully informed judgment on the price.
Therefore, we give this property 4 / 10. *Disclaimer: This is our option and does constitute a recommendation or financial advice. Do your own research. *
- Price
- 5
- Condition
- 6
- Location
- 7
- Land
- 1
- Bedrooms
- 1
- Bathrooms
- 1
- Sqft (est)
- 371.57
The heatmap indicates the level of crime in the area. The color of the heatmap indicates the crime severity and recency.
Metrics Year-on-Year
- Average area value
- 241,538.00 £Decreased by 4.18 %
- Est sale value
- 102,924.89 £Increased by 2.97 %
- Average area rental value
- 846.00 £/moIncreased by 4.19 %
- Est letting value
- 0.00 £/mo
- Est rental Yield
- 4.20 %Increased by 8.53 %
- Crime Rate
- 20.00 %Unchanged by 0.00 %
Agent Activity
Cain & Fuller Estate Agents created the listing.
Nearby Schools
| Name | Type | Ofsted | Distance |
|---|---|---|---|
| Paternoster School | Academy Special Sponsor Led | 0.40 KM | |
| Springboard Children'S Centre (Cirencester) | Children's Centre | 0.70 KM | |
| Powell'S Church Of England Primary School | Voluntary Aided School | Outstanding | 0.76 KM |
| Cirencester Primary School | Community School | Good | 0.91 KM |
| Chesterton Primary School | Academy Sponsor Led | 0.95 KM |
Images
Nearby Streets
| Name | Average Price | Average Sqft | Distance |
|---|---|---|---|
| Cotswold Mill | £ 0 | 0 | 0.00 KM |
| Akeman Court | £ 210,000 | 0 | 0.00 KM |
| St Blaize Court | £ 0 | 0 | 0.00 KM |
| Hoopers Court | £ 0 | 0 | 0.00 KM |
| North Way | £ 0 | 0 | 0.00 KM |
Nearby Transport
| Name | NLC | TLC | Distance |
|---|---|---|---|
| Kemble | 3325 | KEM | 7.40 KM |
Nearby Listings
| Address | Price | Type | Score | Distance |
|---|---|---|---|---|
| Ashcroft Gardens, Cirencester | £ 98,000 | BUY | 4 / 10 | 0.00 KM |
| Ashcroft Gardens, Cirencester, Gloucestershire, GL7 | £ 850,000 | BUY | 6 / 10 | 0.03 KM |
| Ashcroft Gardens, Cirencester, Gloucestershire, GL7 | £ 90,000 | BUY | 6 / 10 | 0.04 KM |
| Ashcroft Gardens, Cirencester, Gloucestershire, GL7 | £ 89,500 | BUY | Unknown | 0.05 KM |
| Ashcroft Gardens, Cirencester, Gloucestershire, GL7 | £ 85,000 | BUY | Unknown | 0.05 KM |
Nearby Properties
| Address | Price | Distance |
|---|---|---|
| 21 Ashcroft Gardens | £ 200,000 | 0.04 KM |
| 1 Ashcroft Gardens | £ 85,000 | 0.04 KM |
| 5 Ashcroft Gardens | £ 210,000 | 0.04 KM |
| 3 Ashcroft Gardens | £ 180,000 | 0.04 KM |
| 39 Ashcroft Gardens | £ 215,000 | 0.04 KM |