LO
Milton Road, Kilmarnock, KA3
By Lomond Property
£ 295,000
Reviews
3 out of 5 stars
Lomond Property says ..
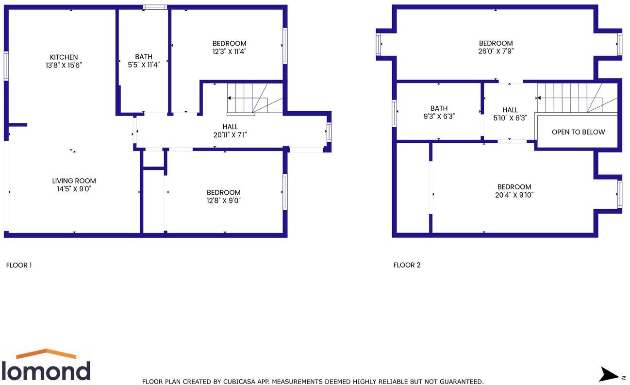
Set within the highly sought-after Wellpark area of Kilmarnock, just off the prestigious London Road, this exceptional brand new semi-detached villa is a stylish family home that blends contemporary design with flexible, family-friendly living. Designed with both style and practicality in mind...
Property Oracle says ..
Therefore, we give this property 7 / 10. *Disclaimer: This is our option and does constitute a recommendation or financial advice. Do your own research. *
- Price
- 8
- Condition
- 9
- Location
- 7
- Land
- 7
- Bedrooms
- 4
- Bathrooms
- 2
- Sqft (est)
- 1,295.32
The heatmap indicates the level of crime in the area. The color of the heatmap indicates the crime severity and recency.
Metrics Year-on-Year
- Average area value
- 317,330.00 £Decreased by 9.75 %
- Est sale value
- 553,101.64 £Increased by 25.96 %
- Average area rental value
- 1,425.00 £/moIncreased by 27.12 %
- Est letting value
- 1,295.32 £/moUnchanged by 0.00 %
- Est rental Yield
- 5.39 %Increased by 40.73 %
- Crime Rate
- 0.00 %
from 351,619.00 £
from 439,113.48 £
from 1,121.00 £/mo
from 1,295.32 £/mo
from 3.83 %
from 0.00 %
Agent Activity
Lomond Property created the listing.
Images
Nearby Streets
| Name | Average Price | Average Sqft | Distance |
|---|---|---|---|
| Milton Avenue | £ 0 | 0 | 0.00 KM |
| Milton Drive | £ 174,495 | 0 | 0.00 KM |
| Cotter Drive | £ 225,000 | 0 | 0.00 KM |
| Maccallum Place | £ 0 | 0 | 0.00 KM |
| Macleod Place | £ 0 | 0 | 0.00 KM |
Nearby Transport
| Name | NLC | TLC | Distance |
|---|---|---|---|
| Kilmarnock | 9512 | KMK | 3.08 KM |
| Kilmaurs | 9516 | KLM | 7.23 KM |
| Stewarton | 9554 | STT | 9.52 KM |
Nearby Listings
| Address | Price | Type | Score | Distance |
|---|---|---|---|---|
| Milton Road, Kilmarnock, KA3 | £ 295,000 | BUY | 7 / 10 | 0.00 KM |
| Milton Road, Kilmarnock, KA3 | £ 275,000 | BUY | 6 / 10 | 0.03 KM |
| Souter Drive, Kilmarnock, KA3 | £ 240,000 | BUY | 7 / 10 | 0.29 KM |
| Kilmarnock, KA3 | £ 85,000 | BUY | 5 / 10 | 0.29 KM |
| Maccallum Place, Kilmarnock, East Ayrshire, KA3 | £ 125,000 | BUY | 7 / 10 | 0.37 KM |