Nove Property says ..
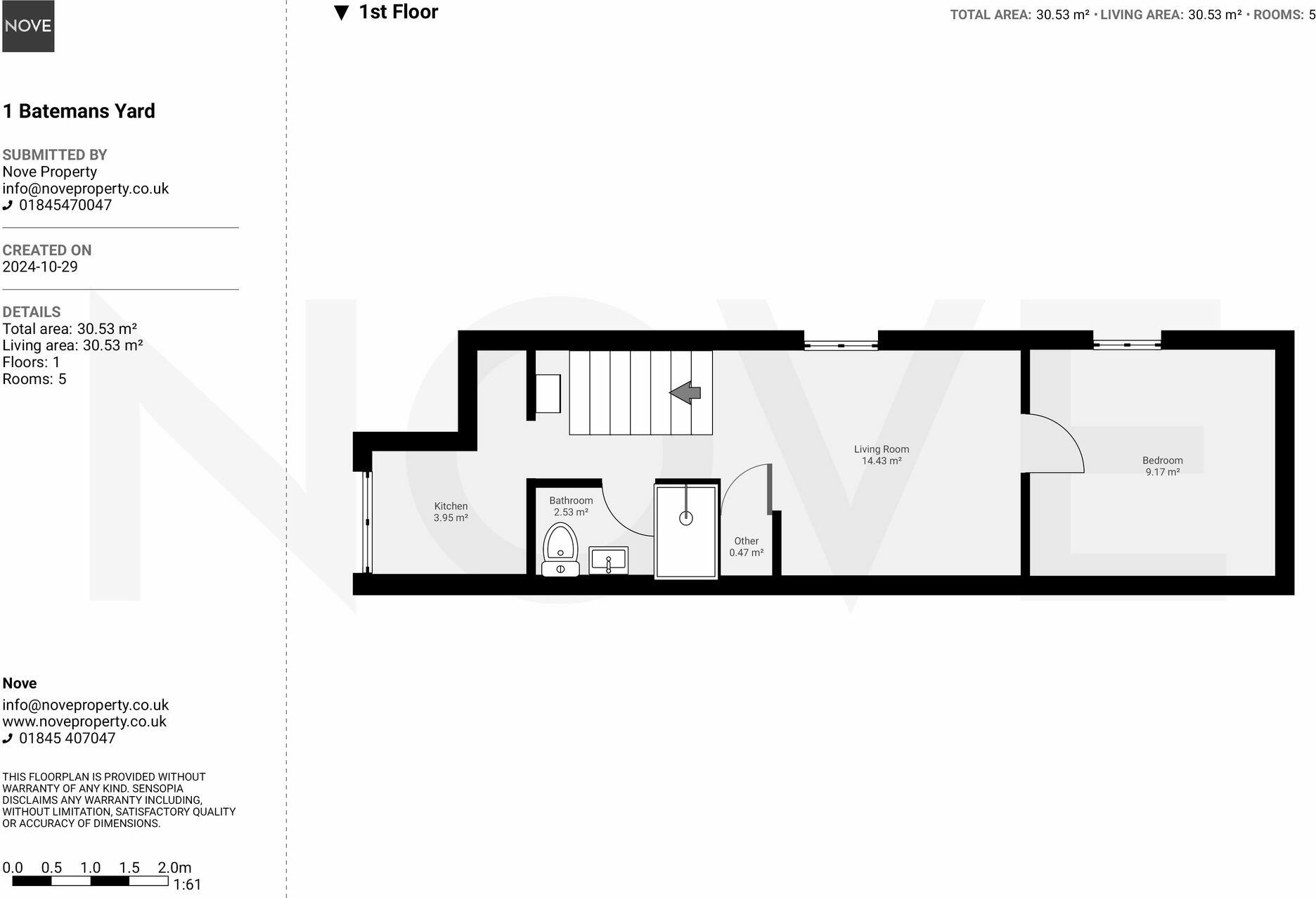
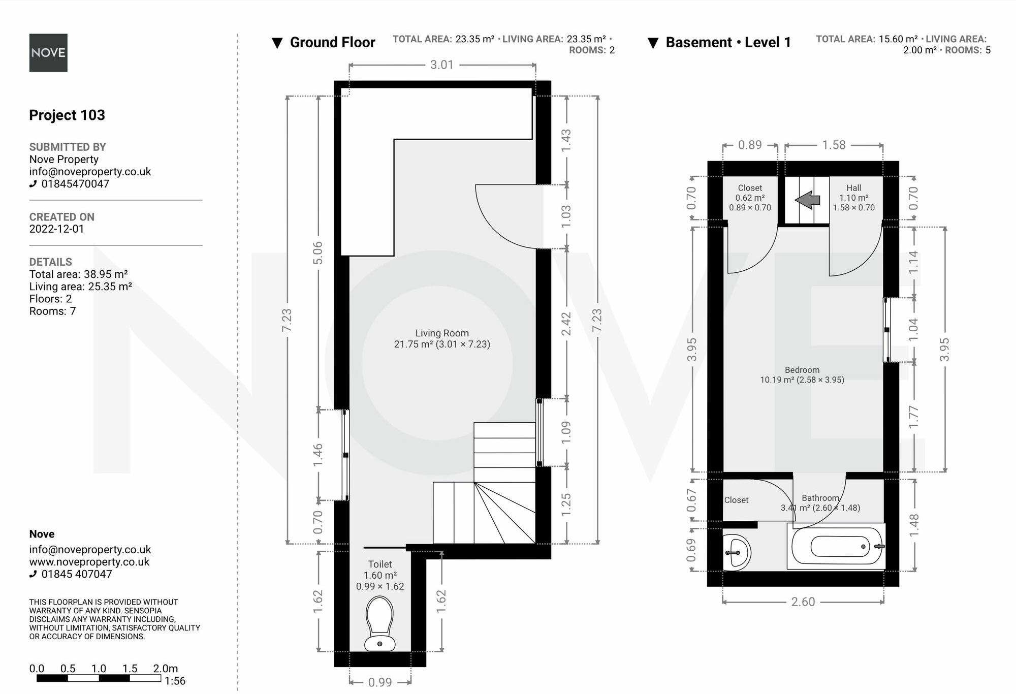
Chain-free 3-storey property with 2 dwellings. Ground floor: open kitchen/living, basement bedroom, bathroom. First floor flat: double bedroom, shower room, sitting room, kitchen. Each tenanted, 8% yield.
Property Oracle says ..
This property in Batemans Yard, Thirsk, is listed as a chain-free, three-storey property comprising two dwellings. The listing highlights its potential as a rental investment, emphasizing an 8% yield from the current tenants. The available photographs showcase the interior, which appears functional but somewhat dated, suggesting the need for some modernisation. While the specific square footage of each dwelling is unstated, the total property size is listed as 328.62 square feet. Key features include two bedrooms and two bathrooms, distributed across the two units. The location in Thirsk offers access to local amenities, schools, and transport links (Thirsk train station is 3.34km away), making it an attractive residential area. However, the lack of details about the size of the individual apartments and the absence of external pictures prevent a thorough appraisal of the building. Additionally, absence of plot size information suggests a lack of garden or private outdoor space. The property’s suitability and value would greatly benefit from more information.
Therefore, we give this property 5 / 10. *Disclaimer: This is our option and does constitute a recommendation or financial advice. Do your own research. *
- Price
- 7
- Condition
- 6
- Location
- 7
- Land
- 1
- Bedrooms
- 2
- Bathrooms
- 2
- Sqft (est)
- 328.62
The heatmap indicates the level of crime in the area. The color of the heatmap indicates the crime severity and recency.
Metrics Year-on-Year
- Average area value
- 413,500.00 £Increased by 31.36 %
- Est sale value
- 129,147.66 £Increased by 32.77 %
- Average area rental value
- 1,399.00 £/moIncreased by 53.23 %
- Est letting value
- 328.62 £/mo
- Est rental Yield
- 4.06 %Increased by 16.67 %
- Crime Rate
- 82.00 %Unchanged by 0.00 %
Agent Activity
Nove Property created the listing.
Nearby Schools
| Name | Type | Ofsted | Distance |
|---|---|---|---|
| All Saints Catholic Primary School, A Catholic Voluntary Academy | Academy Sponsor Led | 0.71 KM | |
| Thirsk Community Primary School | Community School | Requires improvement | 0.84 KM |
| Thirsk Children'S Centre | Children's Centre | 0.84 KM | |
| Sowerby Primary Academy | Academy Converter | 0.86 KM | |
| Thirsk School & Sixth Form College | Community School | Good | 1.13 KM |
Images
Nearby Streets
| Name | Average Price | Average Sqft | Distance |
|---|---|---|---|
| Roses Yard | £ 0 | 0 | 0.00 KM |
| Court Arcade | £ 0 | 0 | 0.00 KM |
| Riverside Mews | £ 162,500 | 0 | 0.00 KM |
| St. James Green | £ 0 | 0 | 0.00 KM |
| Westgate | £ 135,000 | 0 | 0.00 KM |
Nearby Transport
| Name | NLC | TLC | Distance |
|---|---|---|---|
| Thirsk | 8191 | THI | 3.34 KM |
Nearby Listings
| Address | Price | Type | Score | Distance |
|---|---|---|---|---|
| Batemans Yard, Thirsk, YO7 | £ 160,000 | BUY | 5 / 10 | 0.00 KM |
| Investment/Development Opportunity, Thirsk, North Yorkshire, YO7 | £ 600,000 | BUY | 5 / 10 | 0.07 KM |
| Kirkgate, Thirsk | £ 300,000 | BUY | Unknown | 0.11 KM |
| Kirkgate Mews, Thirsk | £ 200,000 | BUY | 6 / 10 | 0.11 KM |
| Kirkgate, Thirsk | £ 300,000 | BUY | Unknown | 0.14 KM |
Nearby Properties
| Address | Price | Distance |
|---|---|---|
| 16 Millgate | £ 140,000 | 0.05 KM |
| 1 Riverside Mews | £ 147,850 | 0.14 KM |
| 8 Riverside Mews | £ 114,000 | 0.14 KM |
| 10 Riverside Mews | £ 160,500 | 0.14 KM |
| 11 Riverside Mews | £ 112,000 | 0.14 KM |