Lagham Road, South Godstone, Godstone, RH9
By Mayhew Estates
£ 450,000
Reviews
3 out of 5 stars
Mayhew Estates says ..
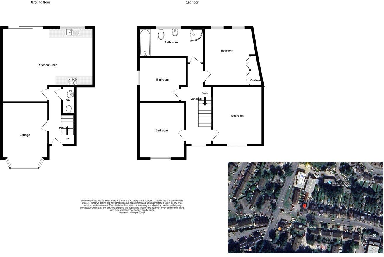
Guide Price £450,000 to £475,000. A semi-detached, four bedroom substantial home with spacious well-presented accommodation, front and rear gardens and no ongoing chain.
Property Oracle says ..
This four-bedroom semi-detached house on Lagham Road in Godstone presents a good opportunity for potential buyers. The property benefits from its location in a sought-after area with good transport links and proximity to local amenities and schools. The house appears to be in generally good condition, with a modern kitchen and bathroom, although some areas could benefit from cosmetic upgrades. The presence of a garden adds to the appeal. Priced at £450,000, it seems competitively priced compared to other properties in the area, offering good value for money. The property retains some traditional features while incorporating modern elements, making it suitable for a range of buyers.
Therefore, we give this property 6 / 10. *Disclaimer: This is our option and does constitute a recommendation or financial advice. Do your own research. *
- Price
- 7
- Condition
- 7
- Location
- 7
- Land
- 6
- Bedrooms
- 4
- Bathrooms
- 1
- Sqft (est)
- 840.00
The heatmap indicates the level of crime in the area. The color of the heatmap indicates the crime severity and recency.
Metrics Year-on-Year
- Average area value
- 535,833.00 £Decreased by 10.41 %
- Est sale value
- 588,000.00 £Increased by 34.87 %
- Average area rental value
- 1,875.00 £/moDecreased by 13.31 %
- Est letting value
- 1,680.00 £/moIncreased by 100.00 %
- Est rental Yield
- 4.20 %Decreased by 3.23 %
- Crime Rate
- 85.00 %Unchanged by 0.00 %
Agent Activity
Mayhew Estates created the listing.
Nearby Schools
| Name | Type | Ofsted | Distance |
|---|---|---|---|
| St Stephen'S Cofe Primary School | Academy Converter | 0.41 KM | |
| St Peter'S Cofe Infant School | Voluntary Aided School | Outstanding | 2.82 KM |
| Godstone Primary And Nursery School | Foundation School | Good | 3.77 KM |
| Orpheus Centre | Special Post 16 Institution | Good | 5.23 KM |
| Bletchingley Village Primary School | Academy Converter | Good | 5.45 KM |
Images
Nearby Streets
| Name | Average Price | Average Sqft | Distance |
|---|---|---|---|
| Brookside | £ 0 | 0 | 0.00 KM |
Nearby Transport
| Name | NLC | TLC | Distance |
|---|---|---|---|
| Godstone | 5474 | GDN | 0.17 KM |
| Hurst Green | 5463 | HUR | 6.48 KM |
| Oxted | 5377 | OXT | 6.51 KM |
| Lingfield | 5369 | LFD | 6.58 KM |
| Caterham | 5351 | CAT | 7.77 KM |
Nearby Listings
| Address | Price | Type | Score | Distance |
|---|---|---|---|---|
| Lagham Road, South Godstone, Godstone, RH9 | £ 450,000 | BUY | 6 / 10 | 0.00 KM |
| Grange Court, Lagham Road, South Godstone, Godstone, RH9 | £ 270,000 | BUY | 6 / 10 | 0.07 KM |
| Lagham Road, South Godstone, Godstone, RH9 | £ 425,000 | BUY | 6 / 10 | 0.08 KM |
| Woodcote, South Godstone, RH9 | £ 350,000 | BUY | 6 / 10 | 0.09 KM |
| Eastbourne Road,South Godstone,Godstone,RH9 8EZ | £ 350,000 | BUY | 7 / 10 | 0.09 KM |
Nearby Properties
| Address | Price | Distance |
|---|---|---|
| Robinden | £ 365,000 | 0.11 KM |
| Fantails | £ 530,000 | 0.13 KM |
| 7 Harcourt Way | £ 254,000 | 0.15 KM |
| 13 Harcourt Way | £ 127,500 | 0.15 KM |
| 3 Harcourt Way | £ 90,000 | 0.15 KM |