Hipswell Highway, Coventry
By Cloud9 Estates Ltd
£ 280,000
Reviews
3 out of 5 stars
Cloud9 Estates Ltd says ..
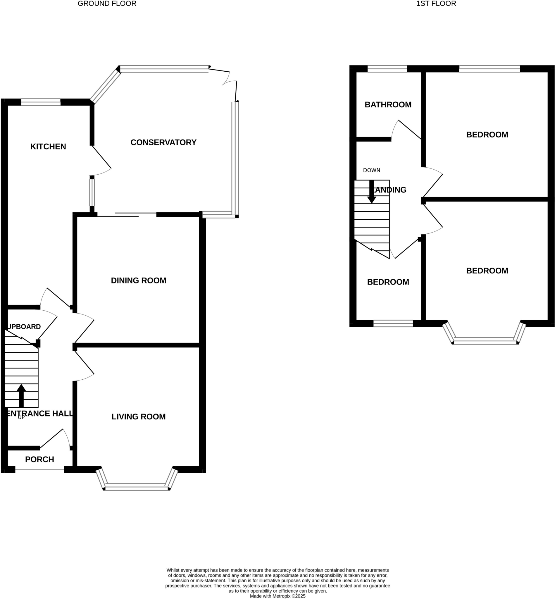
We are delighted to present this beautifully maintained three bedroom end terraced home occupying a large private corner plot, combining modern living with everyday comfort and practicality. Situated in the popular CV2 area of Coventry, this property offers a fantastic opportunity for families or...
Property Oracle says ..
This end of terrace property is located on Hipswell Highway, Wyken, Coventry. The area benefits from nearby schools such as St Gregory’s Catholic Primary School and Ravensdale Primary School, both rated ‘Good’ by Ofsted. Transport links are also relatively convenient, with Coventry Arena train station approximately 6km away. The property itself appears to be in good condition, with a well-maintained garden and a recently updated conservatory. The interior is presented well and shows signs of modernisation. While specific square footage is unavailable, the asking price of £280,000 is slightly higher than the average price for the area (£259,799), though comparable to other similar properties on Hipswell Highway and nearby streets. The presence of a well-maintained garden adds value.
Therefore, we give this property 7 / 10. *Disclaimer: This is our option and does constitute a recommendation or financial advice. Do your own research. *
- Price
- 7
- Condition
- 8
- Location
- 7
- Land
- 8
- Bedrooms
- 3
- Bathrooms
- 1
The heatmap indicates the level of crime in the area. The color of the heatmap indicates the crime severity and recency.
Metrics Year-on-Year
- Average area value
- 282,000.00 £Increased by 12.12 %
- Average area rental value
- 952.00 £/moDecreased by 13.30 %
- Est rental Yield
- 4.05 %Decreased by 22.71 %
- Crime Rate
- 1.00 %Unchanged by 0.00 %
Agent Activity
Cloud9 Estates Ltd created the listing.
Nearby Schools
| Name | Type | Ofsted | Distance |
|---|---|---|---|
| Richard Lee Primary School | Academy Converter | 0.28 KM | |
| Richard Lee Children'S Centre | Children's Centre | 0.33 KM | |
| St Gregory'S Catholic Primary School | Academy Converter | Good | 0.71 KM |
| Ravensdale Primary School | Community School | Good | 0.90 KM |
| Ernesford Grange Primary School | Community School | Good | 1.06 KM |
Images
Nearby Streets
| Name | Average Price | Average Sqft | Distance |
|---|---|---|---|
| Brookedale Avenue | £ 0 | 0 | 0.00 KM |
| Bronte Walk | £ 0 | 0 | 0.00 KM |
| The Pavilion | £ 310,000 | 0 | 0.00 KM |
| Copsewood Terrace | £ 420,000 | 0 | 0.00 KM |
| Shelley Court | £ 150,000 | 0 | 0.00 KM |
Nearby Transport
| Name | NLC | TLC | Distance |
|---|---|---|---|
| Coventry Arena | 7416 | CAA | 6.02 KM |
| Coventry | 1030 | COV | 6.05 KM |
| Bedworth | 1165 | BEH | 8.16 KM |
| Canley | 1129 | CNL | 9.83 KM |
Nearby Listings
| Address | Price | Type | Score | Distance |
|---|---|---|---|---|
| Hipswell Highway, Coventry | £ 280,000 | BUY | 7 / 10 | 0.00 KM |
| Hipswell Highway, Wyken, Coventry | £ 230,000 | BUY | 7 / 10 | 0.09 KM |
| Harold Road, Stoke Hill, Coventry | £ 180,000 | BUY | 4 / 10 | 0.10 KM |
| Hipswell Highway, Coventry | £ 240,000 | BUY | 7 / 10 | 0.11 KM |
| Harold Road, Stoke Hill, Coventry, CV2 5LG | £ 280,000 | BUY | 6 / 10 | 0.14 KM |
Nearby Properties
| Address | Price | Distance |
|---|---|---|
| 367 Hipswell Highway | £ 180,000 | 0.00 KM |
| 295 Hipswell Highway | £ 140,000 | 0.00 KM |
| 359 Hipswell Highway | £ 130,000 | 0.00 KM |
| 339 Hipswell Highway | £ 232,500 | 0.00 KM |
| 293 Hipswell Highway | £ 168,000 | 0.00 KM |