Staunton Road, Kingston Upon Thames
By Gibson Lane
£ 1,100,000
Reviews
3 out of 5 stars
Gibson Lane says ..
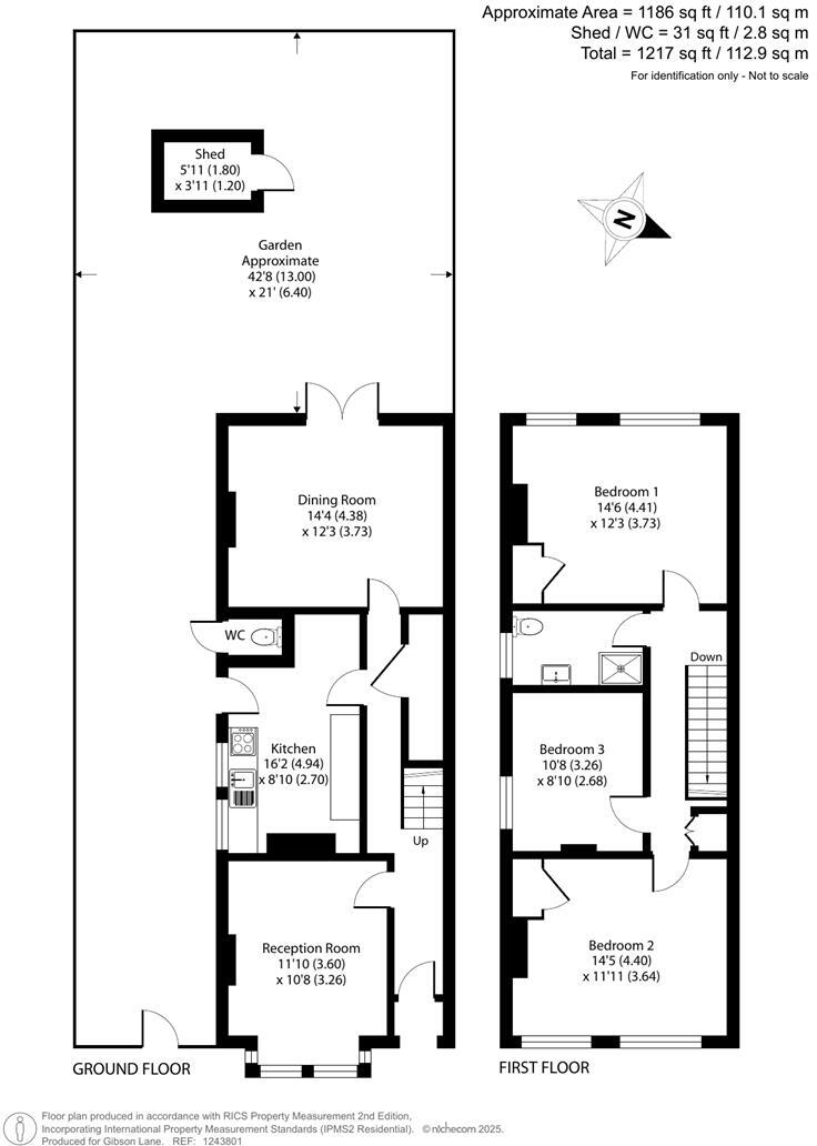
A unique opportunity to purchase one of the few remaining undeveloped Edwardian villa’s situated on this sought after road within North Kingston with accommodation approaching 1200 sq ft. This much loved home has been in the same family for over sixty years and is presented as a blank canvass re...
Property Oracle says ..
The property is located in the desirable Canbury area of Kingston Upon Thames, close to amenities and transport links. While it has character, it requires modernisation. The price is at the higher end of the market for the area, considering its size and condition.
Therefore, we give this property 6 / 10. *Disclaimer: This is our option and does constitute a recommendation or financial advice. Do your own research. *
- Price
- 7
- Condition
- 6
- Location
- 9
- Land
- 5
- Bedrooms
- 3
- Bathrooms
- 1
- Sqft (est)
- 1,607.00
- Lot (est)
- 1,186.00
The heatmap indicates the level of crime in the area. The color of the heatmap indicates the crime severity and recency.
Metrics Year-on-Year
- Average area value
- 669,998.00 £Increased by 0.45 %
- Est sale value
- 1,292,028.00 £Increased by 16.35 %
- Average area rental value
- 2,375.00 £/moIncreased by 1.37 %
- Est letting value
- 3,214.00 £/moUnchanged by 0.00 %
- Est rental Yield
- 4.25 %Increased by 0.71 %
- Crime Rate
- 1.00 %Unchanged by 0.00 %
Agent Activity
Gibson Lane marked this listing as sold.
Gibson Lane created the listing.
Nearby Schools
| Name | Type | Ofsted | Distance |
|---|---|---|---|
| North Kingston Children'S Centre | Children's Centre | 0.29 KM | |
| St Luke'S Cofe Primary School | Foundation School | Outstanding | 0.42 KM |
| Latchmere School | Academy Converter | Good | 0.43 KM |
| St Agatha'S Catholic Primary School | Academy Converter | Good | 0.51 KM |
| Educare Small School | Other Independent School | Good | 0.66 KM |
Images
Nearby Streets
| Name | Average Price | Average Sqft | Distance |
|---|---|---|---|
| Studland Road | £ 1,650,000 | 0 | 0.00 KM |
| St Albans Road | £ 1,350,000 | 0 | 0.00 KM |
| Wych Elm Close | £ 0 | 0 | 0.00 KM |
| David Twigg Close | £ 0 | 0 | 0.00 KM |
| Waights Court | £ 0 | 0 | 0.00 KM |
Nearby Transport
| Name | NLC | TLC | Distance |
|---|---|---|---|
| Kingston | 5565 | KNG | 0.90 KM |
| Norbiton | 5568 | NBT | 1.64 KM |
| Hampton Wick | 5589 | HMW | 1.81 KM |
| Berrylands | 5581 | BRS | 2.91 KM |
| Surbiton | 5571 | SUR | 3.12 KM |
Nearby Listings
| Address | Price | Type | Score | Distance |
|---|---|---|---|---|
| Staunton Road, Kingston Upon Thames | £ 1,100,000 | BUY | 6 / 10 | 0.00 KM |
| Chesfield Road, Kingston Upon Thames | £ 1,350,000 | BUY | 7 / 10 | 0.11 KM |
| Chesfield Road, Kingston upon Thames, KT2 | £ 1,100,000 | BUY | 5 / 10 | 0.12 KM |
| Kings Road, Kingston upon Thames | £ 600,000 | BUY | 8 / 10 | 0.12 KM |
| Staunton Road, Kingston Upon Thames | £ 800,000 | BUY | 8 / 10 | 0.14 KM |
Nearby Properties
| Address | Price | Distance |
|---|---|---|
| 17 Staunton Road | £ 1,428,950 | 0.05 KM |
| 20 Staunton Road | £ 1,505,000 | 0.05 KM |
| 3 Staunton Road | £ 620,000 | 0.05 KM |
| 21 Staunton Road | £ 620,000 | 0.05 KM |
| 6 Staunton Road | £ 520,000 | 0.05 KM |