Catharine Street, Cambridge
By Redmayne Arnold & Harris
£ 600,000
Reviews
3 out of 5 stars
Redmayne Arnold & Harris says ..
A beautifully extended, semi-detached home with driveway parking and a private west-facing garden, enjoying a quiet, near central city location in the heart of Romsey Town.
Property Oracle says ..
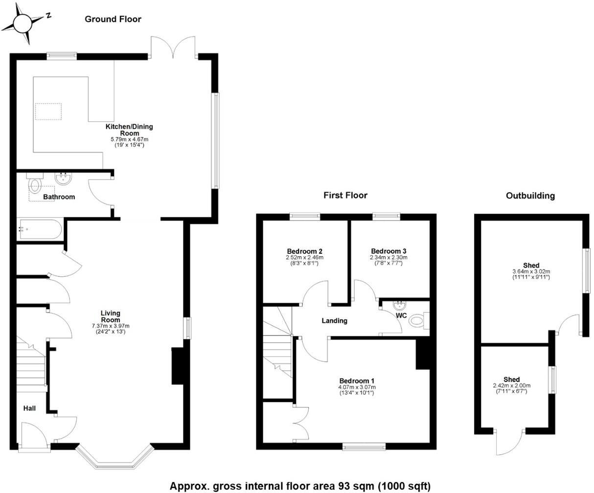
This property is a 3-bedroom semi-detached house located in Cambridge, Cambridgeshire. The house has been recently renovated to a high standard, boasting a modern kitchen and bathrooms. The property benefits from a good-sized garden and is within walking distance of local schools and amenities. Transport links are also easily accessible. While the plot size is not specified, the garden appears sizeable in the provided photos. The list price of £600,000 is slightly above the average price for the area (£482,419), but considering the size (1001 sq ft), recent renovations, and desirable location, it could be considered reasonable. Nearby comparable properties range from £300,000 to £750,000, suggesting the list price is within the expected range for similar properties in the area.
Therefore, we give this property 7 / 10. *Disclaimer: This is our option and does constitute a recommendation or financial advice. Do your own research. *
- Price
- 7
- Condition
- 9
- Location
- 8
- Land
- 7
- Bedrooms
- 3
- Bathrooms
- 1
- Sqft (est)
- 1,001.04
The heatmap indicates the level of crime in the area. The color of the heatmap indicates the crime severity and recency.
Metrics Year-on-Year
- Average area value
- 434,999.00 £Decreased by 13.09 %
- Est sale value
- 709,737.36 £Increased by 35.05 %
- Average area rental value
- 1,897.00 £/moIncreased by 9.40 %
- Est letting value
- 3,003.12 £/moIncreased by 200.00 %
- Est rental Yield
- 5.23 %Increased by 25.72 %
- Crime Rate
- 0.00 %
Agent Activity
Redmayne Arnold & Harris created the listing.
Nearby Schools
| Name | Type | Ofsted | Distance |
|---|---|---|---|
| St Philip'S Cofe Aided Primary School | Voluntary Aided School | Requires improvement | 0.78 KM |
| Coleridge Community College | Academy Converter | Good | 1.07 KM |
| Ridgefield Primary School | Foundation School | Good | 1.07 KM |
| Brunswick Nursery School | Local Authority Nursery School | Outstanding | 1.16 KM |
| St Matthew'S Primary School | Community School | Good | 1.46 KM |
Images
Nearby Streets
| Name | Average Price | Average Sqft | Distance |
|---|---|---|---|
| Bury Court | £ 0 | 0 | 0.00 KM |
| Hemingford Road | £ 0 | 0 | 0.00 KM |
| Ivy Court | £ 0 | 0 | 0.00 KM |
| Millcroft Court | £ 165,000 | 0 | 0.00 KM |
| Ruth Bagnall Court | £ 0 | 0 | 0.00 KM |
Nearby Transport
| Name | NLC | TLC | Distance |
|---|---|---|---|
| Cambridge | 7022 | CBG | 1.33 KM |
| Cambridge North | 8001 | CMB | 2.89 KM |
| Shelford (Cambs) | 7043 | SED | 5.88 KM |
| Waterbeach | 7079 | WBC | 8.75 KM |
Nearby Listings
| Address | Price | Type | Score | Distance |
|---|---|---|---|---|
| Catharine Street, Cambridge | £ 600,000 | BUY | 7 / 10 | 0.00 KM |
| Catharine Street, Cambridge | £ 850,000 | BUY | 6 / 10 | 0.07 KM |
| Sedgwick Street, Cambridge | £ 575,000 | BUY | 7 / 10 | 0.08 KM |
| Sedgwick Street, Cambridge | £ 450,000 | BUY | 6 / 10 | 0.08 KM |
| Thoday Street, Cambridge, CB1 | £ 600,000 | BUY | 7 / 10 | 0.10 KM |
Nearby Properties
| Address | Price | Distance |
|---|---|---|
| 182 Thoday Street | £ 220,000 | 0.10 KM |
| 115 Thoday Street | £ 623,000 | 0.12 KM |
| 77 Thoday Street | £ 307,000 | 0.12 KM |
| 135 Thoday Street | £ 495,000 | 0.12 KM |
| 67 Thoday Street | £ 375,000 | 0.12 KM |