BidX1 says ..
To be sold at an online auction. For further information, viewing times and legal documentation, please visit bidx1.com.
Property Oracle says ..
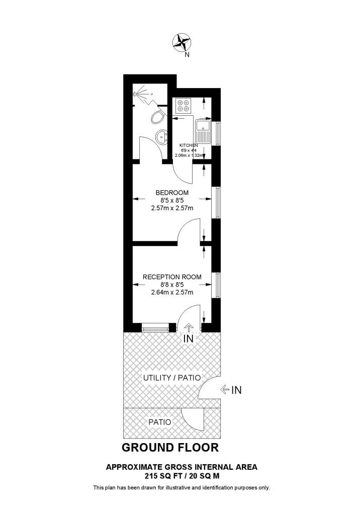
This is a one-bedroom flat in Gipsy Hill, London. The property is in need of renovation, but it is located in a desirable area with good access to transportation. The property is listed for £115,000, which is below the average price for the area. The flat has a small patio area. The property is located near several schools, including Park Campus Academy and Kingswood Primary School & Children’S Centre.
Therefore, we give this property 5 / 10. *Disclaimer: This is our option and does constitute a recommendation or financial advice. Do your own research. *
- Price
- 8
- Condition
- 3
- Location
- 6
- Land
- 5
- Bedrooms
- 1
- Bathrooms
- 1
The heatmap indicates the level of crime in the area. The color of the heatmap indicates the crime severity and recency.
Metrics Year-on-Year
- Average area value
- 455,829.00 £Decreased by 18.48 %
- Average area rental value
- 2,118.00 £/moDecreased by 3.99 %
- Est rental Yield
- 5.58 %Increased by 17.97 %
- Crime Rate
- 1.00 %Unchanged by 0.00 %
Agent Activity
BidX1 created the listing.
Nearby Schools
| Name | Type | Ofsted | Distance |
|---|---|---|---|
| Park Campus Academy | Academy Alternative Provision Converter | Good | 0.29 KM |
| Kingswood Primary School & Children'S Centre | Children's Centre | 0.43 KM | |
| St Luke'S Church Of England Primary School | Academy Converter | 0.53 KM | |
| Elm Wood School | Community School | Good | 0.58 KM |
| Cherry Tree Children'S Centre | Children's Centre Linked Site | 0.60 KM |
Images
Nearby Streets
| Name | Average Price | Average Sqft | Distance |
|---|---|---|---|
| St Gothard Road | £ 0 | 0 | 0.00 KM |
| St Benards Close | £ 302,500 | 0 | 0.00 KM |
| Auckland Hill | £ 0 | 0 | 0.00 KM |
| Church Road | £ 0 | 0 | 0.00 KM |
| Unity Close | £ 0 | 0 | 0.00 KM |
Nearby Transport
| Name | NLC | TLC | Distance |
|---|---|---|---|
| West Norwood | 5438 | WNW | 0.76 KM |
| West Dulwich | 5086 | WDU | 1.29 KM |
| Tulse Hill | 5390 | TUH | 1.36 KM |
| Gipsy Hill | 5363 | GIP | 1.61 KM |
| Sydenham Hill | 5085 | SYH | 1.86 KM |
Nearby Listings
| Address | Price | Type | Score | Distance |
|---|---|---|---|---|
| Hubbard Road, London, SE27 | £ 115,000 | BUY | 5 / 10 | 0.00 KM |
| Hubbard Road, London | £ 700,000 | BUY | 6 / 10 | 0.01 KM |
| Hubbard Road, West Norwood, London, SE27 | £ 175,000 | BUY | 5 / 10 | 0.03 KM |
| Durban Road, West Norwood, SE27 | £ 335,000 | BUY | 6 / 10 | 0.05 KM |
| Durban Road, West Norwood, London SE27 | £ 525,000 | BUY | Unknown | 0.09 KM |
Nearby Properties
| Address | Price | Distance |
|---|---|---|
| 16 Hubbard Road | £ 158,000 | 0.01 KM |
| 15 Hubbard Road | £ 450,000 | 0.01 KM |
| 2 Hubbard Road | £ 175,000 | 0.01 KM |
| 12b Hubbard Road | £ 325,000 | 0.01 KM |
| 12a Hubbard Road | £ 189,500 | 0.01 KM |