Heyworth Road, Stratford
PO

Heyworth Road, Stratford

By Portico

£ 325,000

Reviews

3 out of 5 stars

Portico says ..

Nestled in a prime location, this charming ground floor apartment offers a perfect blend of comfort and convenience. The property features a spacious bedroom, ideal for relaxation after a long day, and a well-appointed bathroom. The open-plan living area is bright and welcoming, providing a seaml...

Property Oracle says ..

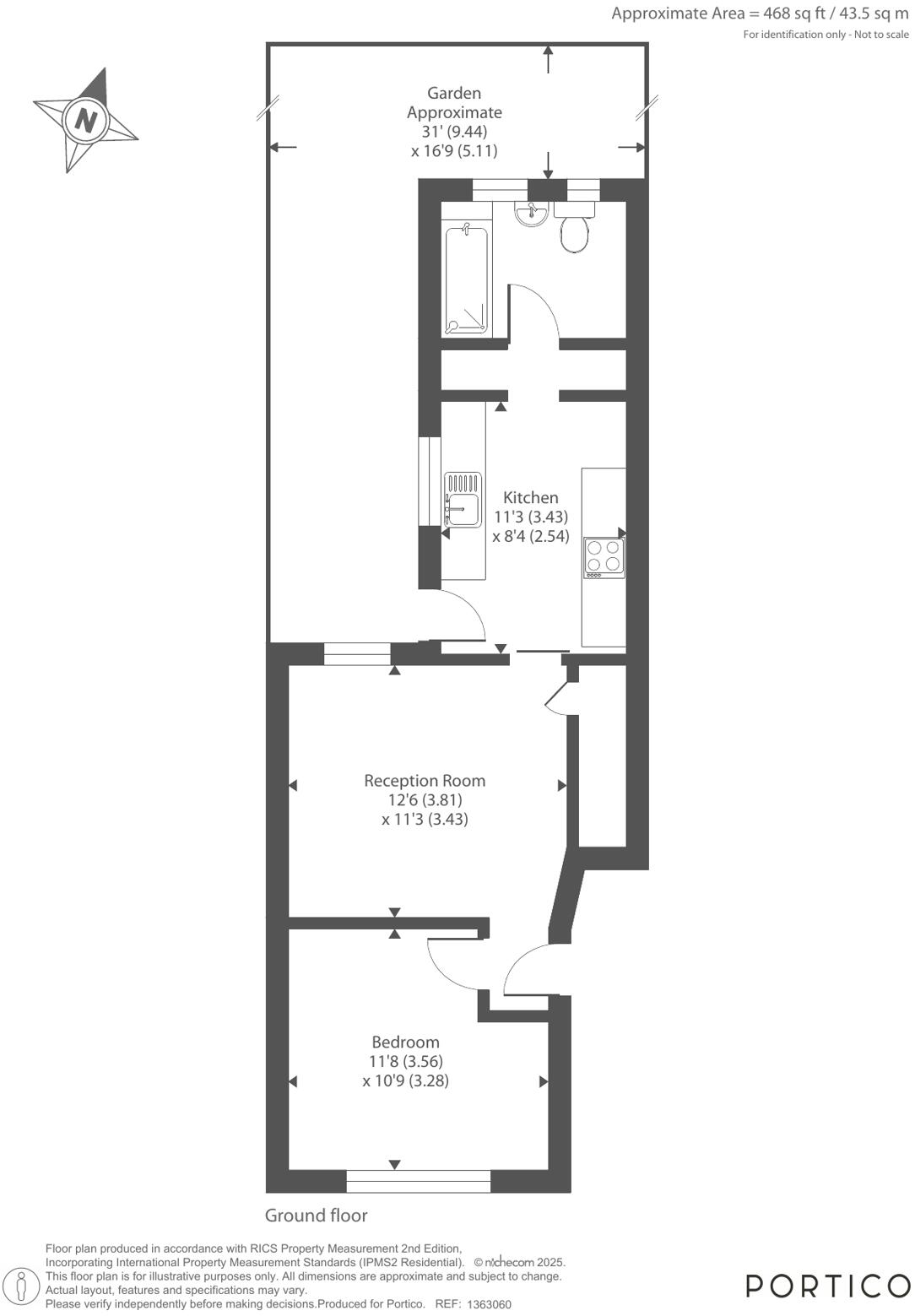
This is a one-bedroom apartment located in Forest Gate North, Stratford. The property is in reasonable condition internally, with a modern kitchen and bathroom. The property benefits from a rear garden. The location is good, with Maryland station and several schools nearby. The price is in line with the local market. Overall, this property represents a reasonable investment opportunity.

Therefore, we give this property 6 / 10. *Disclaimer: This is our option and does constitute a recommendation or financial advice. Do your own research. *

Price
7
Condition
6
Location
7
Land
5
Bedrooms
1
Bathrooms
1
Sqft (est)
468.00

The heatmap indicates the level of crime in the area. The color of the heatmap indicates the crime severity and recency.

Metrics Year-on-Year

Average area value
733,333.00 £
Increased by 49.34 %
from 491,063.00 £
Est sale value
241,956.00 £
Decreased by 4.08 %
from 252,252.00 £
Average area rental value
1,836.00 £/mo
Decreased by 10.92 %
from 2,061.00 £/mo
Est letting value
468.00 £/mo
Decreased by 50.00 %
from 936.00 £/mo
Est rental Yield
3.00 %
Decreased by 40.48 %
from 5.04 %
Crime Rate
5.00 %
Unchanged by 0.00 %
from 5.00 %

Agent Activity

  • Portico created the listing.

Nearby Schools

NameTypeOfstedDistance
Maryland Childrens CentreChildren's Centre0.22 KM
Maryland Primary SchoolCommunity SchoolGood0.39 KM
The Jenny Hammond Primary SchoolCommunity SchoolGood0.58 KM
St Francis' Catholic Primary SchoolAcademy Converter0.63 KM
Buxton SchoolFoundation SchoolGood0.72 KM

Images

1363060-21-68e598... 1363060-22-68e598... 1363060-16-68e598... 1363060-17-68e598... 1363060-18-68e598... 1363060-19-68e598... 1363060-10-68e597... 1363060-7-68e5979... 1363060-5-68e5976... 1363060-6-68e5976... 1363060-1-68e5970... 1363060-2-68e5970... 1363060-11-68e597... 1363060-12-68e597... 1363060-14-68e598... 1363060-15-68e598...

Nearby Streets

NameAverage PriceAverage SqftDistance
Canons Court £ 475,00000.00 KM
Vanbrugh Mews £ 000.00 KM
Marlborough Road £ 000.00 KM
Alfred Road £ 000.00 KM
Arundel Close £ 600,00000.00 KM

Nearby Transport

NameNLCTLCDistance
Maryland6970MYL0.83 KM
Leytonstone High Road7403LER1.41 KM
Forest Gate6876FOG1.47 KM
Wanstead Park7408WNP1.66 KM
Stratford6969SRA1.92 KM

Nearby Listings

AddressPriceTypeScoreDistance
Heyworth Road, London £ 325,000BUY5 / 100.00 KM
Heyworth Road, Stratford £ 325,000BUY6 / 100.00 KM
Heyworth Road, London, E15 £ 295,000BUY5 / 100.03 KM
Trevelyan Road, London, E15 £ 270,000BUY6 / 100.06 KM
Trevelyan Road, Forest Gate £ 600,000BUY7 / 100.07 KM

Nearby Properties

AddressPriceDistance
20 Heyworth Road £ 480,0000.02 KM
9 Heyworth Road £ 135,0000.02 KM
8 Heyworth Road £ 290,0000.02 KM
6 Heyworth Road £ 180,0000.02 KM
18 Heyworth Road £ 616,0000.02 KM