Village Estates says ..
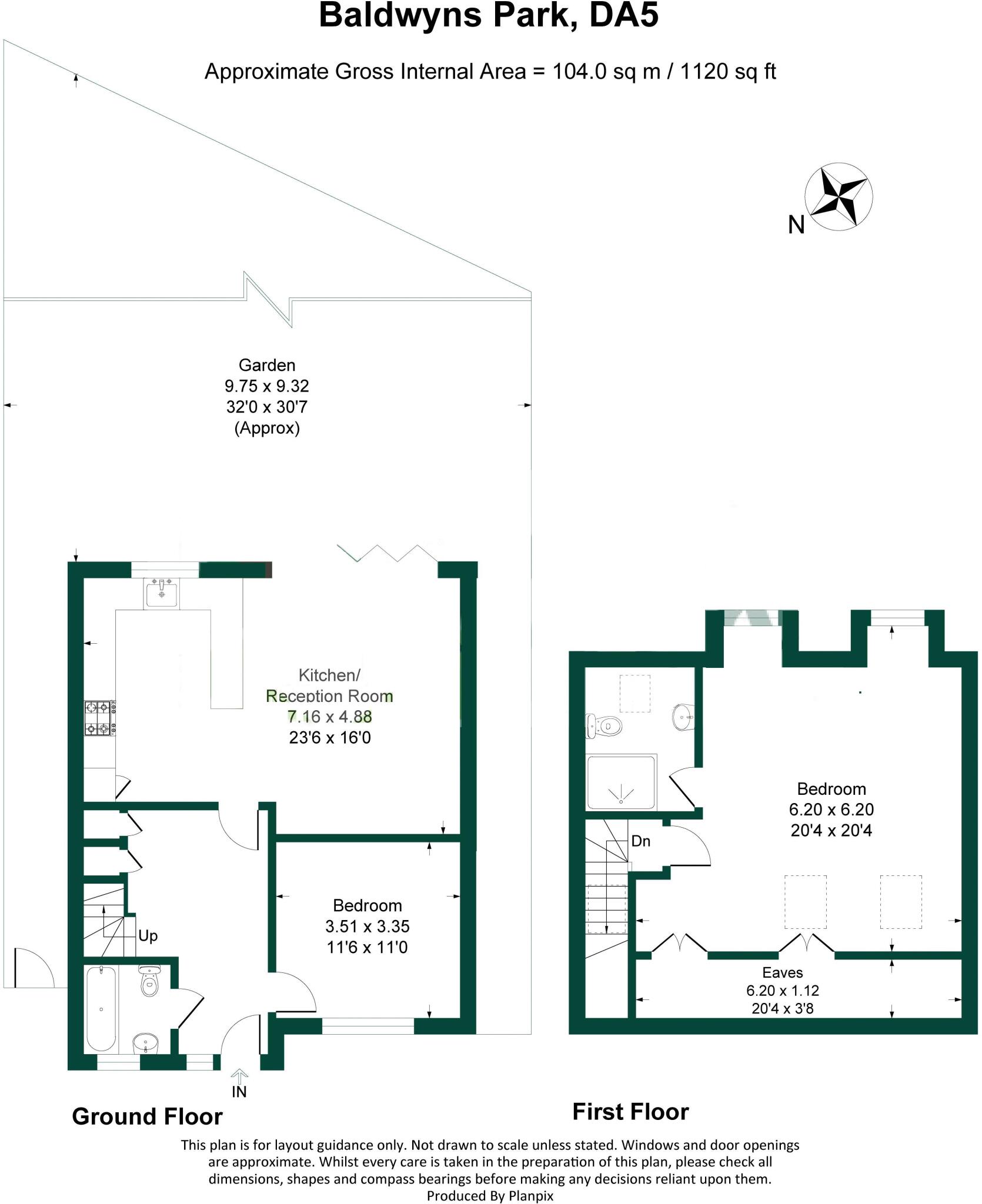
Village Estates are delighted to introduce this beautiful TWO BEDROOM NEW BUILD detached bungalow. Located within easy access to local shops, schools, bus routes and all other transport links. The finish is of high quality throughout and benefits from a spacious kitchen, dining and living area wi...
Property Oracle says ..
This property is a newly refurbished detached bungalow located in Baldwyns Park, Bexley, Kent. The area benefits from good local schools such as Maypole Primary School (rated Good by Ofsted) and Joydens Wood Junior School (also rated Good), both within a reasonable distance. Several Southeastern train stations are also nearby, providing convenient access to commuting routes. The property itself is in excellent condition, having undergone a complete modernisation. It features a modern kitchen, contemporary bathrooms, and a newly landscaped garden. While the plot size is relatively small, the property is well-presented and offers a comfortable living space. The list price of £575,000 seems reasonable considering the current market conditions in the area, although the average price per square foot is higher than that of the property. However, the condition and recent refurbishment likely justify the price point.
Therefore, we give this property 7 / 10. *Disclaimer: This is our option and does constitute a recommendation or financial advice. Do your own research. *
- Price
- 7
- Condition
- 10
- Location
- 8
- Land
- 4
- Bedrooms
- 2
- Bathrooms
- 2
- Sqft (est)
- 1,119.45
The heatmap indicates the level of crime in the area. The color of the heatmap indicates the crime severity and recency.
Metrics Year-on-Year
- Average area value
- 680,617.00 £Decreased by 16.07 %
- Est sale value
- 501,513.60 £Decreased by 14.18 %
- Average area rental value
- 1,914.00 £/moIncreased by 14.68 %
- Est letting value
- 1,119.45 £/moUnchanged by 0.00 %
- Est rental Yield
- 3.37 %Increased by 36.44 %
- Crime Rate
- 10.00 %Unchanged by 0.00 %
Agent Activity
Village Estates created the listing.
Nearby Schools
| Name | Type | Ofsted | Distance |
|---|---|---|---|
| Maypole Primary School | Community School | Good | 0.92 KM |
| Maypole Children'S Centre | Children's Centre Linked Site | 1.00 KM | |
| Joydens Wood Junior School | Academy Converter | Good | 1.22 KM |
| Joydens Wood Infant School | Academy Converter | Good | 1.34 KM |
| Beths Grammar School | Academy Converter | Outstanding | 2.35 KM |
Images
Nearby Streets
| Name | Average Price | Average Sqft | Distance |
|---|---|---|---|
| Staple Close | £ 0 | 0 | 0.00 KM |
| The Coppice | £ 0 | 0 | 0.00 KM |
| Eden Close | £ 440,000 | 0 | 0.00 KM |
| Academy Court | £ 247,500 | 0 | 0.00 KM |
| Denton Road | £ 0 | 0 | 0.00 KM |
Nearby Transport
| Name | NLC | TLC | Distance |
|---|---|---|---|
| Bexley | 5093 | BXY | 2.19 KM |
| Crayford | 5100 | CRY | 2.38 KM |
| Barnehurst | 5089 | BNH | 3.79 KM |
| Swanley | 5075 | SAY | 4.26 KM |
| Albany Park | 5132 | AYP | 4.44 KM |
Nearby Listings
| Address | Price | Type | Score | Distance |
|---|---|---|---|---|
| Baldwyns Park, Bexley | £ 575,000 | BUY | 7 / 10 | 0.00 KM |
| Baldwyns Park, Bexley, Kent, DA5 | £ 729,950 | BUY | Unknown | 0.12 KM |
| Wicksteed Close, Bexley | £ 700,000 | BUY | 7 / 10 | 0.12 KM |
| Tile Kiln Lane, Bexley, Kent, DA5 | £ 1,000,000 | BUY | 7 / 10 | 0.12 KM |
| Tile Kiln Lane, Bexley | £ 1,050,000 | BUY | 7 / 10 | 0.12 KM |
Nearby Properties
| Address | Price | Distance |
|---|---|---|
| 83 Tile Kiln Lane | £ 319,000 | 0.12 KM |
| 95 Tile Kiln Lane | £ 625,000 | 0.12 KM |
| 93 Tile Kiln Lane | £ 800,000 | 0.12 KM |
| 1 Staple Close | £ 237,500 | 0.12 KM |
| 11 Staple Close | £ 582,500 | 0.12 KM |