Walmington Fold, Woodside Park
RE

Walmington Fold, Woodside Park

By Real Estates

£ 1,250,000

Reviews

3 out of 5 stars

Real Estates says ..

Real Estates are delighted to offer for sale this immaculate 4 BEDROOM 2 BATHROOM SEMI-DETACHED family home situated in a quiet residential turning on the edge of Woodside Park and West Finchley. The ground floor accommodation comprises a front reception room through to the open plan kit...

Property Oracle says ..

This 4-bedroom, 2-bathroom semi-detached house in Woodside Park, Barnet (N12 7LJ), is presented in immaculate condition. The property boasts recently updated interiors, including a modern kitchen with bi-fold doors opening onto the garden, stylish bathrooms, and ample living space throughout. The images reveal a high standard of finish and a well-maintained property. The location offers a balance between a quiet residential setting and proximity to local amenities, including schools and transportation links, though those links are not immediately close by. The garden is a notable feature, providing outdoor space. The list price of £1,250,000 should be assessed in light of comparable properties in the immediate area; whilst there are similar houses listed at a similar price the lack of sqft data limits the ability to determine the property’s true value. The property’s condition, however, is a key advantage. Overall, this property represents a potentially sound investment for a family looking for a modern, comfortable home in a pleasant North London location.

Therefore, we give this property 7 / 10. *Disclaimer: This is our option and does constitute a recommendation or financial advice. Do your own research. *

Price
7
Condition
9
Location
7
Land
6
Bedrooms
4
Bathrooms
2
Sqft (est)
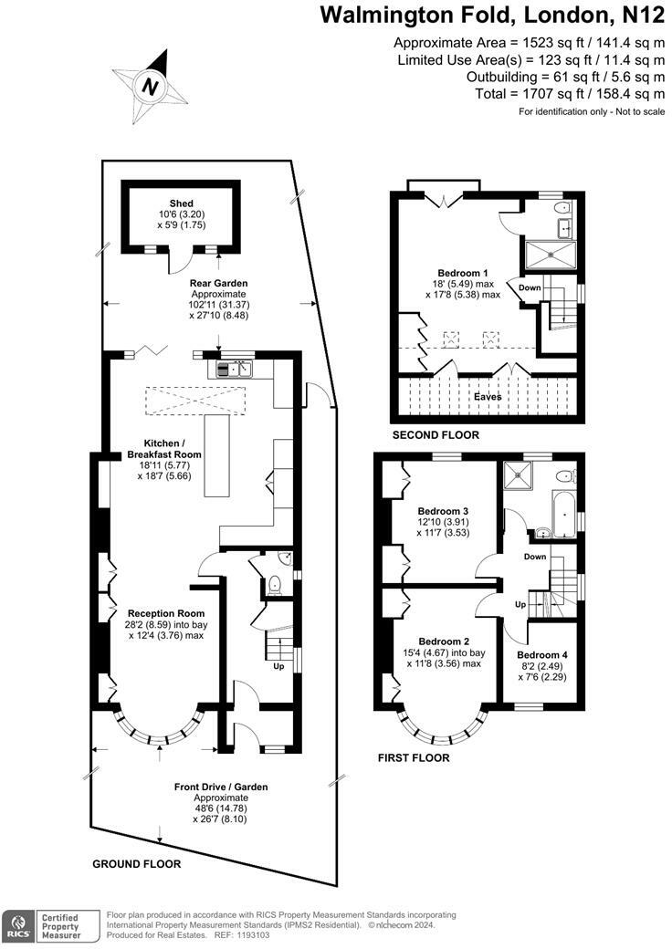
1,523.00

The heatmap indicates the level of crime in the area. The color of the heatmap indicates the crime severity and recency.

Metrics Year-on-Year

Average area value
1,077,389.00 £
Increased by 1.83 %
from 1,058,005.00 £
Est sale value
992,996.00 £
Increased by 8.49 %
from 915,323.00 £
Average area rental value
2,772.00 £/mo
Increased by 5.36 %
from 2,631.00 £/mo
Est letting value
1,523.00 £/mo
Unchanged by 0.00 %
from 1,523.00 £/mo
Est rental Yield
3.09 %
Increased by 3.69 %
from 2.98 %
Crime Rate
4.00 %
Unchanged by 0.00 %
from 4.00 %

Agent Activity

  • Real Estates created the listing.

Nearby Schools

NameTypeOfstedDistance
Frith Manor Primary SchoolCommunity SchoolGood0.86 KM
Moss Hall Nursery SchoolLocal Authority Nursery SchoolOutstanding0.92 KM
Moss Hall Junior SchoolCommunity SchoolRequires improvement1.02 KM
Moss Hall Infant SchoolCommunity SchoolOutstanding1.02 KM
St Mary'S Cofe Primary SchoolVoluntary Aided SchoolOutstanding1.13 KM

Images

1193103 (1).jpg 1193103 (16).jpg 1193103 (8).jpg 1193103 (11).jpg 1193103 (13).jpg 1193103 (2).jpg 1193103 (15).jpg 1193103 (12).jpg 1193103 (21).jpg 1193103 (7).jpg 1193103 (23).jpg 1193103 (5).jpg 1193103 (3).jpg 1193103 (9).jpg 1193103 (14).jpg 1193103 (6).jpg 1193103 (17).jpg 1193103 (18).jpg 1193103 (19).jpg 1193103 (4).jpg 1193103 (10).jpg 1193103 (22).jpg 1193103 (20).jpg

Nearby Streets

NameAverage PriceAverage SqftDistance
Adams Close £ 550,00000.00 KM
Popes Drive £ 000.00 KM
Albert Place £ 565,00000.00 KM
Station Approach £ 000.00 KM
Finchley Court £ 000.00 KM

Nearby Transport

NameNLCTLCDistance
Oakleigh Park6020OKL4.24 KM
New Barnet6018NBA4.71 KM
New Southgate6019NSG5.72 KM
Mill Hill Broadway1527MIL6.03 KM
Hendon1522HEN6.03 KM

Nearby Listings

AddressPriceTypeScoreDistance
Walmington Fold, Woodside Park £ 1,250,000BUY7 / 100.00 KM
Walmington Fold, Woodside Park £ 1,350,000BUY7 / 100.05 KM
Linkside, Woodside Park £ 1,250,000BUY7 / 100.12 KM
Linkside, Woodside Park £ 925,000BUYUnknown0.15 KM
Linkside, Woodside Park £ 1,175,000BUY8 / 100.20 KM

Nearby Properties

AddressPriceDistance
92 Walmington Fold £ 500,0000.06 KM
96 Walmington Fold £ 799,9500.06 KM
78 Walmington Fold £ 1,180,0000.06 KM
94 Walmington Fold £ 380,0000.06 KM
80 Walmington Fold £ 782,0000.06 KM