Rudgwick Terrace, Avenue Road, St John's Wood, London, NW8
By Savills
£ 4,950,000
Reviews
3 out of 5 stars
Savills says ..
A spacious house in a secure development next to Regent's Park and Primrose Hill.
Property Oracle says ..
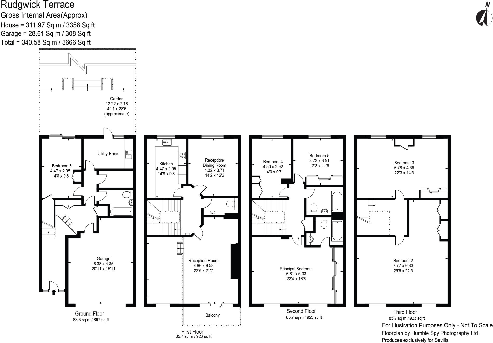
This six-bedroom, three-bathroom property in St John’s Wood, London, is located in a prestigious and highly sought-after area. The property benefits from its proximity to Regent’s Park, excellent schools, and convenient transportation links. The area is known for its affluent residents and generally high property values. The house itself appears well-maintained from the provided photographs, with a modern kitchen. However, aspects of the interior décor and furnishings in other rooms appear dated, possibly requiring modernisation to meet the expectations of today’s buyers. The inclusion of a garden is a noteworthy feature, though further details on its size and features would be necessary for a comprehensive assessment. The list price of £4,950,000 is substantial, though without detailed comparative data on similar properties in the area, it’s difficult to determine if it represents excellent value or if the asking price is inflated. The property offers a considerable amount of living space and a location that is hard to match, however, buyers might need to budget for potential renovations to fully realize the property’s potential.
Therefore, we give this property 6 / 10. *Disclaimer: This is our option and does constitute a recommendation or financial advice. Do your own research. *
- Price
- 7
- Condition
- 6
- Location
- 9
- Land
- 4
- Bedrooms
- 6
- Bathrooms
- 3
- Sqft (est)
- 3,665.97
The heatmap indicates the level of crime in the area. The color of the heatmap indicates the crime severity and recency.
Metrics Year-on-Year
- Average area value
- 2,797,333.00 £Increased by 8.01 %
- Est sale value
- 12,962,869.92 £Increased by 152.39 %
- Average area rental value
- 3,169.00 £/moIncreased by 10.38 %
- Est letting value
- 14,663.88 £/moIncreased by 300.00 %
- Est rental Yield
- 1.36 %Increased by 2.26 %
- Crime Rate
- 0.00 %
Agent Activity
Savills created the listing.
Nearby Schools
| Name | Type | Ofsted | Distance |
|---|---|---|---|
| Saint Christina'S School | Other Independent School | 0.29 KM | |
| Robinsfield Infant School | Community School | Good | 0.46 KM |
| St Paul'S Church Of England Primary School | Voluntary Aided School | Good | 0.57 KM |
| Barrow Hill Junior School | Community School | Good | 0.63 KM |
| Swiss Cottage School - Development & Research Centre | Community Special School | Outstanding | 0.69 KM |
Images
Nearby Streets
| Name | Average Price | Average Sqft | Distance |
|---|---|---|---|
| Rudgwick Terrace | £ 4,950,000 | 0 | 0.00 KM |
| Titchfield Road | £ 0 | 0 | 0.00 KM |
| Lyttleton Close | £ 0 | 0 | 0.00 KM |
| Primrose Hill Road | £ 0 | 0 | 0.00 KM |
| St. Ann's Terrace | £ 2,541,250 | 0 | 0.00 KM |
Nearby Transport
| Name | NLC | TLC | Distance |
|---|---|---|---|
| South Hampstead | 1451 | SOH | 1.48 KM |
| Marylebone | 1475 | MYB | 1.71 KM |
| Hampstead Heath | 1413 | HDH | 1.96 KM |
| Finchley Road And Frognal | 1445 | FNY | 2.36 KM |
| Kentish Town West | 1449 | KTW | 2.37 KM |
Nearby Listings
| Address | Price | Type | Score | Distance |
|---|---|---|---|---|
| Rudgwick Terrace, Avenue Road, St John's Wood, London, NW8 | £ 4,950,000 | BUY | 6 / 10 | 0.00 KM |
| Avenue Road, London, NW8 | £ 4,750,000 | BUY | 7 / 10 | 0.06 KM |
| Flat 1, St Stephen’s Close, Avenue Road, London, NW8 6DB | £ 1,850,000 | BUY | 4 / 10 | 0.07 KM |
| Avenue Road, St John's Wood, NW8 | £ 3,950,000 | BUY | 7 / 10 | 0.09 KM |
| Rudgwick Terrace, Avenue Road, London, NW8 | £ 5,600,000 | BUY | Unknown | 0.09 KM |
Nearby Properties
| Address | Price | Distance |
|---|---|---|
| 39 Avenue Road | £ 22,000,000 | 0.14 KM |
| 40 Townshend Road | £ 2,835,000 | 0.18 KM |
| 46 Townshend Road | £ 2,620,000 | 0.18 KM |
| 14g Avenue Road | £ 2,100,000 | 0.19 KM |
| 14c Avenue Road | £ 1,210,000 | 0.20 KM |