Geoffrey Collings & Co says ..
A beautifully appointed 2-bedroom detached bungalow, situated on a quiet cul-de-sac and within walking distance from Heacham's North Beach. The bungalow is superbly presented throughout and includes a well-maintained garden and off-road parking.
Property Oracle says ..
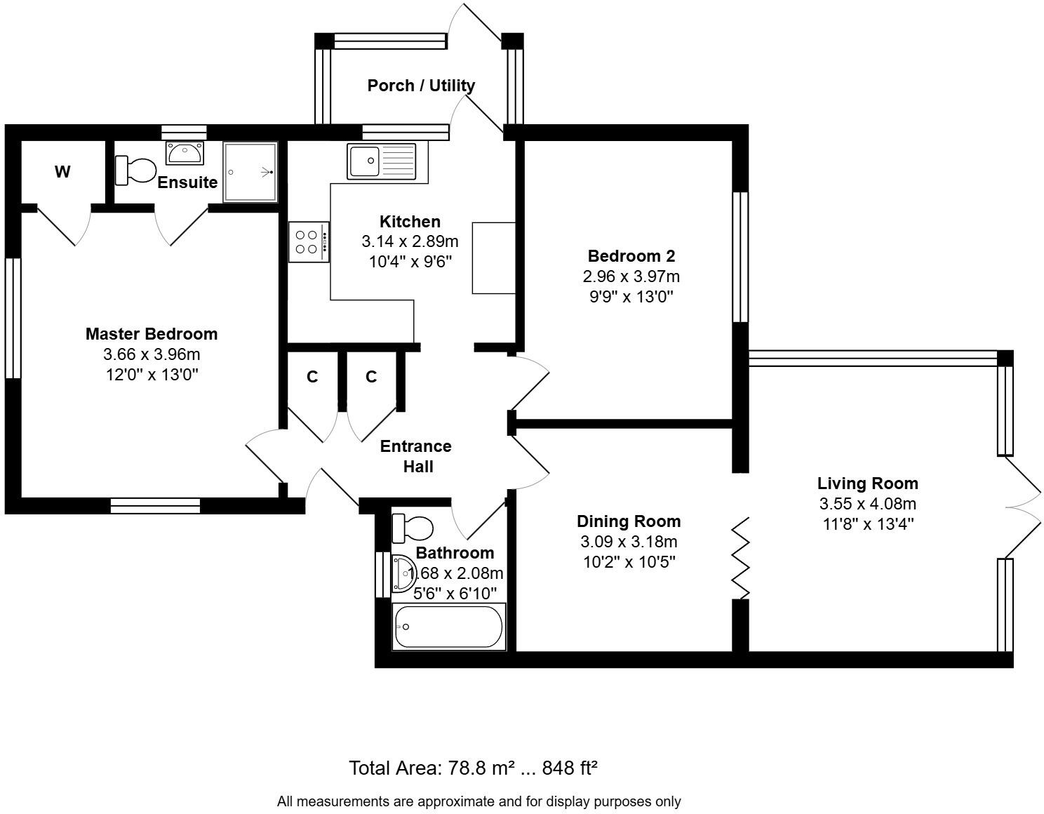
This property is a detached bungalow located in Heacham, Norfolk. It has two bedrooms and two bathrooms, and a total area of 1,988 sqft. The property includes a modern kitchen and conservatory. There is also a garden with a shed. Heacham is a coastal town with good schooling options nearby, including Heacham Junior School (0.58km) and Heacham Infant and Nursery School (1.40km), both rated as “Good” by Ofsted. The average house price in the area is £265,511, with an average price per sqft of £302. This property is listed at £310,000. Considering the size, features (modern kitchen, conservatory, garden), and location, the list price appears reasonable, although slightly above the average price for the area. More information on the local market and comparable properties would be needed to provide a more definitive assessment of value.
Therefore, we give this property 7 / 10. *Disclaimer: This is our option and does constitute a recommendation or financial advice. Do your own research. *
- Price
- 7
- Condition
- 9
- Location
- 8
- Land
- 7
- Bedrooms
- 2
- Bathrooms
- 2
- Sqft (est)
- 1,988.00
- Lot (est)
- 848.00
The heatmap indicates the level of crime in the area. The color of the heatmap indicates the crime severity and recency.
Metrics Year-on-Year
- Average area value
- 245,074.00 £Decreased by 15.93 %
- Est sale value
- 467,180.00 £Decreased by 37.50 %
- Average area rental value
- 1,254.00 £/moDecreased by 5.43 %
- Est letting value
- 1,988.00 £/moUnchanged by 0.00 %
- Est rental Yield
- 6.14 %Increased by 12.45 %
- Crime Rate
- 13.00 %Unchanged by 0.00 %
Agent Activity
Geoffrey Collings & Co created the listing.
Nearby Schools
| Name | Type | Ofsted | Distance |
|---|---|---|---|
| Heacham Junior School | Academy Converter | Good | 0.58 KM |
| Heacham Infant And Nursery School | Academy Converter | Good | 1.40 KM |
| Hunstanton Primary School | Foundation School | Good | 3.25 KM |
| Hunstanton Children'S Centre | Children's Centre | 3.54 KM | |
| Smithdon High School | Academy Sponsor Led | Requires improvement | 3.71 KM |
Images
Nearby Streets
| Name | Average Price | Average Sqft | Distance |
|---|---|---|---|
| Malthouse Close | £ 0 | 0 | 0.00 KM |
| The Drift | £ 0 | 0 | 0.00 KM |
Nearby Listings
| Address | Price | Type | Score | Distance |
|---|---|---|---|---|
| Cross Way, Heacham | £ 310,000 | BUY | 7 / 10 | 0.00 KM |
| Cross Way, Heacham, King's Lynn | £ 310,000 | BUY | Unknown | 0.02 KM |
| Gymkhana Way, Heacham, King's Lynn | £ 280,000 | BUY | 6 / 10 | 0.06 KM |
| Jennings Close, Heacham | £ 225,000 | BUY | 6 / 10 | 0.08 KM |
| Heacham | £ 300,000 | BUY | 7 / 10 | 0.08 KM |
Nearby Properties
| Address | Price | Distance |
|---|---|---|
| 38 Gymkhana Way | £ 167,000 | 0.06 KM |
| 2 Gymkhana Way | £ 365,000 | 0.06 KM |
| 35 Gymkhana Way | £ 225,000 | 0.06 KM |
| 6 Gymkhana Way | £ 200,000 | 0.06 KM |
| 4 Gymkhana Way | £ 215,000 | 0.06 KM |