Bilton Drive, Harrogate
By Nicholls Tyreman
£ 1,100
Nicholls Tyreman says ..
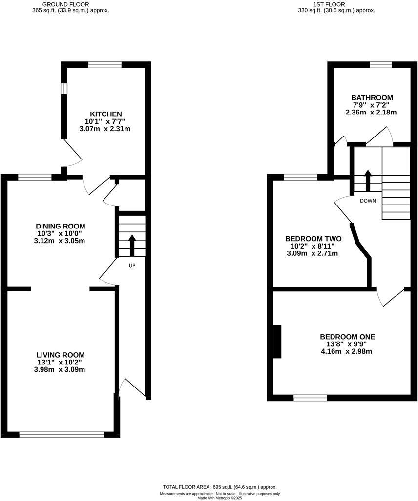
A stone built mid-terrace property offering immaculately presented accommodation throughout. The property is situated in a vibrant area with good local shops and facilities immediately available, as well as being within walking distance of the town centre. The accommodation bene...
- Bedrooms
- 2
- Bathrooms
- 1
The heatmap indicates the level of crime in the area. The color of the heatmap indicates the crime severity and recency.
Metrics Year-on-Year
- Average area value
- 319,992.00 £Increased by 8.16 %
- Average area rental value
- 1,230.00 £/moIncreased by 0.08 %
- Est rental Yield
- 4.61 %Decreased by 7.43 %
- Crime Rate
- 10.00 %Unchanged by 0.00 %
from 295,848.00 £
from 1,229.00 £/mo
from 4.98 %
from 10.00 %
Agent Activity
Nicholls Tyreman created the listing.
Nearby Schools
| Name | Type | Ofsted | Distance |
|---|---|---|---|
| Harrogate, Bilton Grange Primary School | Academy Converter | Good | 0.32 KM |
| Harrogate, Grove Road Community Primary School | Community School | Good | 0.50 KM |
| Springwell Harrogate | Academy Alternative Provision Converter | Outstanding | 0.58 KM |
| Coppice Valley Primary School | Academy Converter | 0.64 KM | |
| St Joseph'S Catholic Primary School, Harrogate, A Voluntary Academy | Academy Converter | Good | 0.70 KM |
Images
Nearby Streets
| Name | Average Price | Average Sqft | Distance |
|---|---|---|---|
| Archie Street Rear | £ 0 | 0 | 0.00 KM |
| Pine Street | £ 0 | 0 | 0.00 KM |
| Woodfield Drive | £ 55,000 | 0 | 0.00 KM |
| Cambridge Place | £ 533,333 | 0 | 0.00 KM |
| Swan Road | £ 0 | 0 | 0.00 KM |
Nearby Transport
| Name | NLC | TLC | Distance |
|---|---|---|---|
| Harrogate | 8213 | HGT | 1.10 KM |
| Hornbeam Park | 8212 | HBP | 2.88 KM |
| Starbeck | 8221 | SBE | 4.14 KM |
| Pannal | 8479 | PNL | 5.01 KM |
| Knaresborough | 8214 | KNA | 7.55 KM |
Nearby Listings
| Address | Price | Type | Score | Distance |
|---|---|---|---|---|
| Bilton Drive, Harrogate | £ 1,100 | RENT | Unknown | 0.00 KM |
| Dixon Terrace, Harrogate | £ 1,150 | RENT | Unknown | 0.07 KM |
| Kings Road, Harrogate | £ 1,950 | RENT | Unknown | 0.07 KM |
| De Ferrieres Avenue, Harrogate, HG1 | £ 1,750 | RENT | Unknown | 0.08 KM |
| Dixon Terrace, Harrogate | £ 995 | RENT | Unknown | 0.10 KM |
Nearby Properties
| Address | Price | Distance |
|---|---|---|
| 8 Bilton Drive | £ 179,950 | 0.01 KM |
| 34 Bilton Drive | £ 172,500 | 0.01 KM |
| 38 Bilton Drive | £ 315,000 | 0.01 KM |
| 30 Bilton Drive | £ 142,500 | 0.01 KM |
| 9 Bilton Drive | £ 229,950 | 0.01 KM |