Elmsleigh Road, Farnborough, Hampshire, GU14
By Mackenzie Smith
£ 475,000
Reviews
3 out of 5 stars
Mackenzie Smith says ..
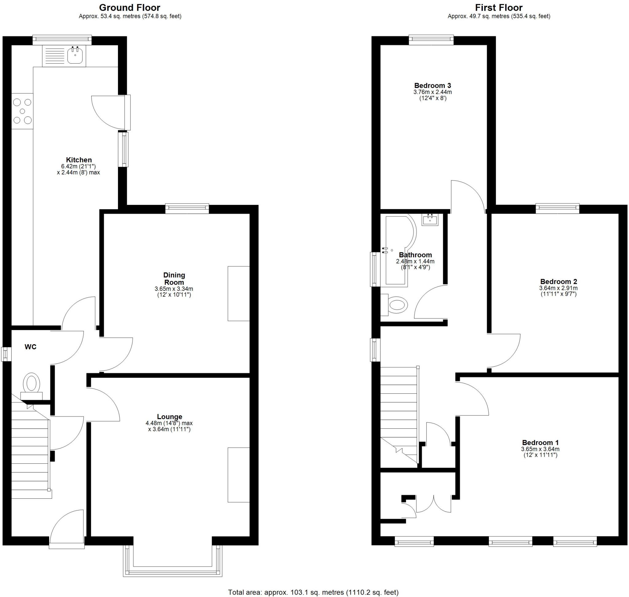
Centrally located close to shops and amenities this charming and spacious period end of terrace house boasts 3 bedrooms and a range of other features including 2 receptions, a superb extended kitchen/breakfast room, cloakroom and refitted bathroom, delightful 65ft rear garden and access to a deta...
Property Oracle says ..
This is a 3-bedroom end-of-terrace house in Farnborough, Hampshire. The property benefits from a modern kitchen and bathroom, and a good-sized garden. While generally in good condition, some rooms could use cosmetic improvements. The property is located near schools and transportation links. The list price is slightly above the average for the area.
Therefore, we give this property 6 / 10. *Disclaimer: This is our option and does constitute a recommendation or financial advice. Do your own research. *
- Price
- 6
- Condition
- 7
- Location
- 7
- Land
- 7
- Bedrooms
- 3
- Bathrooms
- 1
The heatmap indicates the level of crime in the area. The color of the heatmap indicates the crime severity and recency.
Metrics Year-on-Year
- Average area value
- 359,375.00 £Decreased by 28.31 %
- Average area rental value
- 1,575.00 £/moIncreased by 0.25 %
- Est rental Yield
- 5.26 %Increased by 39.89 %
- Crime Rate
- 9.00 %Unchanged by 0.00 %
Agent Activity
Mackenzie Smith created the listing.
Nearby Schools
| Name | Type | Ofsted | Distance |
|---|---|---|---|
| Tower Hill Primary School | Community School | Outstanding | 0.57 KM |
| St Bernadette'S Catholic Primary School | Voluntary Aided School | Requires improvement | 1.00 KM |
| Cove Junior School | Community School | Good | 1.24 KM |
| Samuel Cody School | Community Special School | Good | 1.26 KM |
| Owls Children'S Centre | Children's Centre | 1.42 KM |
Images
Nearby Streets
| Name | Average Price | Average Sqft | Distance |
|---|---|---|---|
| Vickers Close | £ 266,667 | 0 | 0.00 KM |
| West Heath Roundabout | £ 0 | 0 | 0.00 KM |
| Costa Coffee Drive Through | £ 0 | 0 | 0.00 KM |
| Helen Court | £ 0 | 0 | 0.00 KM |
| Kendal Close | £ 0 | 0 | 0.00 KM |
Nearby Transport
| Name | NLC | TLC | Distance |
|---|---|---|---|
| Farnborough (Main) | 5521 | FNB | 1.47 KM |
| Farnborough North | 5688 | FNN | 2.99 KM |
| Frimley | 5683 | FML | 3.17 KM |
| Blackwater | 5625 | BAW | 4.39 KM |
| North Camp | 5636 | NCM | 4.55 KM |
Nearby Listings
| Address | Price | Type | Score | Distance |
|---|---|---|---|---|
| Elmsleigh Road, Farnborough, Hampshire, GU14 | £ 475,000 | BUY | 6 / 10 | 0.00 KM |
| Elmsleigh Road, Farnborough, GU14 | £ 485,000 | BUY | 7 / 10 | 0.03 KM |
| Anchor Meadow, Farnborough, Hampshire, GU14 | £ 210,000 | BUY | Unknown | 0.09 KM |
| Elmsleigh Road, Farnborough, Hampshire, GU14 | £ 199,950 | BUY | 7 / 10 | 0.10 KM |
| Meadow Court, Anchor Meadow, Farnborough, Hampshire, GU14 | £ 200,000 | BUY | 6 / 10 | 0.10 KM |
Nearby Properties
| Address | Price | Distance |
|---|---|---|
| 16 Elmsleigh Road | £ 460,000 | 0.07 KM |
| 32 Elmsleigh Road | £ 260,000 | 0.07 KM |
| 22 Elmsleigh Road | £ 367,500 | 0.07 KM |
| 35 Elmsleigh Road | £ 375,000 | 0.07 KM |
| 27 Elmsleigh Road | £ 230,000 | 0.07 KM |