Pennymoor, Tiverton, Devon, EX16
SE

Pennymoor, Tiverton, Devon, EX16

By Seddons

£ 450,000

Reviews

3 out of 5 stars

Seddons says ..

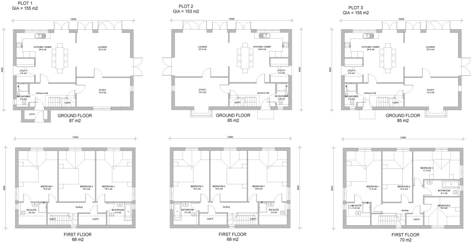
Full planning for three large houses in a rural yet accessible location with far reaching views, on the site of an existing substantial agricultural barn and office. Or perhaps you would like to build one house and keep the large barn? (subject to planning)

Property Oracle says ..

Therefore, we give this property 6 / 10. *Disclaimer: This is our option and does constitute a recommendation or financial advice. Do your own research. *

Price
7
Condition
0
Location
6
Land
7
Bedrooms
0
Bathrooms
0
Sqft (est)
1,668.41

The heatmap indicates the level of crime in the area. The color of the heatmap indicates the crime severity and recency.

Metrics Year-on-Year

Average area value
595,346.00 £
Increased by 46.10 %
from 407,500.00 £
Est sale value
712,411.07 £
Decreased by 9.15 %
from 784,152.70 £
Average area rental value
1,400.00 £/mo
Increased by 28.44 %
from 1,090.00 £/mo
Est letting value
1,668.41 £/mo
Unchanged by 0.00 %
from 1,668.41 £/mo
Est rental Yield
2.82 %
Decreased by 12.15 %
from 3.21 %
Crime Rate
0.00 %
from 0.00 %

Agent Activity

  • Seddons created the listing.

Nearby Schools

NameTypeOfstedDistance
Cheriton Fitzpaine Primary SchoolCommunity SchoolGood6.21 KM
Rackenford Church Of England Primary SchoolVoluntary Aided SchoolGood8.90 KM
St John'S Catholic Primary SchoolAcademy ConverterRequires improvement9.16 KM
Bickleigh On Exe Church Of England Primary SchoolAcademy ConverterGood9.24 KM
Ace Tiverton Special SchoolFree Schools Special9.27 KM

Images

Cruwys Morchard Cruwys Morchard Cruwys Morchard Cruwys Morchard Cruwys Morchard Cruwys Morchard Cruwys Morchard Cruwys Morchard Cruwys Morchard Cruwys Morchard Cruwys Morchard Cruwys Morchard Cruwys Morchard Cruwys Morchard Cruwys Morchard Cruwys Morchard Cruwys Morchard Cruwys Morchard Cruwys Morchard Cruwys Morchard Cruwys Morchard Cruwys Morchard Cruwys Morchard Cruwys Morchard Cruwys Morchard Cruwys Morchard Cruwys Morchard Cruwys Morchard Cruwys Morchard Cruwys Morchard Cruwys Morchard Cruwys Morchard Cruwys Morchard

Nearby Streets

NameAverage PriceAverage SqftDistance
Vulscombe Lane £ 000.00 KM

Nearby Listings

AddressPriceTypeScoreDistance
Pennymoor, Tiverton, Devon, EX16 £ 450,000BUY6 / 100.00 KM
Pennymoor, Tiverton, Devon, EX16 £ 450,000BUYUnknown0.00 KM
Withleigh, Tiverton £ 395,000BUYUnknown1.40 KM