Heaton Moor Road, Heaton Moor, Stockport, SK4
By Julian Wadden
£ 250,000
Reviews
3 out of 5 stars
Julian Wadden says ..
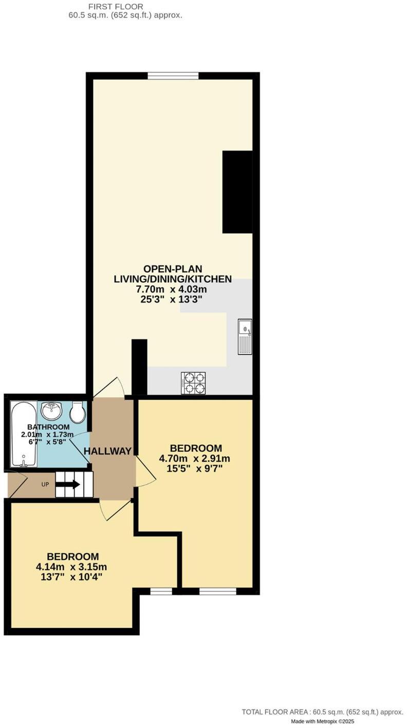
Chain-free first floor flat at the ever-popular Heritage Gardens in the heart of Heaton Moor offered to the market boasting a wonderful blend of character and contemporary features that will resonate with Heatons buyers seeking their first home, downsizers, or a landlord looking for a ready-made ...
Property Oracle says ..
This is a two-bedroom flat located on Heaton Moor Road in Stockport. The property is in a good location, with convenient access to schools, transportation, and local amenities. The interior appears to be in generally good condition, with a modern kitchen, although the bathroom could use some updating. The flat benefits from communal gardens and parking. Considering the location, condition, and available amenities, the asking price of £250,000 seems reasonable. The property is likely to appeal to first-time buyers, young professionals, or investors looking for a rental property in a popular area. The flat appears to be a modern property that has been modernised recently, but retains some traditional features.
Therefore, we give this property 7 / 10. *Disclaimer: This is our option and does constitute a recommendation or financial advice. Do your own research. *
- Price
- 7
- Condition
- 7
- Location
- 8
- Land
- 6
- Bedrooms
- 2
- Bathrooms
- 1
The heatmap indicates the level of crime in the area. The color of the heatmap indicates the crime severity and recency.
Metrics Year-on-Year
- Average area value
- 387,500.00 £Decreased by 8.74 %
- Average area rental value
- 1,132.00 £/moIncreased by 8.43 %
- Est rental Yield
- 3.51 %Increased by 18.98 %
- Crime Rate
- 0.00 %
Agent Activity
Julian Wadden created the listing.
Nearby Schools
| Name | Type | Ofsted | Distance |
|---|---|---|---|
| Covenant Christian School | Other Independent School | Good | 0.10 KM |
| St Thomas' Church Of England Primary School Heaton Chapel | Voluntary Aided School | Good | 0.56 KM |
| Heaton School | Community Special School | Outstanding | 0.68 KM |
| Norris Bank Primary School | Community School | Good | 0.99 KM |
| St Anne'S Roman Catholic High School, A Voluntary Academy | Academy Sponsor Led | 1.17 KM |
Images
Nearby Streets
| Name | Average Price | Average Sqft | Distance |
|---|---|---|---|
| Cedar Grove | £ 348,333 | 0 | 0.00 KM |
| Lynton Road | £ 0 | 0 | 0.00 KM |
| York Road | £ 0 | 0 | 0.00 KM |
| Clarence Road | £ 0 | 0 | 0.00 KM |
| Thornton Place | £ 0 | 0 | 0.00 KM |
Nearby Transport
| Name | NLC | TLC | Distance |
|---|---|---|---|
| Heaton Chapel | 2861 | HTC | 0.24 KM |
| Levenshulme | 2862 | LVM | 2.55 KM |
| Reddish South | 2857 | RDS | 2.77 KM |
| Stockport | 2771 | SPT | 2.89 KM |
| Mauldeth Road | 2867 | MAU | 3.27 KM |
Nearby Listings
| Address | Price | Type | Score | Distance |
|---|---|---|---|---|
| Heaton Moor Road, Heaton Moor, Stockport, SK4 | £ 250,000 | BUY | 7 / 10 | 0.00 KM |
| Heaton Moor Road, Heaton Moor, Stockport, SK4 | £ 270,000 | BUY | 5 / 10 | 0.02 KM |
| Heritage Gardens, Heaton Moor Road, Heaton Moor | £ 250,000 | BUY | 7 / 10 | 0.02 KM |
| Heaton Moor Road, Heaton Moor, Stockport, SK4 | £ 275,000 | BUY | 6 / 10 | 0.03 KM |
| Heritage Gardens, 40 Heaton Moor Road, Stockport | £ 240,000 | BUY | 7 / 10 | 0.06 KM |
Nearby Properties
| Address | Price | Distance |
|---|---|---|
| 15 Heaton Moor Road | £ 550,000 | 0.08 KM |
| 27 Brownsville Road | £ 782,500 | 0.12 KM |
| 24 Brownsville Road | £ 707,880 | 0.12 KM |
| 12 Brownsville Road | £ 595,000 | 0.12 KM |
| 10 Brownsville Road | £ 785,000 | 0.14 KM |