Prospect Cottages, Prospect Lane, Alderley Edge
By Gascoigne Halman
£ 350,000
Reviews
4 out of 5 stars
Gascoigne Halman says ..
A charming Cheshire brick cottage, offering beautifully presented accommodation surrounded by open countryside, boasting stunning cottage gardens and located within close proximity of both Alderley Edge and Wilmslow.
Property Oracle says ..
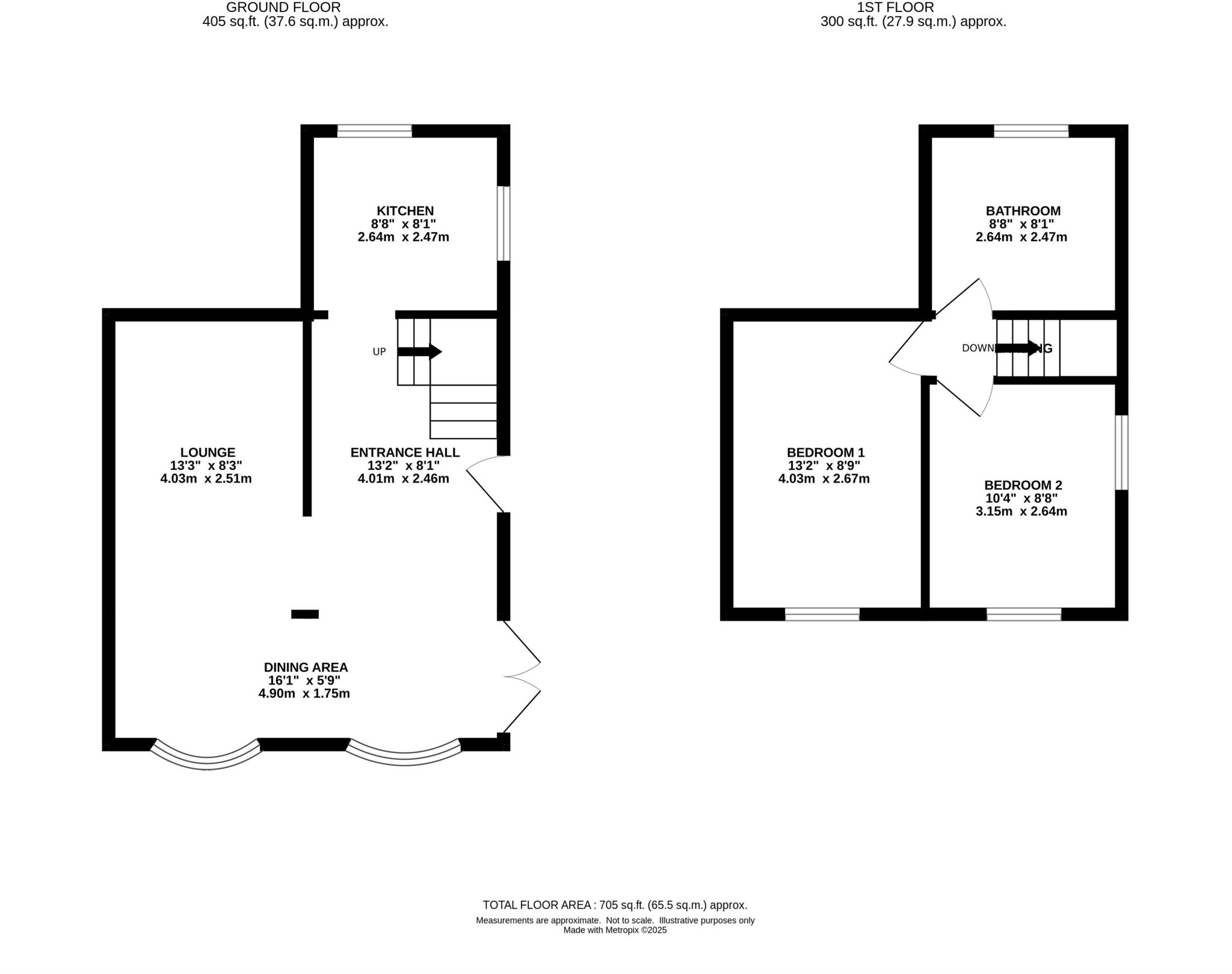
This property is a 2 bedroom, 1 bathroom end of terrace house located in Alderley Edge, Cheshire. The average house price in the area is significantly higher than the list price of this property, at £555,509 compared to £350,000. The property is smaller than average for the area at 630 sqft compared to the average of 1220 sqft. However, it benefits from a good-sized garden and is located close to several highly-rated schools and train stations. The property appears to be well-maintained and in good condition, with a modern kitchen and bathroom. The location is desirable, with good transport links and local amenities. While the price per sqft is lower than the area average, the overall list price is significantly lower than other properties in the area. This could be due to the smaller size of the property compared to others in Alderley Edge.
Therefore, we give this property 8 / 10. *Disclaimer: This is our option and does constitute a recommendation or financial advice. Do your own research. *
- Price
- 7
- Condition
- 9
- Location
- 9
- Land
- 7
- Bedrooms
- 2
- Bathrooms
- 1
- Sqft (est)
- 630.00
- Lot (est)
- 705.00
The heatmap indicates the level of crime in the area. The color of the heatmap indicates the crime severity and recency.
Metrics Year-on-Year
- Average area value
- 646,257.00 £Increased by 0.56 %
- Est sale value
- 411,390.00 £Increased by 46.09 %
- Average area rental value
- 2,875.00 £/moIncreased by 74.77 %
- Est letting value
- 1,260.00 £/moIncreased by 100.00 %
- Est rental Yield
- 5.34 %Increased by 73.94 %
- Crime Rate
- 0.00 %
Agent Activity
Gascoigne Halman created the listing.
Nearby Schools
| Name | Type | Ofsted | Distance |
|---|---|---|---|
| Lindow Community Primary School | Community School | Good | 1.67 KM |
| David Lewis School | Non-maintained Special School | Good | 2.65 KM |
| The David Lewis Centre | Special Post 16 Institution | Outstanding | 2.65 KM |
| Ashdene Primary School | Community School | Outstanding | 2.92 KM |
| The Ryleys School | Other Independent School | 3.07 KM |
Images
Nearby Streets
| Name | Average Price | Average Sqft | Distance |
|---|---|---|---|
| Willow Close | £ 0 | 0 | 0.00 KM |
| Rotherwood Road | £ 0 | 0 | 0.00 KM |
| Springfield Drive | £ 0 | 0 | 0.00 KM |
Nearby Transport
| Name | NLC | TLC | Distance |
|---|---|---|---|
| Alderley Edge | 2760 | ALD | 3.82 KM |
| Chelford (Cheshire) | 2764 | CEL | 4.11 KM |
| Wilmslow | 2774 | WML | 5.49 KM |
| Styal | 2868 | SYA | 5.81 KM |
| Manchester Airport | 2961 | MIA | 6.57 KM |
Nearby Listings
| Address | Price | Type | Score | Distance |
|---|---|---|---|---|
| Prospect Cottages, Prospect Lane, Alderley Edge | £ 350,000 | BUY | 8 / 10 | 0.00 KM |
| Stanley Terrace, Knutsford Road, Alderley Edge | £ 449,950 | BUY | 7 / 10 | 0.25 KM |
| Knutsford Road, Alderley Edge, SK9 | £ 550,000 | BUY | 6 / 10 | 0.28 KM |
| Gore Lane, Alderley Edge, Cheshire, SK9 | £ 900,000 | BUY | 6 / 10 | 0.33 KM |
| Freyas Folly, Gore Lane, SK9 7SP | £ 450,000 | BUY | 7 / 10 | 0.34 KM |
Nearby Properties
| Address | Price | Distance |
|---|---|---|
| Aldercroft | £ 2,000,000 | 0.44 KM |
| Rose Cottage | £ 1,025,000 | 0.44 KM |
| Trafford House Farm | £ 820,000 | 0.44 KM |
| Heatherfield | £ 685,000 | 0.44 KM |
| 102 Knutsford Road | £ 337,500 | 0.49 KM |