Rainsborough Way, Off Water Lane
By Churchills Estate Agents
£ 165,000
Reviews
2 out of 5 stars
Churchills Estate Agents says ..
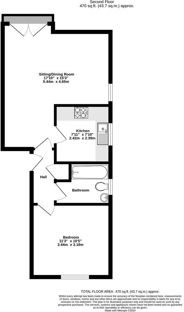
AN IMPRESSIVE ONE DOUBLE BEDROOM APARTMENT WITH LARGE RECEPTION AREA AND ALLOCATED PARKING. Churchills Estate Agents are delighted to offer for sale this superb second floor apartment, set within this purpose built block located in the popular residential area off Water Lane, convenient for Clift...
Property Oracle says ..
This one-bedroom apartment in York, located at Rainsborough Way, Off Water Lane, is presented in good condition with a modern and stylish interior. The property features a well-equipped kitchen, a contemporary bathroom, and a spacious living area. The images show that the apartment has been recently updated or refurbished. It’s ideally located within easy reach of several schools, including Vale of York Academy, which has a good Ofsted rating. However, the apartment is a flat with no garden and the provided information lacks crucial specifics on transport links and amenities. Additional details on the parking situation would also be helpful. The pricing appears reasonable in context to other nearby properties, but a more detailed comparison would help in reaching a firmer conclusion. More information would improve the analysis including plot size for comparable properties.
Therefore, we give this property 5 / 10. *Disclaimer: This is our option and does constitute a recommendation or financial advice. Do your own research. *
- Price
- 7
- Condition
- 8
- Location
- 7
- Land
- 1
- Bedrooms
- 1
- Bathrooms
- 1
- Sqft (est)
- 470.38
The heatmap indicates the level of crime in the area. The color of the heatmap indicates the crime severity and recency.
Metrics Year-on-Year
- Average area value
- 591,875.00 £Increased by 5.13 %
- Est sale value
- 224,371.26 £Decreased by 6.47 %
- Average area rental value
- 1,194.00 £/moDecreased by 3.63 %
- Est letting value
- 0.00 £/moDecreased by 100.00 %
- Est rental Yield
- 2.42 %Decreased by 8.33 %
- Crime Rate
- 4.00 %Unchanged by 0.00 %
Agent Activity
Churchills Estate Agents created the listing.
Nearby Schools
| Name | Type | Ofsted | Distance |
|---|---|---|---|
| Vale Of York Academy | Academy Sponsor Led | Good | 0.43 KM |
| Clifton Children'S Centre | Children's Centre | 0.56 KM | |
| Burton Green Primary School | Academy Converter | Good | 0.67 KM |
| Clifton Green Primary School | Community School | Requires improvement | 0.72 KM |
| St Peter'S School 2-18 | Other Independent School | 1.23 KM |
Images
Nearby Streets
| Name | Average Price | Average Sqft | Distance |
|---|---|---|---|
| Fairway | £ 0 | 0 | 0.00 KM |
| Miller Road | £ 300,000 | 0 | 0.00 KM |
| Shipton Road | £ 0 | 0 | 0.00 KM |
| Devonshire Court | £ 0 | 0 | 0.00 KM |
| Freemens Court | £ 0 | 0 | 0.00 KM |
Nearby Transport
| Name | NLC | TLC | Distance |
|---|---|---|---|
| York | 8263 | YRK | 2.08 KM |
| Poppleton | 8254 | POP | 5.72 KM |
Nearby Listings
| Address | Price | Type | Score | Distance |
|---|---|---|---|---|
| Rainsborough Way, Off Water Lane | £ 165,000 | BUY | 5 / 10 | 0.00 KM |
| Water Lane, York | £ 450,000 | BUY | 6 / 10 | 0.03 KM |
| Marten Close, York, North Yorkshire, YO30 | £ 400,000 | BUY | 5 / 10 | 0.10 KM |
| Burdyke Avenue, Clifton, York, YO30 | £ 142,500 | BUY | 7 / 10 | 0.11 KM |
| Rainsborough Way, York | £ 290,000 | BUY | 6 / 10 | 0.11 KM |
Nearby Properties
| Address | Price | Distance |
|---|---|---|
| 156 Water Lane | £ 200,000 | 0.07 KM |
| 160 Water Lane | £ 190,000 | 0.07 KM |
| 1 Marten Close | £ 181,000 | 0.07 KM |
| 5 Marten Close | £ 220,000 | 0.07 KM |
| 11 Marten Close | £ 232,000 | 0.07 KM |